

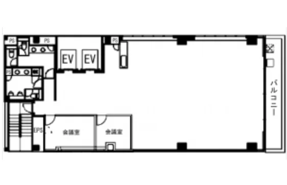
| 階数 | 9 A | 内装 | セットアップ |
|---|---|---|---|
| 面積(坪) | 57.15坪 | 面積(㎡) | 188.93㎡ |
| 賃料 | 要問い合わせ | 坪単価 | 要問い合わせ |
| 敷金/保証金 | 4ヶ月 | 礼金 | 0 |
| 入居可能日 | - | 募集状況 | 空室 |
| 収容人数 | - | 会議室 | 2室 |
| テレブース | - | 機械警備 | - |
| 天井高 | - | 床仕様 | OAフロア |
| トイレ | 男女トイレ別 | 空調 | - |
| 物件名 | CREAL SQUARE半蔵門 | ||
|---|---|---|---|
| 所在地 | 東京都千代田区麹町1-7-20 | ||
| 最寄駅 | 半蔵門駅 徒歩3分 / 麹町駅 徒歩7分 / 永田町駅 徒歩10分 | ||
| 構造 | 鉄骨造 | 規模 | 地上9階 |
| 竣工 | 2023 | リニューアル | - |