サイトに掲載できない非公開物件が多数ございます。
セットアップ・居抜き・敷金0円など、サイト未掲載の物件もご提案可能です。
検索結果 167 区画 募集中/登録374,683区画
オフィスビル外観











































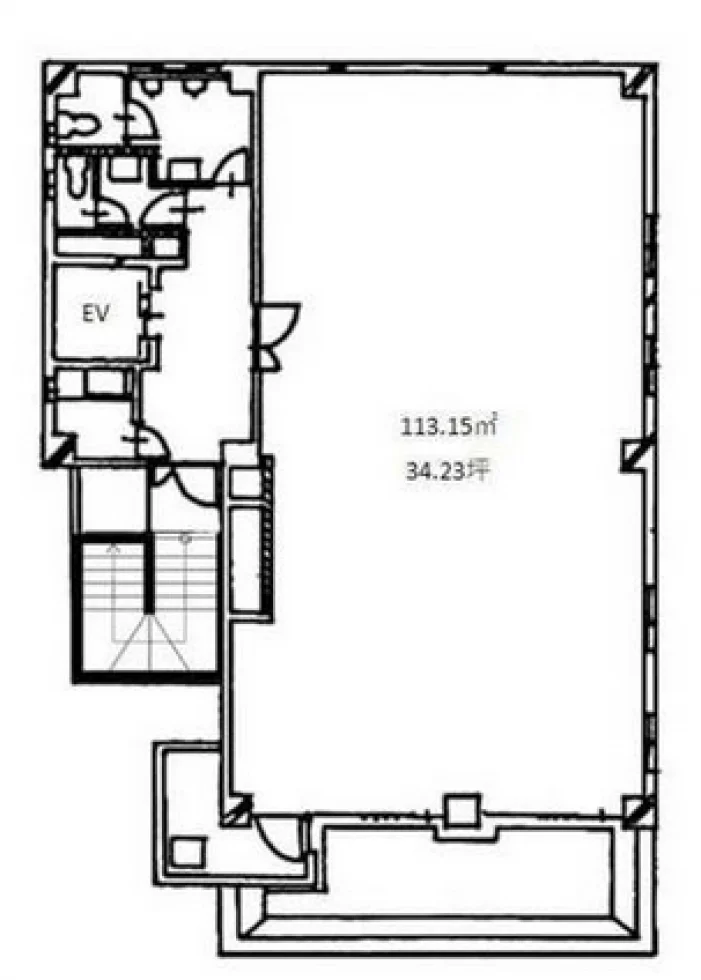
新富町駅徒歩2分、有楽町駅・東銀座駅も徒歩5分圏の3駅利用可能物件。旧称・東急銀座二丁目ビルで、2008年竣工の築浅オフィスです。全面ガラスの洗練された外観が特徴。基準階約132坪の大型フロアは天井高2700mmでゆとりある空間設計。エレベーター2基完備。銀座2丁目の落ち着いたエリアに位置し、上質なオフィス環境を求める企業に最適。
| 階数 | 面積 | 賃料総額 | 坪単価 | 内装 | 敷金 | 入居日 | ||
|---|---|---|---|---|---|---|---|---|
| 4F | 157.4坪(520.5㎡) | 5,510,400円 | 35,000円 | セットアップオフィス | 3ヶ月 | 2026年3月予定 | 詳細を見る |
オフィスビル外観









| 階数 | 面積 | 賃料総額 | 坪単価 | 内装 | 敷金 | 入居日 | ||
|---|---|---|---|---|---|---|---|---|
| 4F | 75.7坪(250.2㎡) | 要問合せ | - | セットアップオフィス | 12ヶ月 | 相談 | 詳細を見る |
オフィスビル外観



































| 階数 | 面積 | 賃料総額 | 坪単価 | 内装 | 敷金 | 入居日 | ||
|---|---|---|---|---|---|---|---|---|
| 9F | 102.0坪(337.1㎡) | 要問合せ | - | セットアップオフィス | 8ヶ月 | 相談 | 詳細を見る |
オフィスビル外観

































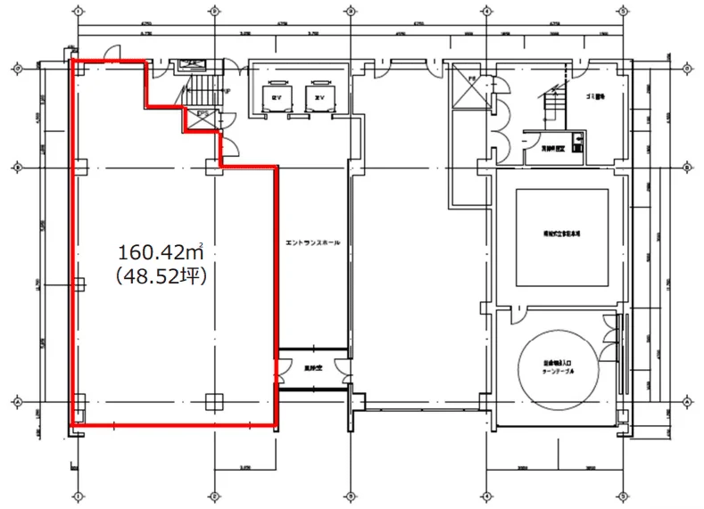
東銀座駅徒歩3分、銀座駅徒歩7分の銀座6丁目に位置する地上17階・地下5階建ての大型オフィスビル。1982年竣工・2010年リニューアル済みで、基準階約294坪の整形無柱フロアが特徴です。エレベーター7基・OAフロア・個別空調・男女別トイレ・駐車場73台を完備。低層階には新橋演舞場が入る文化的なビルで、オフィス専用エントランスは2層吹き抜けの格調高い意匠。銀座エリアでまとまった面積を確保したい企業に最適です。
| 階数 | 面積 | 賃料総額 | 坪単価 | 内装 | 敷金 | 入居日 | ||
|---|---|---|---|---|---|---|---|---|
| 4F | 32.4坪(106.9㎡) | 要問合せ | - | 事務所仕様 | 12ヶ月 | 2026/04/01 | 詳細を見る | |
| 14F | 271.2坪(896.6㎡) | 要問合せ | - | 事務所仕様 | 12ヶ月 | 2026/04/01 | 詳細を見る |
オフィスビル外観























新橋駅徒歩3分、銀座駅徒歩5分の銀座8丁目に位置する地上9階・地下1階建てオフィスビル。個別空調・男女別トイレ・エレベーター2基を完備しています。約20坪のフロアは少人数オフィスに使いやすいサイズ。銀座エリアの中心に近く、飲食店やショップが充実した華やかな環境。敷金2ヶ月と初期費用を抑えた入居が可能です。
| 階数 | 面積 | 賃料総額 | 坪単価 | 内装 | 敷金 | 入居日 | ||
|---|---|---|---|---|---|---|---|---|
| 7F | 19.8坪(65.5㎡) | 要問合せ | - | 事務所仕様 | 2ヶ月 | 相談 | 詳細を見る |
サイトに掲載できない非公開物件が多数ございます。
セットアップ・居抜き・敷金0円など、サイト未掲載の物件もご提案可能です。
オフィスビル外観















銀座一丁目駅徒歩1分、有楽町駅徒歩3分の銀座2丁目に位置する地上7階・地下1階建てオフィスビル。エレベーター1基を完備。約15坪のコンパクトな区画は士業やコンサルティング事務所に最適。銀座通りにも近い好立地で、銀座のブランド力を活かしたオフィス運営が実現します。
| 階数 | 面積 | 賃料総額 | 坪単価 | 内装 | 敷金 | 入居日 | ||
|---|---|---|---|---|---|---|---|---|
| 1F | 14.5坪(47.9㎡) | 要問合せ | - | 事務所仕様 | 10ヶ月 | 相談 | 詳細を見る |
オフィスビル外観





















銀座一丁目駅徒歩1分、東銀座駅徒歩5分の銀座1丁目に位置する地上10階・地下1階建てオフィスビル。OAフロア・個別空調・男女別トイレ・エレベーター1基を完備。約56坪のフロアは中規模オフィスに適した広さ。銀座中央通りにも至近で、有楽町線銀座一丁目駅直上の抜群のアクセスが魅力です。
| 階数 | 面積 | 賃料総額 | 坪単価 | 内装 | 敷金 | 入居日 | ||
|---|---|---|---|---|---|---|---|---|
| 3F | 42.0坪(138.8㎡) | 要問合せ | - | 事務所仕様 | 6ヶ月 | 相談 | 詳細を見る | |
| 5F | 48.0坪(158.7㎡) | 要問合せ | - | 事務所仕様 | 6ヶ月 | 相談 | 詳細を見る | |
| 6F | 56.1坪(185.5㎡) | 要問合せ | - | 事務所仕様 | 6ヶ月 | 相談 | 詳細を見る |
オフィスビル外観



















東銀座駅徒歩6分、築地市場駅徒歩3分の銀座8丁目に位置する地上9階・地下1階建てオフィスビル。OAフロア・個別空調・男女別トイレ・エレベーター1基を完備。約49坪のフロアは中規模オフィスに適した広さ。銀座の南端に位置し、築地方面の豊富な飲食環境も魅力です。
| 階数 | 面積 | 賃料総額 | 坪単価 | 内装 | 敷金 | 入居日 | ||
|---|---|---|---|---|---|---|---|---|
| 6F | 48.8坪(161.2㎡) | 要問合せ | - | 事務所仕様 | 10ヶ月 | 相談 | 詳細を見る |
オフィスビル外観



















| 階数 | 面積 | 賃料総額 | 坪単価 | 内装 | 敷金 | 入居日 | ||
|---|---|---|---|---|---|---|---|---|
| 11F | 35.0坪(115.8㎡) | 要問合せ | - | 事務所仕様 | 10ヶ月 | 相談 | 詳細を見る |
オフィスビル外観























| 階数 | 面積 | 賃料総額 | 坪単価 | 内装 | 敷金 | 入居日 | ||
|---|---|---|---|---|---|---|---|---|
| 1F | 4.1坪(13.7㎡) | 要問合せ | - | 事務所仕様 | 相談 | 2026/04/01 | 詳細を見る |
サイトに掲載できない非公開物件が多数ございます。
セットアップ・居抜き・敷金0円など、サイト未掲載の物件もご提案可能です。
オフィスビル外観







| 階数 | 面積 | 賃料総額 | 坪単価 | 内装 | 敷金 | 入居日 | ||
|---|---|---|---|---|---|---|---|---|
| 7F | 26.1坪(86.2㎡) | 要問合せ | - | 事務所仕様 | 10ヶ月 | 相談 | 詳細を見る |
オフィスビル外観











































築地市場駅徒歩2分、汐留駅徒歩8分の銀座7丁目に位置する1984年竣工の地上7階・地下1階建てオフィスビル。OAフロア・男女別トイレ・エレベーター1基を完備。約34坪のフロアは中小規模オフィスに適した広さ。銀座の南端に位置し、築地や汐留方面へのアクセスも良好です。
| 階数 | 面積 | 賃料総額 | 坪単価 | 内装 | 敷金 | 入居日 | ||
|---|---|---|---|---|---|---|---|---|
| 6F | 34.2坪(113.2㎡) | 要問合せ | - | 事務所仕様 | 6ヶ月 | 相談 | 詳細を見る |
オフィスビル外観



















築地市場駅徒歩2分、新橋駅徒歩6分の銀座7丁目に位置する地上9階建てオフィスビル。個別空調・男女別トイレ・エレベーター1基を完備。約29坪のフロアは少人数から中規模オフィスに適したサイズ。銀座の南端に位置し、大江戸線が使える築地市場駅至近です。
| 階数 | 面積 | 賃料総額 | 坪単価 | 内装 | 敷金 | 入居日 | ||
|---|---|---|---|---|---|---|---|---|
| 5F | 28.5坪(94.3㎡) | 要問合せ | - | 事務所仕様 | 10ヶ月 | 相談 | 詳細を見る | |
| 6F | 22.0坪(72.6㎡) | 要問合せ | - | 事務所仕様 | 10ヶ月 | 相談 | 詳細を見る |
オフィスビル外観



















東銀座駅徒歩4分、銀座駅徒歩7分の銀座7丁目に位置する地上8階建てオフィスビル。個別空調・男女別トイレ・エレベーター1基を完備。約42坪のフロアは中規模オフィスに適した広さ。銀座の中心部に近く、歌舞伎座や銀座シックスにも徒歩圏内です。
| 階数 | 面積 | 賃料総額 | 坪単価 | 内装 | 敷金 | 入居日 | ||
|---|---|---|---|---|---|---|---|---|
| 4F | 41.7坪(137.9㎡) | 要問合せ | - | 事務所仕様 | 6ヶ月 | 相談 | 詳細を見る | |
| 6F | 41.7坪(137.9㎡) | 要問合せ | - | 事務所仕様 | 6ヶ月 | 相談 | 詳細を見る |
オフィスビル外観















| 階数 | 面積 | 賃料総額 | 坪単価 | 内装 | 敷金 | 入居日 | ||
|---|---|---|---|---|---|---|---|---|
| B2 | 23.4坪(77.4㎡) | 要問合せ | - | 事務所仕様 | 1ヶ月 | 相談 | 詳細を見る |
サイトに掲載できない非公開物件が多数ございます。
セットアップ・居抜き・敷金0円など、サイト未掲載の物件もご提案可能です。
| 階数 | 面積 | 賃料総額 | 坪単価 | 内装 | 敷金 | 入居日 | ||
|---|---|---|---|---|---|---|---|---|
| 地下2階~地上1階 | 55.7坪(184.0㎡) | 要問合せ | - | 事務所仕様 | 6ヶ月 | /00 | 詳細を見る |
オフィスビル外観















銀座駅徒歩6分、東銀座駅徒歩2分の銀座3丁目に位置する地上8階・地下1階建てオフィスビル。個別空調・男女別トイレ・エレベーター1基を完備。約35坪のフロアは中小規模オフィスに適した広さ。歌舞伎座にも近い銀座の中心エリアです。
| 階数 | 面積 | 賃料総額 | 坪単価 | 内装 | 敷金 | 入居日 | ||
|---|---|---|---|---|---|---|---|---|
| 2F | 34.7坪(114.6㎡) | 要問合せ | - | 事務所仕様 | 10ヶ月 | 2026/06/30 | 詳細を見る |
オフィスビル外観



















銀座駅徒歩2分の銀座5丁目に位置する地上8階・地下1階建てオフィスビル。個別空調・エレベーター1基を完備。約25坪のフロアは少人数オフィスに適した広さ。銀座中央通りに面した好立地で、日比谷線・丸ノ内線・銀座線の3路線が使える銀座駅至近です。
| 階数 | 面積 | 賃料総額 | 坪単価 | 内装 | 敷金 | 入居日 | ||
|---|---|---|---|---|---|---|---|---|
| 5F | 25.3坪(83.7㎡) | 要問合せ | - | 事務所仕様 | 6ヶ月 | 相談 | 詳細を見る |
オフィスビル外観



















銀座駅徒歩3分、銀座一丁目駅徒歩1分の銀座2丁目に位置する地上9階・地下2階建てオフィスビル。集中空調・男女別トイレ・エレベーター1基を完備。約56坪のフロアは中規模オフィスに適した広さ。竹中工務店グループの物件で、銀座中央通り沿いの一等地です。
| 階数 | 面積 | 賃料総額 | 坪単価 | 内装 | 敷金 | 入居日 | ||
|---|---|---|---|---|---|---|---|---|
| 5F | 56.3坪(186.1㎡) | 要問合せ | - | 事務所仕様 | 12ヶ月 | 相談 | 詳細を見る |
オフィスビル外観

































| 階数 | 面積 | 賃料総額 | 坪単価 | 内装 | 敷金 | 入居日 | ||
|---|---|---|---|---|---|---|---|---|
| 3F | 36.4坪(120.3㎡) | 要問合せ | - | 事務所仕様 | 10ヶ月 | 相談 | 詳細を見る |
115物件中 1〜20物件を表示
| エリア | 平均坪単価 |
|---|---|
| 銀座 | 27,163円/坪 |
A. 銀座の賃貸オフィスの平均坪単価は約27,163円です(10,777円〜65,000円)。内装付きセットアップオフィスの場合、平均坪単価は約35,000円です。
A. はい、銀座エリアには現在2件のセットアップオフィス(内装付き・家具付きオフィス)の募集があります。平均坪単価は約35,000円です。
A. 現在銀座エリアには敷金0円の物件はありませんが、随時更新されますのでご確認ください。
A. 銀座エリアは銀座一丁目駅・銀座駅・東銀座駅・新橋駅・新富町駅などの駅が利用可能で、都心各方面へのアクセスに優れています。