サイトに掲載できない非公開物件が多数ございます。
セットアップ・居抜き・敷金0円など、サイト未掲載の物件もご提案可能です。
検索結果 45 区画 募集中/登録374,683区画
オフィスビル外観

















































勝どき駅駅徒歩6分、月島駅駅徒歩12分に位置するの地上44階 / 地下4階建てオフィスビル。エレベーター32基を完備。基準階約227.17坪の超大型フロアが特徴。
| 階数 | 面積 | 賃料総額 | 坪単価 | 内装 | 敷金 | 入居日 | ||
|---|---|---|---|---|---|---|---|---|
| 2F | 116.2坪(384.0㎡) | 要問合せ | - | 事務所仕様 | 6ヶ月 | 相談 | 詳細を見る | |
| 7F | 12.1坪(39.9㎡) | 要問合せ | - | 事務所仕様 | 6ヶ月 | 相談 | 詳細を見る | |
| 8F C | 52.8坪(174.6㎡) | 要問合せ | - | セットアップオフィス | 6ヶ月 | 相談 | 詳細を見る | |
| 8F | 12.1坪(39.9㎡) | 要問合せ | - | 事務所仕様 | 6ヶ月 | 相談 | 詳細を見る | |
| 20F | 562.9坪(1860.9㎡) | 要問合せ | - | 事務所仕様 | 6ヶ月 | 即日 | 詳細を見る | |
| 21F | 219.1坪(724.3㎡) | 要問合せ | - | 事務所仕様 | 6ヶ月 | 相談 | 詳細を見る | |
| 44F | 227.2坪(751.0㎡) | 要問合せ | - | 事務所仕様 | 6ヶ月 | 相談 | 詳細を見る | |
| 44F | 33.3坪(109.9㎡) | 要問合せ | - | 事務所仕様 | 6ヶ月 | 相談 | 詳細を見る | |
| 44F | 193.9坪(641.1㎡) | 要問合せ | - | 事務所仕様 | 6ヶ月 | 相談 | 詳細を見る |
オフィスビル外観























勝どき駅徒歩1分、清澄通り沿いに立つ地上11階・地下2階建てのビル。1975年築でリニューアル済みの清潔な内装が特徴です。EV2基・駐車場を完備し、SOHOや事務所利用に対応。約10坪台の小規模区画で、コストを抑えたい創業期の企業に最適。勝どきエリアは再開発が進み、将来性のある注目の湾岸ビジネスエリア。
| 階数 | 面積 | 賃料総額 | 坪単価 | 内装 | 敷金 | 入居日 | ||
|---|---|---|---|---|---|---|---|---|
| 11F | 10.8坪(35.7㎡) | 要問合せ | - | 事務所仕様 | 6ヶ月 | 相談 | 詳細を見る |
オフィスビル外観









勝どき駅徒歩5分、都営大江戸線で都心主要駅へ直結。1991年竣工の地上18階建てオフィスタワーで、基準階約274坪の大型フロア。EV5基体制で大規模テナントにも対応します。天井高2,550mm・OAフロア・男女別トイレ完備。周辺にはホームセンターや飲食店、コンビニが充実。まとまった面積で拠点を構えたい企業に最適。
| 階数 | 面積 | 賃料総額 | 坪単価 | 内装 | 敷金 | 入居日 | ||
|---|---|---|---|---|---|---|---|---|
| 8F | 274.3坪(906.8㎡) | 要問合せ | - | 事務所仕様 | 8ヶ月 | 相談 | 詳細を見る | |
| 9F | 274.3坪(906.8㎡) | 要問合せ | - | 事務所仕様 | 8ヶ月 | 相談 | 詳細を見る |
オフィスビル外観

















月島駅徒歩1分、有楽町線・大江戸線の2路線が利用できる駅直結級の好アクセス。1992年竣工のSRC造8階建てで、基準階約102坪の大型フロア。エレベーター2基・個別空調・男女別トイレを完備し、2015年にはエントランスをリニューアル済み。駐車場59台分を備え、車利用の多い企業にも対応。月島もんじゃストリートに近く飲食環境も充実。まとまった面積を確保したい企業に最適です。
| 階数 | 面積 | 賃料総額 | 坪単価 | 内装 | 敷金 | 入居日 | ||
|---|---|---|---|---|---|---|---|---|
| 2F | 102.2坪(337.8㎡) | 要問合せ | - | 事務所仕様 | 12ヶ月 | 2026/04/01 | 詳細を見る |
オフィスビル外観







































| 階数 | 面積 | 賃料総額 | 坪単価 | 内装 | 敷金 | 入居日 | ||
|---|---|---|---|---|---|---|---|---|
| 6F | 32.6坪(107.9㎡) | 要問合せ | - | シェアオフィス | 4ヶ月 | 相談 | 詳細を見る |
サイトに掲載できない非公開物件が多数ございます。
セットアップ・居抜き・敷金0円など、サイト未掲載の物件もご提案可能です。
オフィスビル外観





























| 階数 | 面積 | 賃料総額 | 坪単価 | 内装 | 敷金 | 入居日 | ||
|---|---|---|---|---|---|---|---|---|
| B1 | 31.5坪(104.1㎡) | 要問合せ | - | 事務所仕様 | 6ヶ月 | 相談 | 詳細を見る | |
| B1 | 8.7坪(28.9㎡) | 要問合せ | - | 事務所仕様 | 6ヶ月 | 相談 | 詳細を見る | |
| 1F | 31.5坪(104.1㎡) | 要問合せ | - | 事務所仕様 | 6ヶ月 | 相談 | 詳細を見る | |
| 1F | 203.8坪(673.9㎡) | 要問合せ | - | 事務所仕様 | 6ヶ月 | 2026/05/01 | 詳細を見る | |
| 8F | 135.9坪(449.3㎡) | 要問合せ | - | 事務所仕様 | 6ヶ月 | 相談 | 詳細を見る | |
| 9F | 32.0坪(105.8㎡) | 要問合せ | - | 事務所仕様 | 6ヶ月 | 相談 | 詳細を見る | |
| 9F | 35.7坪(118.0㎡) | 要問合せ | - | 事務所仕様 | 6ヶ月 | 相談 | 詳細を見る | |
| 9F | 33.8坪(111.8㎡) | 要問合せ | - | 事務所仕様 | 6ヶ月 | 相談 | 詳細を見る | |
| 9F | 66.8坪(220.8㎡) | 要問合せ | - | 事務所仕様 | 6ヶ月 | 相談 | 詳細を見る | |
| 9F | 55.2坪(182.4㎡) | 要問合せ | - | 事務所仕様 | 6ヶ月 | 相談 | 詳細を見る | |
| 9F | 53.6坪(177.3㎡) | 要問合せ | - | 事務所仕様 | 6ヶ月 | 相談 | 詳細を見る | |
| 10F | 565.2坪(1868.3㎡) | 要問合せ | - | 事務所仕様 | 6ヶ月 | 相談 | 詳細を見る | |
| 11F | 135.9坪(449.3㎡) | 要問合せ | - | 事務所仕様 | 6ヶ月 | 相談 | 詳細を見る | |
| 14F | 282.6坪(934.2㎡) | 要問合せ | - | 事務所仕様 | 6ヶ月 | 相談 | 詳細を見る | |
| 24F | 301.9坪(997.9㎡) | 要問合せ | - | 事務所仕様 | 6ヶ月 | 相談 | 詳細を見る | |
| 39F | 494.6坪(1635.0㎡) | 要問合せ | - | 事務所仕様 | 6ヶ月 | 2026/05/01 | 詳細を見る |
オフィスビル外観



















東京メトロ有楽町線・都営大江戸線月島駅から徒歩4分。1993年竣工・新耐震基準適合のRC造6階建てオフィスビルです。角地立地で窓面が多く、室内は明るく開放的。基準階約61坪で個別空調・24時間利用可能。月島エリアはもんじゃストリートをはじめ飲食店が豊富で、下町情緒とウォーターフロントの快適さを両立した環境です。
| 階数 | 面積 | 賃料総額 | 坪単価 | 内装 | 敷金 | 入居日 | ||
|---|---|---|---|---|---|---|---|---|
| 2F | 61.5坪(203.4㎡) | 要問合せ | - | 事務所仕様 | 8ヶ月 | 相談 | 詳細を見る | |
| 3F | 61.5坪(203.4㎡) | 要問合せ | - | 事務所仕様 | 8ヶ月 | 相談 | 詳細を見る | |
| 4F | 61.5坪(203.4㎡) | 要問合せ | - | 事務所仕様 | 8ヶ月 | 相談 | 詳細を見る |
オフィスビル外観























勝どき駅徒歩6分の晴海3丁目に位置する地上9階建てオフィスビル。エレベーター2基を完備。約30坪のフロアは少人数から中規模オフィスに対応可能。東京湾に近い晴海エリアです。
| 階数 | 面積 | 賃料総額 | 坪単価 | 内装 | 敷金 | 入居日 | ||
|---|---|---|---|---|---|---|---|---|
| 1F | 6.6坪(21.8㎡) | 要問合せ | - | 事務所仕様 | 10ヶ月 | 相談 | 詳細を見る |
オフィスビル外観



















勝どき駅徒歩1分、駅直結A1出口至近の大規模オフィスビル。1996年築・地上16階・地下2階のSRC造で、EV4基を備えた基準階241坪の大型物件です。光ファイバー・OAフロア対応で、24時間セキュリティ完備。隅田川沿いの眺望と湾岸エリアならではの開放感が魅力。拡大フェーズの企業に適した大空間オフィス。
| 階数 | 面積 | 賃料総額 | 坪単価 | 内装 | 敷金 | 入居日 | ||
|---|---|---|---|---|---|---|---|---|
| 7F | 67.0坪(221.4㎡) | 要問合せ | - | 事務所仕様 | 12ヶ月 | 相談 | 詳細を見る |
オフィスビル外観









































勝どき駅駅徒歩7分に位置するの地上10階建てオフィスビル。基準階約168.5坪の大型フロアが特徴。
| 階数 | 面積 | 賃料総額 | 坪単価 | 内装 | 敷金 | 入居日 | ||
|---|---|---|---|---|---|---|---|---|
| 3F | 168.5坪(557.0㎡) | 要問合せ | - | 事務所仕様 | 12ヶ月 | 相談 | 詳細を見る | |
| 5F | 112.9坪(373.1㎡) | 要問合せ | - | 事務所仕様 | 12ヶ月 | 相談 | 詳細を見る |
サイトに掲載できない非公開物件が多数ございます。
セットアップ・居抜き・敷金0円など、サイト未掲載の物件もご提案可能です。
オフィスビル外観







月島駅駅徒歩7分、勝どき駅駅徒歩8分に位置するの地上4階建てオフィスビル。約26坪のフロアは少人数から中規模オフィスに対応可能。
| 階数 | 面積 | 賃料総額 | 坪単価 | 内装 | 敷金 | 入居日 | ||
|---|---|---|---|---|---|---|---|---|
| 2F | 26.0坪(86.0㎡) | 要問合せ | - | 事務所仕様 | 6ヶ月 | 相談 | 詳細を見る |
オフィスビル外観









| 階数 | 面積 | 賃料総額 | 坪単価 | 内装 | 敷金 | 入居日 | ||
|---|---|---|---|---|---|---|---|---|
| 6F | 79.1坪(261.4㎡) | 要問合せ | - | 事務所仕様 | 8ヶ月 | 相談 | 詳細を見る |
オフィスビル外観











| 階数 | 面積 | 賃料総額 | 坪単価 | 内装 | 敷金 | 入居日 | ||
|---|---|---|---|---|---|---|---|---|
| 2F | 36.5坪(120.7㎡) | 要問合せ | - | 事務所仕様 | 8ヶ月 | 相談 | 詳細を見る | |
| 5F | 285.6坪(944.0㎡) | 要問合せ | - | 事務所仕様 | 8ヶ月 | 相談 | 詳細を見る | |
| 5F | 142.8坪(472.0㎡) | 要問合せ | - | 事務所仕様 | 8ヶ月 | 相談 | 詳細を見る | |
| 7F | 71.0坪(234.8㎡) | 要問合せ | - | 事務所仕様 | 8ヶ月 | 相談 | 詳細を見る | |
| 12F | 142.8坪(472.0㎡) | 要問合せ | - | 事務所仕様 | 8ヶ月 | 相談 | 詳細を見る |
オフィスビル外観勝どき駅徒歩1分の好立地に立つ1996年築の大規模ビル。地上16階・地下2階建て、天井高2,600mmでEV4基を完備。新耐震基準適合で個別空調・OAフロア対応です。約21坪の小割区画もあり、スタートアップから利用可能。月島エリアも徒歩圏内で、湾岸の利便性と都心アクセスを両立。コンパクトに銀座近接エリアで構えたい企業向け。
| 階数 | 面積 | 賃料総額 | 坪単価 | 内装 | 敷金 | 入居日 | ||
|---|---|---|---|---|---|---|---|---|
| 3F | 21.1坪(69.7㎡) | 要問合せ | - | 事務所仕様 | 12ヶ月 | 相談 | 詳細を見る |
オフィスビル外観









勝どき駅 ・バス停「晴海BRTターミナル」 徒歩2分駅徒歩10分、月島駅駅徒歩15分に位置するの地上17階建てオフィスビル。エレベーター12基を完備。基準階約204.98坪の超大型フロアが特徴。
| 階数 | 面積 | 賃料総額 | 坪単価 | 内装 | 敷金 | 入居日 | ||
|---|---|---|---|---|---|---|---|---|
| 3F | 205.0坪(677.6㎡) | 要問合せ | - | 事務所仕様 | 12ヶ月 | 相談 | 詳細を見る |
サイトに掲載できない非公開物件が多数ございます。
セットアップ・居抜き・敷金0円など、サイト未掲載の物件もご提案可能です。
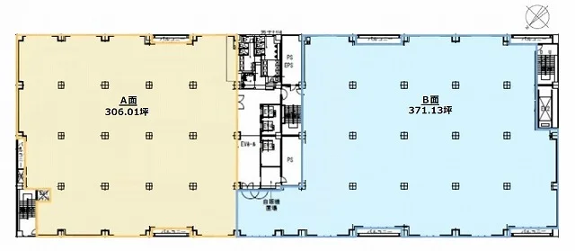
フロア図面



| 階数 | 面積 | 賃料総額 | 坪単価 | 内装 | 敷金 | 入居日 | ||
|---|---|---|---|---|---|---|---|---|
| B1 | 25.7坪(85.0㎡) | 要問合せ | - | 事務所仕様 | 相談 | 相談 | 詳細を見る | |
| B1 | 17.5坪(58.0㎡) | 要問合せ | - | 事務所仕様 | 相談 | 相談 | 詳細を見る | |
| 1F | 25.7坪(85.0㎡) | 399,996円 | 15,558円 | 事務所仕様 | 相談 | 相談 | 詳細を見る |
16物件中 1〜16物件を表示
| エリア | 平均坪単価 |
|---|---|
| 勝どき・晴海・月島 | 16,343円/坪 |
A. 勝どき・晴海・月島の賃貸オフィスの平均坪単価は約16,343円です(9,000円〜32,169円)。
A. 現在勝どき・晴海・月島エリアにはセットアップオフィスの募集はありませんが、随時更新されますのでご確認ください。
A. 現在勝どき・晴海・月島エリアには敷金0円の物件はありませんが、随時更新されますのでご確認ください。
A. 勝どき・晴海・月島エリアは勝どき駅・月島駅・勝どき駅 ・バス停「晴海BRTターミナル」 徒歩2分などの駅が利用可能で、都心各方面へのアクセスに優れています。