サイトに掲載できない非公開物件が多数ございます。
セットアップ・居抜き・敷金0円など、サイト未掲載の物件もご提案可能です。
検索結果 190 区画 募集中/登録374,683区画
オフィスビル外観











































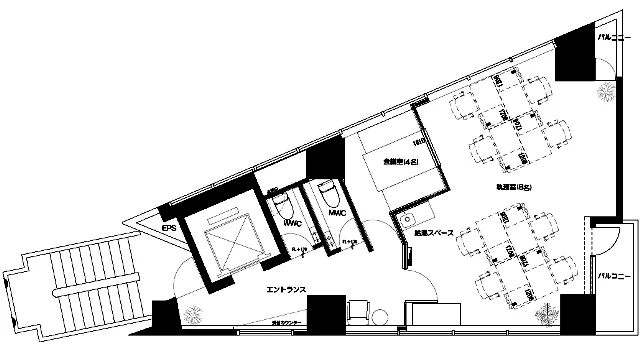
サンフロンティア不動産が展開する「NOVEL WORK」シリーズ。半蔵門駅からわずか徒歩2分、麹町駅・永田町駅も徒歩圏内で3駅3路線が利用可能です。フルセットアップ仕様の貸室にはカウンターキッチンやテレカンブースを完備し、Wi-Fi引込済みですぐに業務を開始可能。無柱設計で柔軟なレイアウトにも対応します。平河天満宮にほど近く、都心でありながら緑を感じる落ち着いた環境。半蔵門周辺の個性的なカフェやレストランも楽しめます。敷金0円のセットアップオフィスで、スムーズなオフィス移転を実現します。
| 階数 | 面積 | 賃料総額 | 坪単価 | 内装 | 敷金 | 入居日 | ||
|---|---|---|---|---|---|---|---|---|
| 2F A | 23.8坪(78.7㎡) | 690,490円 | 29,000円 | セットアップオフィス | 0円 | 2026年5月上旬予定 | 詳細を見る | |
| 3F A | 23.7坪(78.3㎡) | 686,430円 | 29,000円 | セットアップオフィス | 0円 | 2026年5月上旬予定 | 詳細を見る | |
| 4F A | 23.7坪(78.3㎡) | 686,430円 | 28,999円 | セットアップオフィス | 0円 | 即日 | 詳細を見る | |
| 5F B | 24.2坪(80.0㎡) | 701,800円 | 29,000円 | セットアップオフィス | 0円 | 2026年5月上旬予定 | 詳細を見る | |
| 6F B | 24.2坪(80.0㎡) | 701,800円 | 29,000円 | セットアップオフィス | 0円 | 2026年5月上旬予定 | 詳細を見る | |
| 7F | 47.8坪(158.2㎡) | 1,435,200円 | 30,000円 | セットアップオフィス | 0円 | 即日 | 詳細を見る |
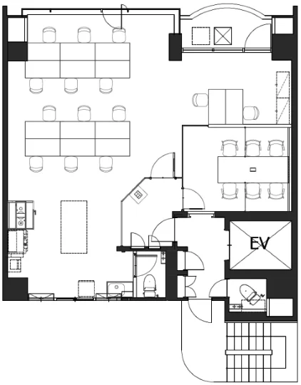
執務室





























































九段下駅徒歩4分、靖国通り沿いに建つ地上9階建てのセットアップオフィス。2018年にエントランスを全面リニューアルし、モダンな印象に生まれ変わりました。基準階約56坪のフロアは大きな窓から光が入る開放的な空間で、レセプション・会議室・リフレッシュスペースが設置済み。東西線・半蔵門線・都営新宿線の3路線が利用でき、飯田橋・神保町方面へのアクセスも良好です。敷金0円・内装付きオフィスのため、オフィス移転の初期費用を最小限に抑えられます。皇居や北の丸公園に近く、落ち着いたビジネス環境が整っています。
| 階数 | 面積 | 賃料総額 | 坪単価 | 内装 | 敷金 | 入居日 | ||
|---|---|---|---|---|---|---|---|---|
| 7F | 56.1坪(185.5㎡) | 1,403,000円 | 25,004円 | セットアップオフィス | 0円 | 相談 | 詳細を見る | |
| 8F | 56.1坪(185.5㎡) | 1,403,000円 | 25,004円 | セットアップオフィス | 0円 | 相談 | 詳細を見る |
オフィスビル外観























市ヶ谷駅徒歩5分、九段南に位置するセットアップオフィス。2023年7月に外装・エントランス・貸室内の大規模リニューアルを実施し、現代的なオフィス空間に生まれ変わりました。敷金0円で入居でき、オフィス移転時の初期費用を大幅に削減。靖国通りから一本入った落ち着いた立地ながら、都営新宿線・丸ノ内線・半蔵門線など複数路線が徒歩圏内で通勤利便性も良好な内装付きオフィスです。
| 階数 | 面積 | 賃料総額 | 坪単価 | 内装 | 敷金 | 入居日 | ||
|---|---|---|---|---|---|---|---|---|
| 2F | 35.7坪(118.0㎡) | 821,064円 | 22,999円 | セットアップオフィス | 0円 | 相談 | 詳細を見る | |
| 3F | 35.7坪(118.0㎡) | 821,064円 | 22,999円 | セットアップオフィス | 0円 | 相談 | 詳細を見る |
オフィスビル外観

























市ケ谷駅徒歩4分、半蔵門駅徒歩8分の九段南3丁目に位置する地上10階建てオフィスビル。個別空調・男女別トイレ・エレベーター1基を完備。約25坪のフロアは少人数オフィスに適した広さ。JR・有楽町線・南北線・都営新宿線が使える市ヶ谷エリアです。
| 階数 | 面積 | 賃料総額 | 坪単価 | 内装 | 敷金 | 入居日 | ||
|---|---|---|---|---|---|---|---|---|
| 5F | 25.1坪(82.9㎡) | 要問合せ | - | セットアップオフィス | 10ヶ月 | 相談 | 詳細を見る | |
| 10F | 24.8坪(81.8㎡) | 要問合せ | - | 事務所仕様 | 10ヶ月 | 相談 | 詳細を見る |
オフィスビル外観























市ケ谷駅徒歩7分、九段下駅徒歩8分の九段南2丁目に位置する地上10階建てオフィスビル。エレベーター1基を完備。約59坪のフロアは中規模オフィスに適した広さ。敷金7ヶ月で入居可能。市ヶ谷・九段エリアです。
| 階数 | 面積 | 賃料総額 | 坪単価 | 内装 | 敷金 | 入居日 | ||
|---|---|---|---|---|---|---|---|---|
| 4F | 43.0坪(142.3㎡) | 1,291,500円 | 30,000円 | セットアップオフィス | 7ヶ月 | 2026/02/19 | 詳細を見る | |
| 6F | 43.0坪(142.3㎡) | 要問合せ | - | セットアップオフィス | 7ヶ月 | 相談 | 詳細を見る | |
| 9階・10階メゾネット | 58.8坪(194.5㎡) | 要問合せ | - | 事務所仕様 | 7ヶ月 | 2026/05/26 | 詳細を見る | |
| 9-10 | 58.8坪(194.5㎡) | 1,765,200円 | 30,000円 | セットアップオフィス | 7ヶ月 | 相談 | 詳細を見る |
サイトに掲載できない非公開物件が多数ございます。
セットアップ・居抜き・敷金0円など、サイト未掲載の物件もご提案可能です。
オフィスビル外観

















神保町駅駅徒歩1分、竹橋駅駅徒歩9分に位置するの地上10階建てオフィスビル。エレベーター1基を完備。約69.26坪のフロアは中規模オフィスに適した広さ。
| 階数 | 面積 | 賃料総額 | 坪単価 | 内装 | 敷金 | 入居日 | ||
|---|---|---|---|---|---|---|---|---|
| 4F | 69.3坪(229.0㎡) | 1,870,020円 | 27,000円 | セットアップオフィス | 6ヶ月 | 即日 | 詳細を見る | |
| 8F | 69.3坪(229.0㎡) | 要問合せ | - | 事務所仕様 | 6ヶ月 | 相談 | 詳細を見る | |
| 8F | 69.3坪(229.0㎡) | 1,870,020円 | 27,000円 | セットアップオフィス | 6ヶ月 | 即日 | 詳細を見る |
オフィスビル外観

























半蔵門駅駅徒歩1分、麹町駅駅徒歩6分に位置するの地上8階 / 地下1階建てオフィスビル。エレベーター1基を完備。約47.03坪のフロアは中規模オフィスに適した広さ。
| 階数 | 面積 | 賃料総額 | 坪単価 | 内装 | 敷金 | 入居日 | ||
|---|---|---|---|---|---|---|---|---|
| 4F | 82.6坪(272.9㎡) | 要問合せ | - | セットアップオフィス | 12ヶ月 | 相談 | 詳細を見る | |
| 4F | 82.5坪(272.9㎡) | 要問合せ | - | セットアップオフィス | 12ヶ月 | 2025/08/01 | 詳細を見る | |
| 7F | 47.0坪(155.5㎡) | 要問合せ | - | 事務所仕様 | 12ヶ月 | 2026/06/01 | 詳細を見る |
オフィスビル外観









神保町駅駅徒歩2分、九段下駅駅徒歩5分に位置するの地上12階建てオフィスビル。エレベーター2基を完備。基準階約106.92坪の大型フロアが特徴。
| 階数 | 面積 | 賃料総額 | 坪単価 | 内装 | 敷金 | 入居日 | ||
|---|---|---|---|---|---|---|---|---|
| 2F | 106.9坪(353.5㎡) | 3,199,902円 | 29,928円 | セットアップオフィス | 6ヶ月 | 2026/04/16 | 詳細を見る | |
| 3F | 106.9坪(353.5㎡) | 3,199,902円 | 29,928円 | セットアップオフィス | 6ヶ月 | 2026/04/16 | 詳細を見る | |
| 4F | 106.9坪(353.5㎡) | 3,299,979円 | 30,864円 | セットアップオフィス | 6ヶ月 | 2026/04/16 | 詳細を見る | |
| 5F | 106.9坪(353.5㎡) | 3,299,979円 | 30,864円 | セットアップオフィス | 6ヶ月 | 2026/04/16 | 詳細を見る | |
| 6F | 106.9坪(353.5㎡) | 3,399,949円 | 31,799円 | セットアップオフィス | 6ヶ月 | 2026/04/16 | 詳細を見る | |
| 8F | 106.9坪(353.5㎡) | 3,399,949円 | 31,799円 | セットアップオフィス | 6ヶ月 | 2026/04/16 | 詳細を見る | |
| 9F | 106.9坪(353.5㎡) | 3,579,895円 | 33,482円 | セットアップオフィス | 6ヶ月 | 2026/04/16 | 詳細を見る | |
| 10F | 106.9坪(353.5㎡) | 3,579,895円 | 33,482円 | セットアップオフィス | 6ヶ月 | 2026/04/16 | 詳細を見る | |
| 11F | 106.9坪(353.5㎡) | 3,639,984円 | 34,044円 | セットアップオフィス | 6ヶ月 | 2026/04/16 | 詳細を見る |
オフィスビル外観



















神保町駅駅徒歩1分に位置するの地上11階 / 地下2階建てオフィスビル。エレベーター1基を完備。約42.5坪のフロアは中規模オフィスに適した広さ。
| 階数 | 面積 | 賃料総額 | 坪単価 | 内装 | 敷金 | 入居日 | ||
|---|---|---|---|---|---|---|---|---|
| 3F | 42.5坪(140.5㎡) | 要問合せ | - | セットアップオフィス | 12ヶ月 | 相談 | 詳細を見る |
オフィスビル外観



























市ケ谷駅駅徒歩4分、九段下駅駅徒歩10分に位置するの地上10階建てオフィスビル。エレベーター1基を完備。約27.27坪のフロアは少人数から中規模オフィスに対応可能。敷金3ヶ月で入居可能。
| 階数 | 面積 | 賃料総額 | 坪単価 | 内装 | 敷金 | 入居日 | ||
|---|---|---|---|---|---|---|---|---|
| 3F | 27.3坪(90.1㎡) | 要問合せ | - | 事務所仕様 | 3ヶ月 | 2026/06 上旬 | 詳細を見る | |
| 5F | 27.3坪(90.1㎡) | 要問合せ | - | 事務所仕様 | 3ヶ月 | 2026/06 上旬 | 詳細を見る | |
| 5F | 27.3坪(90.1㎡) | 736,290円 | 27,000円 | セットアップオフィス | 3ヶ月 | 2026年5月上旬予定 | 詳細を見る | |
| 9F | 27.3坪(90.1㎡) | 要問合せ | - | 事務所仕様 | 3ヶ月 | 2026/06 上旬 | 詳細を見る |
サイトに掲載できない非公開物件が多数ございます。
セットアップ・居抜き・敷金0円など、サイト未掲載の物件もご提案可能です。
オフィスビル外観

































| 階数 | 面積 | 賃料総額 | 坪単価 | 内装 | 敷金 | 入居日 | ||
|---|---|---|---|---|---|---|---|---|
| 1F | 50.3坪(166.1㎡) | 1,256,250円 | 25,000円 | 事務所仕様 | 相談 | 相談 | 詳細を見る | |
| 3F | 30.4坪(100.5㎡) | 790,140円 | 26,000円 | セットアップオフィス | 相談 | 相談 | 詳細を見る | |
| 5階+6階 | 50.3坪(166.1㎡) | 要問合せ | - | セットアップオフィス | 相談 | 相談 | 詳細を見る | |
| 5-6 | 50.3坪(166.1㎡) | 1,256,250円 | 25,000円 | セットアップオフィス | 相談 | 相談 | 詳細を見る |
オフィスビル外観





























神保町駅駅徒歩1分、九段下駅駅徒歩8分に位置するの地上8階 / 地下1階建てオフィスビル。エレベーター1基を完備。約48.26坪のフロアは中規模オフィスに適した広さ。
| 階数 | 面積 | 賃料総額 | 坪単価 | 内装 | 敷金 | 入居日 | ||
|---|---|---|---|---|---|---|---|---|
| B1 | 20.2坪(66.7㎡) | 343,060円 | 17,000円 | セットアップオフィス | 6ヶ月 | 相談 | 詳細を見る | |
| 3+4階 | 48.3坪(159.5㎡) | 要問合せ | - | 事務所仕様 | 6ヶ月 | 2026/03/30 | 詳細を見る | |
| 3-4 | 48.3坪(159.5㎡) | 1,109,980円 | 23,000円 | セットアップオフィス | 6ヶ月 | 2026/03/30 | 詳細を見る | |
| 3F | 23.2坪(76.7㎡) | 533,830円 | 23,000円 | セットアップオフィス | 6ヶ月 | 2026/03/30 | 詳細を見る | |
| 4F | 25.1坪(82.8㎡) | 576,150円 | 23,000円 | セットアップオフィス | 6ヶ月 | 相談 | 詳細を見る |
外観







| 階数 | 面積 | 賃料総額 | 坪単価 | 内装 | 敷金 | 入居日 | ||
|---|---|---|---|---|---|---|---|---|
| 3F | 17.0坪(56.3㎡) | 要問合せ | - | 事務所仕様 | 2ヶ月 | 2026年9月26日予定 | 詳細を見る | |
| 3F | 17.0坪(56.2㎡) | 要問合せ | - | セットアップオフィス | 2ヶ月 | 2026年9月26日予定 | 詳細を見る |
オフィスビル外観



















神保町駅徒歩3分、九段下駅徒歩6分の神田神保町に位置する地上7階・地下1階建てオフィスビル。個別空調・男女別トイレ・エレベーター1基を完備。約27坪のフロアは少人数オフィスに使いやすい広さ。古書店街として知られる神保町は出版・法律・教育系企業が多く集まる文教エリアです。
| 階数 | 面積 | 賃料総額 | 坪単価 | 内装 | 敷金 | 入居日 | ||
|---|---|---|---|---|---|---|---|---|
| 4F | 27.2坪(90.0㎡) | 要問合せ | - | 事務所仕様 | 6ヶ月 | 相談 | 詳細を見る |
オフィスビル外観













| 階数 | 面積 | 賃料総額 | 坪単価 | 内装 | 敷金 | 入居日 | ||
|---|---|---|---|---|---|---|---|---|
| 5F | 9.3坪(30.7㎡) | 要問合せ | - | 事務所仕様 | 5ヶ月 | 相談 | 詳細を見る |
サイトに掲載できない非公開物件が多数ございます。
セットアップ・居抜き・敷金0円など、サイト未掲載の物件もご提案可能です。
オフィスビル外観















市ケ谷駅徒歩3分、半蔵門駅徒歩8分の九段南4丁目に位置する地上4階建てのコンパクトオフィスビル。個別空調・エレベーター1基を完備。約12坪の区画はフリーランスや少人数事務所に最適。敷金3ヶ月で入居可能。番町エリアの閑静な住宅街に立地し、落ち着いた雰囲気の中で業務に集中できます。
| 階数 | 面積 | 賃料総額 | 坪単価 | 内装 | 敷金 | 入居日 | ||
|---|---|---|---|---|---|---|---|---|
| 4F | 12.1坪(39.9㎡) | 要問合せ | - | 事務所仕様 | 5ヶ月 | 相談 | 詳細を見る |
オフィスビル外観























九段下駅徒歩3分、半蔵門駅徒歩4分の九段北1丁目に位置する地上5階・地下1階建てオフィスビル。個別空調・エレベーター1基を完備。約20坪のフロアは少人数オフィスに最適。靖国神社や北の丸公園にも近い九段エリアで、半蔵門線・東西線・都営新宿線の3路線が利用可能です。
| 階数 | 面積 | 賃料総額 | 坪単価 | 内装 | 敷金 | 入居日 | ||
|---|---|---|---|---|---|---|---|---|
| 4F | 19.9坪(65.8㎡) | 要問合せ | - | 事務所仕様 | 8ヶ月 | 相談 | 詳細を見る |
オフィスビル外観























| 階数 | 面積 | 賃料総額 | 坪単価 | 内装 | 敷金 | 入居日 | ||
|---|---|---|---|---|---|---|---|---|
| 2F | 63.0坪(208.3㎡) | 要問合せ | - | 事務所仕様 | 8ヶ月 | 相談 | 詳細を見る |
オフィスビル外観















九段下駅徒歩3分、神保町駅徒歩3分の神田神保町3丁目に位置する地上6階・地下2階建てオフィスビル。個別空調・男女別トイレ・エレベーター1基を完備。約36坪のフロアは中小規模オフィスに適した広さ。神保町の古書店街に近く、出版・教育系企業に好適な文教エリアです。
| 階数 | 面積 | 賃料総額 | 坪単価 | 内装 | 敷金 | 入居日 | ||
|---|---|---|---|---|---|---|---|---|
| 6F | 35.5坪(117.3㎡) | 要問合せ | - | 事務所仕様 | 8ヶ月 | 2026/04 上旬 | 詳細を見る |
オフィスビル外観















| 階数 | 面積 | 賃料総額 | 坪単価 | 内装 | 敷金 | 入居日 | ||
|---|---|---|---|---|---|---|---|---|
| 1F | 29.7坪(98.1㎡) | 449,975円 | 15,166円 | 事務所仕様 | 6ヶ月 | 相談 | 詳細を見る | |
| 6階7階メゾネット | 29.7坪(98.1㎡) | 要問合せ | - | 事務所仕様 | 6ヶ月 | 相談 | 詳細を見る |
119物件中 1〜20物件を表示
| エリア | 平均坪単価 |
|---|---|
| 飯田橋・九段下・神保町 | 18,236円/坪 |
A. 飯田橋・九段下・神保町の賃貸オフィスの平均坪単価は約18,236円です(2,889円〜34,044円)。内装付きセットアップオフィスの場合、平均坪単価は約27,200円です。
A. はい、飯田橋・九段下・神保町エリアには現在36件のセットアップオフィス(内装付き・家具付きオフィス)の募集があります。平均坪単価は約27,200円です。
A. はい、飯田橋・九段下・神保町エリアには現在6件の敷金0円で入居可能なオフィスがあります。初期費用を抑えたい方におすすめです。
A. 飯田橋・九段下・神保町エリアは神保町駅・飯田橋駅・九段下駅・市ケ谷駅・半蔵門駅などの駅が利用可能で、都心各方面へのアクセスに優れています。