


オフィスビル外観1 / 4
SPROUT IIDABASHI
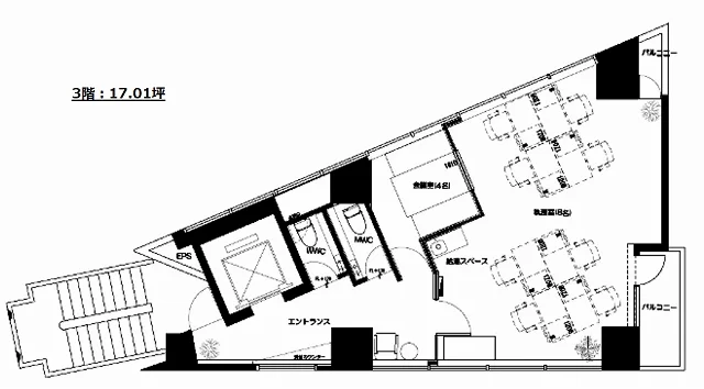
3F
| 面積 | 17.0坪(56.2㎡) |
|---|---|
| 賃料 | 要問い合わせ |
| 坪単価 | 要問い合わせ |
| 敷金 | 4ヶ月 |
| 内装 | セットアップオフィス |
| 入居可能日 | 2026年9月26日予定 |
※敷金減額サービスをご利用時は、賃料の 4〜8%(与信審査により変動)の保証料が年間で別途発生します。
物件ページに戻る区画詳細情報
面積・間取り
| 階数 | 3 | 内装 | セットアップオフィス |
|---|---|---|---|
| 面積(坪) | 17.01坪 | 面積(㎡) | 56.23㎡ |
| 天井高 | - | 床仕様 | タイルカーペット |
| 収容人数 | - | 会議室 | 2室 |
賃料・契約条件
| 賃料 | 要問い合わせ | 坪単価 | 要問い合わせ |
|---|---|---|---|
| 敷金/保証金 | 4ヶ月 | 礼金 | 0 |
| 入居可能日 | 2026年9月26日予定 | 募集状況 | 空室 |
設備・仕様
| テレブース | - | 機械警備 | - |
|---|---|---|---|
| トイレ | 男女トイレ別 | 空調 | 個別空調 |
物件情報
アクセス・所在地
| 物件名 | SPROUT IIDABASHI | ||
|---|---|---|---|
| 所在地 | 東京都千代田区飯田橋3-11-25 | ||
| 最寄駅 | 飯田橋駅 徒歩1分 | ||
建物概要
| 構造 | 鉄骨造 | 規模 | 地上9階 |
|---|---|---|---|
| 竣工 | 1999年 | リニューアル | - |
