高田馬場・大久保エリアは、早稲田大学をはじめとする教育機関が集まる活気あふれる学生街でありながら、賃貸オフィスをお探しの方にとって魅力的なビジネスエリアです。JR山手線、西武新宿線、東京メトロ東西線の…
検索結果 79 件 募集中/登録179,760件
オフィスビル外観









新宿区高田馬場1丁目、高田馬場駅前に立地する地上7階・地下1階建てのオフィスビル。駅前立地のため、JR山手線・東京メトロ東西線・西武新宿線への乗り換えが至近で、通勤利便性は抜群。高田馬場エリアでは比較的規模の大きい建物で、地下1階から7階までフロア構成の選択肢が豊富。駅前の商業集積地に位置し、飲食・金融・コンビニ等の周辺施設も充実した利便性の高い環境。
| 階数 | 面積 | 賃料総額 | 坪単価 | 内装 | 敷金 | 入居日 | ||
|---|---|---|---|---|---|---|---|---|
| 3F | 17.9坪(59.3㎡) | 要問合せ | - | 事務所仕様 | 12ヶ月 | 相談 | 詳細を見る |
オフィスビル外観





高田馬場駅駅徒歩6分に位置するの地上7階建てオフィスビル。エレベーター1基を完備。約16.04坪のフロアは少人数から中規模オフィスに対応可能。
| 階数 | 面積 | 賃料総額 | 坪単価 | 内装 | 敷金 | 入居日 | ||
|---|---|---|---|---|---|---|---|---|
| 2F | 16.0坪(53.0㎡) | 要問合せ | - | 事務所仕様 | 5ヶ月 | 相談 | 詳細を見る |
フロア図面高田馬場駅徒歩8分の高田馬場2丁目に位置する地上5階建てオフィスビル。約11坪のコンパクトな区画はフリーランスや少人数事務所に最適。敷金2ヶ月で入居可能。JR山手線・西武新宿線・東西線が使える高田馬場エリアで、早稲田大学にも近い文教エリアです。
| 階数 | 面積 | 賃料総額 | 坪単価 | 内装 | 敷金 | 入居日 | ||
|---|---|---|---|---|---|---|---|---|
| 2F | 10.8坪(35.8㎡) | 要問合せ | - | 事務所仕様 | 2ヶ月 | 相談 | 詳細を見る |
オフィスビル外観







東新宿駅徒歩5分、新大久保駅徒歩10分の大久保2丁目に位置する地上11階・地下1階建てオフィスビル。個別空調・男女別トイレ・エレベーター2基を完備。約45坪のフロアは中規模オフィスに適した広さ。敷金5ヶ月で入居可能。VORTシリーズの管理体制です。
| 階数 | 面積 | 賃料総額 | 坪単価 | 内装 | 敷金 | 入居日 | ||
|---|---|---|---|---|---|---|---|---|
| 4F | 44.6坪(147.6㎡) | 要問合せ | - | 事務所仕様 | 5ヶ月 | 2026/06/01 | 詳細を見る |
オフィスビル外観









早稲田駅駅徒歩1分に位置するの地上6階建てオフィスビル。エレベーター1基を完備。約52.14坪のフロアは中規模オフィスに適した広さ。
| 階数 | 面積 | 賃料総額 | 坪単価 | 内装 | 敷金 | 入居日 | ||
|---|---|---|---|---|---|---|---|---|
| 4F | 52.1坪(172.4㎡) | 要問合せ | - | 事務所仕様 | 6ヶ月 | 相談 | 詳細を見る |
オフィスビル外観







高田馬場駅駅徒歩1分に位置するの地上4階建てオフィスビル。約11.28坪のコンパクトな区画は少人数事務所に最適。
| 階数 | 面積 | 賃料総額 | 坪単価 | 内装 | 敷金 | 入居日 | ||
|---|---|---|---|---|---|---|---|---|
| 4F | 11.3坪(37.3㎡) | 要問合せ | - | 事務所仕様 | 5ヶ月 | 相談 | 詳細を見る |
オフィスビル外観

高田馬場駅駅徒歩8分、下落合駅駅徒歩9分に位置するの地上3階建てオフィスビル。約19.84坪のフロアは少人数から中規模オフィスに対応可能。敷金1ヶ月で入居可能。
| 階数 | 面積 | 賃料総額 | 坪単価 | 内装 | 敷金 | 入居日 | ||
|---|---|---|---|---|---|---|---|---|
| 2F | 19.8坪(65.6㎡) | 要問合せ | - | 事務所仕様 | 1ヶ月 | 相談 | 詳細を見る |
オフィスビル外観




高田馬場駅駅徒歩2分に位置するの地上7階 / 地下1階建てオフィスビル。エレベーター1基を完備。約32.07坪のフロアは少人数から中規模オフィスに対応可能。
| 階数 | 面積 | 賃料総額 | 坪単価 | 内装 | 敷金 | 入居日 | ||
|---|---|---|---|---|---|---|---|---|
| 3F | 32.1坪(106.0㎡) | 要問合せ | - | 事務所仕様 | 5ヶ月 | 2026/03 下旬 | 詳細を見る |
オフィスビル外観


高田馬場駅徒歩1分の高田馬場1丁目に位置する地上5階建てオフィスビル。約38坪のフロアは中小規模オフィスに適した広さ。JR山手線・西武新宿線・東西線が使える高田馬場駅直上の好アクセスです。
| 階数 | 面積 | 賃料総額 | 坪単価 | 内装 | 敷金 | 入居日 | ||
|---|---|---|---|---|---|---|---|---|
| 一棟貸し | 37.9坪(125.3㎡) | 要問合せ | - | 事務所仕様 | 8ヶ月 | 相談 | 詳細を見る |
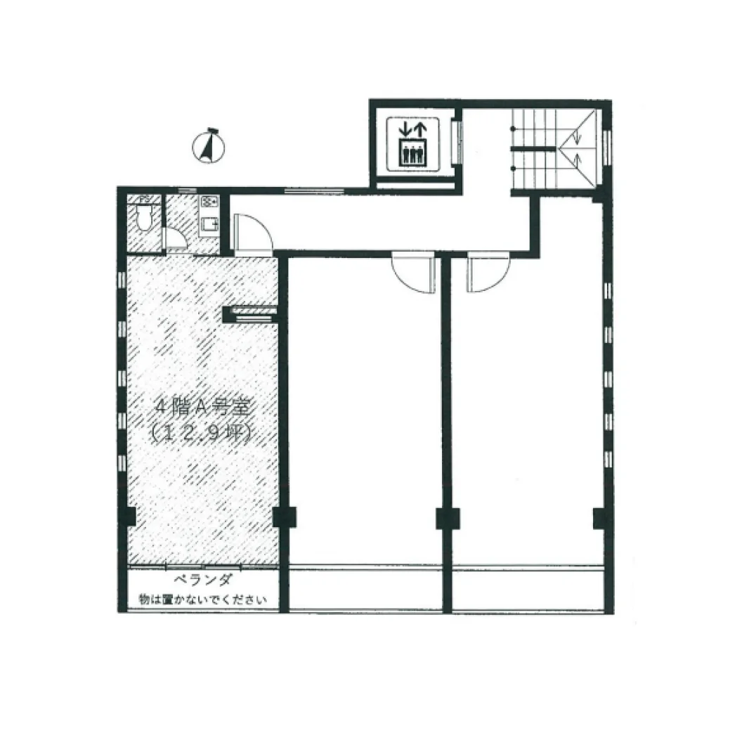
オフィスビル外観


























高田馬場駅駅徒歩4分、下落合駅駅徒歩8分に位置するの地上5階建てオフィスビル。エレベーター1基を完備。約12.9坪のコンパクトな区画は少人数事務所に最適。
| 階数 | 面積 | 賃料総額 | 坪単価 | 内装 | 敷金 | 入居日 | ||
|---|---|---|---|---|---|---|---|---|
| 4F | 12.9坪(42.6㎡) | 要問合せ | - | 事務所仕様 | 相談 | 相談 | 詳細を見る |
10物件中 1〜10物件を表示
| エリア | 平均坪単価 |
|---|---|
| 高田馬場・大久保 | 14,769円/坪 |
A. 高田馬場・大久保の賃貸オフィスの平均坪単価は約14,769円です(3,000円〜31,818円)。
A. 現在高田馬場・大久保エリアにはセットアップオフィスの募集はありませんが、随時更新されますのでご確認ください。
A. 現在高田馬場・大久保エリアには敷金0円の物件はありませんが、随時更新されますのでご確認ください。
A. 高田馬場・大久保エリアは高田馬場駅・目白駅・早稲田駅・東新宿駅・西早稲田駅などの駅が利用可能で、都心各方面へのアクセスに優れています。