東京駅の賃貸オフィス・貸事務所一覧
検索結果 215 件 募集中/登録179,760件
オフィスビル外観







WORK VILLA YAESU
宝町駅徒歩3分、東京駅徒歩8分の京橋1丁目交差点角地に立地。地上13階・地下2階建てで、2026年5月竣工予定の新築オフィスビルです。基準階約263坪の大型フロアにエレベーター4基、個別空調・男女別トイレを完備。天井高最大3.7mのスケルトン天井や自然換気窓を採用した先進的な設計。1階にはオープンラウンジ、屋上にはテラスも整備。大規模な本社移転を検討する企業に最適な一棟。
| 階数 | 面積 | 賃料総額 | 坪単価 | 内装 | 敷金 | 入居日 | ||
|---|---|---|---|---|---|---|---|---|
| 2F | 253.8坪(838.9㎡) | 要問合せ | - | セットアップオフィス | 6ヶ月 | 2026/05/22 | 詳細を見る | |
| 3階・4階セット | 525.9坪(1738.5㎡) | 要問合せ | - | セットアップオフィス | 6ヶ月 | 2026/05/22 | 詳細を見る | |
| 5F | 263.3坪(869.4㎡) | 13,300,000円 | 50,513円 | セットアップオフィス | 6ヶ月 | 2026-02-01T00:00:00.000Z | 詳細を見る | |
| 7階・8階セット | 525.9坪(1738.5㎡) | 要問合せ | - | セットアップオフィス | 6ヶ月 | 2026/05/22 | 詳細を見る | |
| 11F | 263.3坪(866.1㎡) | 要問合せ | - | セットアップオフィス | 6ヶ月 | 2026/05/22 | 詳細を見る | |
| 12F | 263.3坪(866.1㎡) | 要問合せ | - | セットアップオフィス | 6ヶ月 | 2026/05/22 | 詳細を見る | |
| 2026-03-04T00:00:00.000Z | 525.9坪(1738.8㎡) | 27,800,000円 | 52,854円 | セットアップオフィス | 6ヶ月 | 2026-05-21T00:00:00.000Z | 詳細を見る |
オフィスビル外観




T-PLUS八丁堀
東京メトロ日比谷線・八丁堀駅から徒歩5分。東京駅も徒歩圏の好立地。2026年竣工予定のS造8階建て新築ビルで、EV2基・新耐震基準適合。基準階約89坪の大型フロアにセットアップオフィス区画あり。什器付きで入居後すぐに業務開始が可能です。1階に専用会議室、屋上にオープンテラスを設置。OAフロア・個別空調・男女別トイレ完備。スピード重視の成長企業に最適な即戦力オフィスです。
| 階数 | 面積 | 賃料総額 | 坪単価 | 内装 | 敷金 | 入居日 | ||
|---|---|---|---|---|---|---|---|---|
| 3F | 39.2坪(129.5㎡) | 要問合せ | - | セットアップオフィス | 12ヶ月 | 2026-04-01T00:00:00.000Z | 詳細を見る | |
| 3F | 43.5坪(143.7㎡) | 要問合せ | - | セットアップオフィス | 12ヶ月 | 2026-04-01T00:00:00.000Z | 詳細を見る | |
| 4F | 89.8坪(296.7㎡) | 要問合せ | - | セットアップオフィス | 12ヶ月 | 2026-04-01T00:00:00.000Z | 詳細を見る | |
| 6F | 89.8坪(296.7㎡) | 要問合せ | - | セットアップオフィス | 12ヶ月 | 2026-04-01T00:00:00.000Z | 詳細を見る | |
| 7F | 89.8坪(296.7㎡) | 要問合せ | - | セットアップオフィス | 12ヶ月 | 2026-04-01T00:00:00.000Z | 詳細を見る | |
| 8F | 89.8坪(296.7㎡) | 要問合せ | - | セットアップオフィス | 12ヶ月 | 2026-04-01T00:00:00.000Z | 詳細を見る |
オフィスビル外観



























合人社江戸日本橋ビル
日本橋駅徒歩2分、東京駅徒歩9分の日本橋2丁目エリア。2025年竣工の地上13階建て新築ビルで、天井高3,265mmの開放的な空間が魅力。EV2基・個別空調・男女別トイレを完備。各フロアにテラスを設け、1階カフェや屋上テラスなど交流スペースも充実。伝統素材と現代デザインが融合した意匠。感度の高い企業に最適な新世代オフィス。
| 階数 | 面積 | 賃料総額 | 坪単価 | 内装 | 敷金 | 入居日 | ||
|---|---|---|---|---|---|---|---|---|
| 3F | 4.8坪(16.0㎡) | 要問合せ | - | セットアップオフィス | 4ヶ月 | 相談 | 詳細を見る | |
| 4F | 64.7坪(213.9㎡) | 要問合せ | - | セットアップオフィス | 4ヶ月 | 相談 | 詳細を見る | |
| 5F | 64.7坪(213.9㎡) | 要問合せ | - | セットアップオフィス | 4ヶ月 | 相談 | 詳細を見る | |
| 11F | 64.7坪(213.9㎡) | 要問合せ | - | セットアップオフィス | 4ヶ月 | 相談 | 詳細を見る |
オフィスビル外観



BIZCORE日本橋
日本橋駅徒歩4分、東京駅徒歩7分の日本橋3丁目に立地。2026年1月竣工の最新オフィスビルです。地上10階建てでエレベーター2基を完備。ZEB Ready認証取得の高い環境性能が特長。個別空調・男女別トイレ・OAフロアを備えたハイグレード仕様。日鉄興和不動産が手掛けるBIZCOREシリーズの一棟。先進的なオフィス環境を求める企業に最適です。
| 階数 | 面積 | 賃料総額 | 坪単価 | 内装 | 敷金 | 入居日 | ||
|---|---|---|---|---|---|---|---|---|
| 2F | 49.1坪(162.5㎡) | 要問合せ | - | セットアップオフィス | 12ヶ月 | 相談 | 詳細を見る | |
| 7F | 75.6坪(250.0㎡) | 要問合せ | - | セットアップオフィス | 12ヶ月 | 相談 | 詳細を見る | |
| 8F | 75.6坪(250.0㎡) | 要問合せ | - | セットアップオフィス | 12ヶ月 | 相談 | 詳細を見る |
オフィスビル外観



TOFROM YAESU TOWER(トフロムヤエスタワー)
JR東京駅八重洲口直結の地上51階・地下4階建て超高層タワー。2026年2月竣工で、高さ約250mのランドマークビル。天井高2,800mm、基準階約760坪の無柱大空間。EV32基・新耐震基準適合。9〜50階がオフィスフロアで、13階・41階にワーカー支援施設を配置。地下街・バスターミナル直結の圧倒的な交通利便性。日本を代表する企業にふさわしい最高峰のオフィスです。
| 階数 | 面積 | 賃料総額 | 坪単価 | 内装 | 敷金 | 入居日 | ||
|---|---|---|---|---|---|---|---|---|
| 9F | 51.0坪(168.5㎡) | 要問合せ | - | 事務所仕様 | 12ヶ月 | 2027/04/01 | 詳細を見る | |
| 9F | 53.9坪(178.3㎡) | 要問合せ | - | 事務所仕様 | 12ヶ月 | 2027/04/01 | 詳細を見る | |
| 9F | 56.0坪(185.1㎡) | 要問合せ | - | 事務所仕様 | 12ヶ月 | 2027/04/01 | 詳細を見る | |
| 9F | 45.0坪(148.7㎡) | 要問合せ | - | 事務所仕様 | 12ヶ月 | 2027/04/01 | 詳細を見る | |
| 9F | 67.0坪(221.4㎡) | 要問合せ | - | 事務所仕様 | 12ヶ月 | 2026/10/01 | 詳細を見る | |
| 22F | 760.6坪(2514.3㎡) | 要問合せ | - | 事務所仕様 | 12ヶ月 | 2027/04/01 | 詳細を見る | |
| 23F | 778.8坪(2574.6㎡) | 要問合せ | - | 事務所仕様 | 12ヶ月 | 2027/04/01 | 詳細を見る | |
| 24F | 778.8坪(2574.6㎡) | 要問合せ | - | 事務所仕様 | 12ヶ月 | 2027/04/01 | 詳細を見る | |
| 25F | 778.8坪(2574.6㎡) | 要問合せ | - | 事務所仕様 | 12ヶ月 | 2027/04/01 | 詳細を見る | |
| 26F | 778.8坪(2574.6㎡) | 要問合せ | - | 事務所仕様 | 12ヶ月 | 2027/04/01 | 詳細を見る | |
| 27F | 778.8坪(2574.6㎡) | 要問合せ | - | 事務所仕様 | 12ヶ月 | 2027/04/01 | 詳細を見る | |
| 28F | 778.8坪(2574.6㎡) | 要問合せ | - | 事務所仕様 | 12ヶ月 | 2027/04/01 | 詳細を見る | |
| 29F | 778.8坪(2574.6㎡) | 要問合せ | - | 事務所仕様 | 12ヶ月 | 2027/04/01 | 詳細を見る | |
| 30F | 778.8坪(2574.6㎡) | 要問合せ | - | 事務所仕様 | 12ヶ月 | 2027/04/01 | 詳細を見る | |
| 31F | 778.9坪(2574.8㎡) | 要問合せ | - | 事務所仕様 | 12ヶ月 | 2027/04/01 | 詳細を見る | |
| 32F | 778.9坪(2574.7㎡) | 要問合せ | - | 事務所仕様 | 12ヶ月 | 2027/04/01 | 詳細を見る | |
| 34F | 797.6坪(2636.9㎡) | 要問合せ | - | 事務所仕様 | 12ヶ月 | 2027/04/01 | 詳細を見る | |
| 35F | 796.0坪(2631.5㎡) | 要問合せ | - | 事務所仕様 | 12ヶ月 | 2027/04/01 | 詳細を見る | |
| 36F | 796.0坪(2631.3㎡) | 要問合せ | - | 事務所仕様 | 12ヶ月 | 2027/04/01 | 詳細を見る | |
| 37F | 795.9坪(2631.0㎡) | 要問合せ | - | 事務所仕様 | 12ヶ月 | 2027/04/01 | 詳細を見る | |
| 38F | 795.8坪(2630.7㎡) | 要問合せ | - | 事務所仕様 | 12ヶ月 | 2027/04/01 | 詳細を見る | |
| 39F | 795.7坪(2630.3㎡) | 要問合せ | - | 事務所仕様 | 12ヶ月 | 2027/04/01 | 詳細を見る | |
| 40F | 795.5坪(2629.8㎡) | 要問合せ | - | 事務所仕様 | 12ヶ月 | 2027/04/01 | 詳細を見る | |
| 42F | 164.0坪(542.2㎡) | 要問合せ | - | 事務所仕様 | 12ヶ月 | 2027/04/01 | 詳細を見る | |
| 43F | 795.0坪(2628.2㎡) | 要問合せ | - | 事務所仕様 | 12ヶ月 | 2027/04/01 | 詳細を見る | |
| 44F | 825.3坪(2728.4㎡) | 要問合せ | - | 事務所仕様 | 12ヶ月 | 2027/04/01 | 詳細を見る | |
| 45F | 825.1坪(2727.7㎡) | 要問合せ | - | 事務所仕様 | 12ヶ月 | 2027/04/01 | 詳細を見る | |
| 46F | 824.9坪(2726.9㎡) | 要問合せ | - | 事務所仕様 | 12ヶ月 | 2027/04/01 | 詳細を見る | |
| 47F | 824.6坪(2726.1㎡) | 要問合せ | - | 事務所仕様 | 12ヶ月 | 2027/04/01 | 詳細を見る | |
| 48F | 824.4坪(2725.3㎡) | 要問合せ | - | 事務所仕様 | 12ヶ月 | 2027/04/01 | 詳細を見る | |
| 49F | 824.1坪(2724.4㎡) | 要問合せ | - | 事務所仕様 | 12ヶ月 | 2027/04/01 | 詳細を見る | |
| 50F | 823.8坪(2723.4㎡) | 要問合せ | - | 事務所仕様 | 12ヶ月 | 2027/04/01 | 詳細を見る |
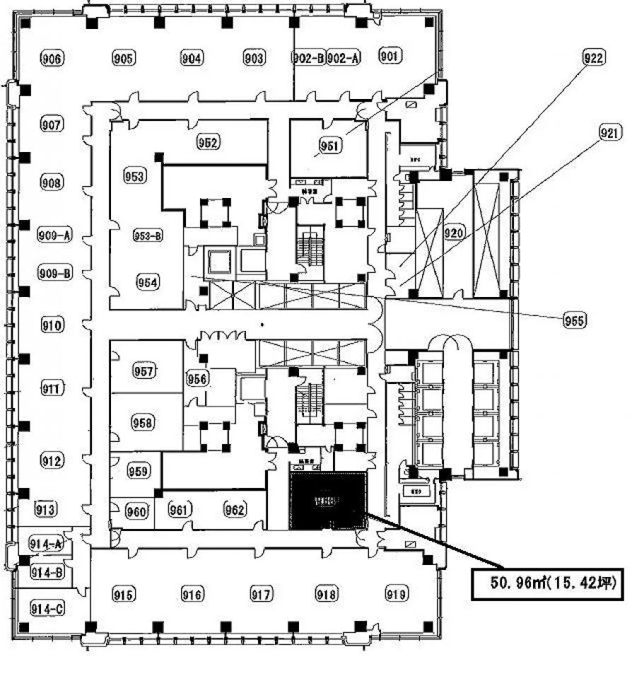
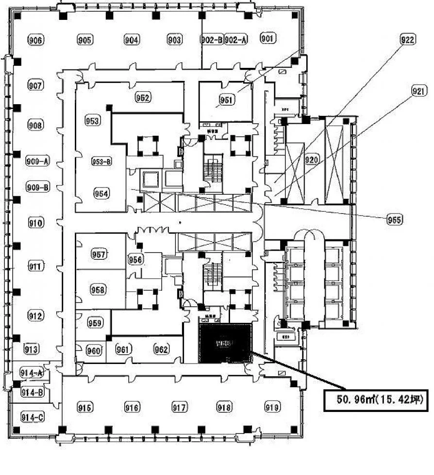
フロア図面日本生命東八重洲ビル
八丁堀駅駅徒歩3分、東京駅駅徒歩12分に位置するの地上9階 / 地下5階建てオフィスビル。エレベーター4基を完備。基準階約254.2坪の超大型フロアが特徴。
| 階数 | 面積 | 賃料総額 | 坪単価 | 内装 | 敷金 | 入居日 | ||
|---|---|---|---|---|---|---|---|---|
| 1F | 101.5坪(335.6㎡) | 要問合せ | - | 事務所仕様 | 12ヶ月 | 2027/01/01 | 詳細を見る | |
| 2F | 254.2坪(840.3㎡) | 要問合せ | - | 事務所仕様 | 12ヶ月 | 2027/01/01 | 詳細を見る | |
| 3F | 254.2坪(840.3㎡) | 要問合せ | - | 事務所仕様 | 12ヶ月 | 2027/01/01 | 詳細を見る | |
| 4F | 254.2坪(840.3㎡) | 要問合せ | - | 事務所仕様 | 12ヶ月 | 2027/01/01 | 詳細を見る | |
| 5F | 254.2坪(840.3㎡) | 要問合せ | - | 事務所仕様 | 12ヶ月 | 2027/01/01 | 詳細を見る | |
| 6F | 254.2坪(840.3㎡) | 要問合せ | - | 事務所仕様 | 12ヶ月 | 2027/01/01 | 詳細を見る | |
| 7F | 254.2坪(840.3㎡) | 要問合せ | - | 事務所仕様 | 12ヶ月 | 2027/00 | 詳細を見る | |
| 8F | 254.2坪(840.3㎡) | 要問合せ | - | 事務所仕様 | 12ヶ月 | 2027/00 | 詳細を見る | |
| 9F | 254.2坪(840.3㎡) | 要問合せ | - | 事務所仕様 | 12ヶ月 | 2027/01/01 | 詳細を見る |
ヤブ原
八丁堀駅徒歩2分、東京駅からも徒歩圏内の地上10階・地下1階建てビル。基準階約169坪の大型フロアが特徴で、まとまった面積を確保できます。八丁堀エリアは再開発の進む注目の立地で、複数路線が利用可能。周辺にはコンビニや飲食店が充実。大規模なフロアを求める成長企業の本社機能に適した物件。
| 階数 | 面積 | 賃料総額 | 坪単価 | 内装 | 敷金 | 入居日 | ||
|---|---|---|---|---|---|---|---|---|
| 3F | 168.9坪(558.5㎡) | 要問合せ | - | 事務所仕様 | 相談 | 2027/03/01 | 詳細を見る | |
| 4F | 168.9坪(558.5㎡) | 要問合せ | - | 事務所仕様 | 相談 | 2027/03/01 | 詳細を見る | |
| 5F | 168.9坪(558.5㎡) | 要問合せ | - | 事務所仕様 | 相談 | 2027/03/01 | 詳細を見る | |
| 6F | 168.9坪(558.5㎡) | 要問合せ | - | 事務所仕様 | 相談 | 2027/03/01 | 詳細を見る | |
| 7F | 168.9坪(558.5㎡) | 要問合せ | - | 事務所仕様 | 相談 | 2027/03/01 | 詳細を見る | |
| 8F | 168.9坪(558.5㎡) | 要問合せ | - | 事務所仕様 | 相談 | 2027/03/01 | 詳細を見る | |
| 9F | 168.9坪(558.5㎡) | 要問合せ | - | 事務所仕様 | 相談 | 2027/03/01 | 詳細を見る |
オフィスビル外観












新国際ビル
有楽町駅駅徒歩1分、日比谷駅駅徒歩3分に位置するの地上9階 / 地下4階建てオフィスビル。エレベーター13基を完備。約58.65坪のフロアは中規模オフィスに適した広さ。
| 階数 | 面積 | 賃料総額 | 坪単価 | 内装 | 敷金 | 入居日 | ||
|---|---|---|---|---|---|---|---|---|
| 4F | 11.2坪(36.9㎡) | 要問合せ | - | 事務所仕様 | 12ヶ月 | 相談 | 詳細を見る | |
| 5F | 10.2坪(33.8㎡) | 要問合せ | - | 事務所仕様 | 12ヶ月 | 2026/04/01 | 詳細を見る | |
| 5F | 42.3坪(140.0㎡) | 要問合せ | - | 事務所仕様 | 12ヶ月 | 2026/04/01 | 詳細を見る | |
| 9F | 10.2坪(33.8㎡) | 要問合せ | - | 事務所仕様 | 12ヶ月 | 相談 | 詳細を見る | |
| 9F | 9.8坪(32.4㎡) | 要問合せ | - | 事務所仕様 | 12ヶ月 | 2026/04/01 | 詳細を見る | |
| 9F | 58.6坪(193.9㎡) | 要問合せ | - | 事務所仕様 | 12ヶ月 | 相談 | 詳細を見る |
オフィスビル外観







ヤブ原ビル
JR東京駅八重洲口直結の地上51階・地下4階建て超高層タワー。2026年2月竣工で、高さ約250mのランドマークビル。天井高2,900mm、基準階約760坪の無柱大空間。EV32基・新耐震基準適合。9〜50階がオフィスフロアで、13階・41階にワーカー支援施設を配置。地下街・バスターミナル直結の圧倒的な交通利便性。日本を代表する企業にふさわしい最高峰のオフィスです。
| 階数 | 面積 | 賃料総額 | 坪単価 | 内装 | 敷金 | 入居日 | ||
|---|---|---|---|---|---|---|---|---|
| 4F | 168.9坪(558.5㎡) | 要問合せ | - | 事務所仕様 | 12ヶ月 | 2027/03予定 | 詳細を見る | |
| 9F | 168.9坪(558.5㎡) | 要問合せ | - | 事務所仕様 | 12ヶ月 | 2027/03予定 | 詳細を見る | |
| 22F | 312.6坪(1033.4㎡) | 要問合せ | - | 事務所仕様 | 12ヶ月 | 相談 | 詳細を見る | |
| 42F 5 | 162.7坪(162.7㎡) | 要問合せ | - | 事務所仕様 | 12ヶ月 | 相談 | 詳細を見る | |
| 42F 2、3、5 | 468.3坪(1548.1㎡) | 要問合せ | - | 事務所仕様 | 12ヶ月 | 相談 | 詳細を見る | |
| 42F 1 | 164.2坪(542.8㎡) | 要問合せ | - | 事務所仕様 | 12ヶ月 | 相談 | 詳細を見る |
オフィスビル外観






三菱ビル
東京駅徒歩3分、二重橋前駅徒歩1分。三菱地所が手がける地上15階・地下4階建ての大型オフィスビルです。OAフロア・集中空調・男女別トイレ・エレベーター14基を完備。基準階約338坪のフロアは丸の内仲通り沿いの一等地。日本を代表するビジネス街の中核です。
| 階数 | 面積 | 賃料総額 | 坪単価 | 内装 | 敷金 | 入居日 | ||
|---|---|---|---|---|---|---|---|---|
| B1 | 15.9坪(52.7㎡) | 要問合せ | - | 事務所仕様 | 12ヶ月 | 2026/08/01 | 詳細を見る | |
| B1 | 19.2坪(63.5㎡) | 要問合せ | - | 事務所仕様 | 12ヶ月 | 相談 | 詳細を見る | |
| B2 | 7.0坪(23.1㎡) | 要問合せ | - | 事務所仕様 | 12ヶ月 | 2026/05/01 | 詳細を見る | |
| 4F | 290.6坪(960.8㎡) | 要問合せ | - | 事務所仕様 | 12ヶ月 | 2027/10/01 | 詳細を見る |
オフィスビル外観









新大手町ビル
大手町駅駅徒歩1分、東京駅駅徒歩5分に位置するの地上10階 / 地下3階建てオフィスビル。エレベーター7基を完備。基準階約483.4坪の超大型フロアが特徴。
| 階数 | 面積 | 賃料総額 | 坪単価 | 内装 | 敷金 | 入居日 | ||
|---|---|---|---|---|---|---|---|---|
| 5F | 108.8坪(359.5㎡) | 要問合せ | - | 事務所仕様 | 相談 | 2027/04/01 | 詳細を見る |
オフィスビル外観







エンパイヤビル
八丁堀駅徒歩1分、八重洲通りと新大橋通りの交差点に面する2017年竣工の大規模オフィスビル。東京建物との共同開発による地上11階建て。天井高2,800mm、基準階323坪超の広大なフロアに25ゾーンの個別空調を完備。全室LED照明、床荷重500kg/m2のハイスペック仕様です。屋上テラスや最大35台の駐車場も備え、本社移転先として申し分のないグレード感です。
| 階数 | 面積 | 賃料総額 | 坪単価 | 内装 | 敷金 | 入居日 | ||
|---|---|---|---|---|---|---|---|---|
| 7,8,9階セット | 970.8坪(3209.4㎡) | 要問合せ | - | 事務所仕様 | 12ヶ月 | 2027/10/01 | 詳細を見る | |
| 7F | 323.6坪(1069.8㎡) | 要問合せ | - | 事務所仕様 | 12ヶ月 | 2027-10-01T00:00:00.000Z | 詳細を見る | |
| 8F | 323.6坪(1069.8㎡) | 要問合せ | - | 事務所仕様 | 12ヶ月 | 2027-10-01T00:00:00.000Z | 詳細を見る | |
| 9F | 323.6坪(1069.8㎡) | 要問合せ | - | 事務所仕様 | 12ヶ月 | 2027-10-01T00:00:00.000Z | 詳細を見る |
オフィスビル外観







ヤブ原ビル
八丁堀駅徒歩2分に2027年3月竣工予定の新築オフィスビル。鉄骨・RC造の地上9階・地下1階建てで、天井高2,800mm・EV3基・個別空調を完備。新耐震基準適合の最新スペック。基準階約169坪の大型フロアで自由なレイアウトが可能です。茅場町駅も徒歩圏内で複数路線を利用可能。最新設備の新築ビルで拠点を構えたい企業に最適。
| 階数 | 面積 | 賃料総額 | 坪単価 | 内装 | 敷金 | 入居日 | ||
|---|---|---|---|---|---|---|---|---|
| 5F | 168.9坪(558.5㎡) | 要問合せ | - | 事務所仕様 | 12ヶ月 | 2027/03予定 | 詳細を見る | |
| 6F | 168.9坪(558.5㎡) | 要問合せ | - | 事務所仕様 | 12ヶ月 | 2027/03予定 | 詳細を見る | |
| 7F | 168.9坪(558.5㎡) | 要問合せ | - | 事務所仕様 | 12ヶ月 | 2027/03予定 | 詳細を見る | |
| 8F | 168.9坪(558.5㎡) | 要問合せ | - | 事務所仕様 | 12ヶ月 | 2027/03予定 | 詳細を見る |
オフィスビル外観









八重洲長岡ビル
八丁堀駅徒歩3分、茅場町駅徒歩5分の2駅利用可能な立地。1979年築の地上8階建てで、ワンフロア約25坪のコンパクトなオフィスビルです。個別空調完備で、貸室外に水回りを配置し室内を有効活用できる設計。機械警備導入済みでセキュリティも安心。新川エリアの落ち着いた環境で、少人数チームの拠点に適した物件。
| 階数 | 面積 | 賃料総額 | 坪単価 | 内装 | 敷金 | 入居日 | ||
|---|---|---|---|---|---|---|---|---|
| 2F | 21.8坪(72.2㎡) | 要問合せ | - | 事務所仕様 | 10ヶ月 | 2026/06 上旬 | 詳細を見る | |
| 6F | 21.8坪(72.2㎡) | 要問合せ | - | 事務所仕様 | 10ヶ月 | 2026/05 上旬 | 詳細を見る |
オフィスビル外観









東貨ビル
宝町駅徒歩2分、東銀座駅徒歩3分の銀座1丁目に位置する地上9階建ての大型オフィスビル。基準階約104坪のフロアに個別空調・男女別トイレ・エレベーター2基を完備。都営浅草線の宝町駅至近で、銀座・京橋エリアのビジネス拠点に最適です。
| 階数 | 面積 | 賃料総額 | 坪単価 | 内装 | 敷金 | 入居日 | ||
|---|---|---|---|---|---|---|---|---|
| 2F | 104.4坪(345.2㎡) | 要問合せ | - | 事務所仕様 | 6ヶ月 | 相談 | 詳細を見る | |
| 9F | 60.0坪(198.5㎡) | 要問合せ | - | 事務所仕様 | 6ヶ月 | 相談 | 詳細を見る |
オフィスビル外観









東亜ビル
銀座一丁目駅徒歩1分、有楽町駅徒歩3分の銀座1丁目に位置する地上10階・地下1階建てオフィスビル。個別空調・エレベーター1基を完備。約34坪のフロアは中小規模オフィスに適した広さ。敷金2ヶ月で入居可能。有楽町線の銀座一丁目駅直上です。
| 階数 | 面積 | 賃料総額 | 坪単価 | 内装 | 敷金 | 入居日 | ||
|---|---|---|---|---|---|---|---|---|
| 4F | 34.1坪(112.8㎡) | 要問合せ | - | 事務所仕様 | 相談 | 相談 | 詳細を見る | |
| 7F | 34.1坪(112.8㎡) | 要問合せ | - | 事務所仕様 | 相談 | 相談 | 詳細を見る |
オフィスビル外観









GM-3ビル(G・M-3ビル)
宝町駅徒歩1分、京橋駅徒歩2分の昭和通り沿い角地。1981年竣工のSRC造9階建て、2012年にリニューアル実施済み。耐震補強済みで安心の構造です。基準階約46坪、角地ならではの窓面が多く採光良好。個別空調・男女別トイレ・OAフロア完備。京橋・銀座エリアの結節点に位置し、複数路線を活用したい中規模企業向け。
| 階数 | 面積 | 賃料総額 | 坪単価 | 内装 | 敷金 | 入居日 | ||
|---|---|---|---|---|---|---|---|---|
| 2F | 44.3坪(146.4㎡) | 要問合せ | - | 事務所仕様 | 12ヶ月 | 相談 | 詳細を見る |
オフィスビル外観











兜町第3ビル
茅場町駅から徒歩わずか1分、日本橋駅も徒歩5分の抜群のアクセス。1971年竣工の地上7階建てで、1フロア約18坪のコンパクトな区画構成。個別空調とEV1基を備え、少人数オフィスに適した使い勝手の良さが魅力。兜町の金融街に位置し、証券・金融関連の企業にも好相性の立地です。
| 階数 | 面積 | 賃料総額 | 坪単価 | 内装 | 敷金 | 入居日 | ||
|---|---|---|---|---|---|---|---|---|
| 1F | 19.2坪(63.5㎡) | 要問合せ | - | 事務所仕様 | 6ヶ月 | 2026/06/01 | 詳細を見る | |
| 7F | 18.0坪(59.5㎡) | 要問合せ | - | 事務所仕様 | 6ヶ月 | 相談 | 詳細を見る |
75物件中 1〜20物件を表示