






| 階数 | 2 | 内装 | セットアップ |
|---|---|---|---|
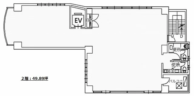
| 面積(坪) | 49.89坪 | 面積(㎡) | 164.93㎡ |
| 賃料 | ¥1,796,040 | 坪単価 | ¥36,000/坪 |
| 敷金/保証金 | 相談 | 礼金 | 0 |
| 入居可能日 | - | 募集状況 | 空室 |
| 収容人数 | - | 会議室 | - |
| テレブース | - | 機械警備 | - |
| 天井高 | - | 床仕様 | - |
| トイレ | 男女トイレ別 | 空調 | - |
| 物件名 | 京橋中央ビル | ||
|---|---|---|---|
| 所在地 | 東京都中央区京橋1-14-7 | ||
| 最寄駅 | 東京駅 徒歩8分 / 宝町駅 徒歩3分 / 京橋駅 徒歩4分 | ||
| 構造 | 鉄骨鉄筋コンクリート造 | 規模 | 地上10階 / 地下1階 |
| 竣工 | 1990 | リニューアル | - |