総武線(快速)沿いの賃貸オフィス・貸事務所一覧
検索結果 510 件 募集中/登録179,760件
オフィスビル外観

REVZO新橋
中央日本土地建物グループが手がける木造・木質化オフィスブランド「REVZO」の第1弾。柱・天井・外壁・内壁に多摩産材を使用し、木の温もりを感じながら働ける次世代型セットアップオフィスです。内幸町駅徒歩2分・新橋駅徒歩5分の好アクセスに加え、各階バルコニーと屋上テラスを備えた開放的な設計が特長。敷金0円で入居可能なため、オフィス移転の初期負担を抑えつつ、環境に配慮した内装付きオフィスで新しい働き方を始められます。
| 階数 | 面積 | 賃料総額 | 坪単価 | 内装 | 敷金 | 入居日 | ||
|---|---|---|---|---|---|---|---|---|
| 7F | 67.6坪(223.6㎡) | 要問合せ | - | セットアップオフィス | 0円 | 2026-09-01T00:00:00.000Z | 詳細を見る | |
| 9F | 67.6坪(223.6㎡) | 要問合せ | - | セットアップオフィス | 0円 | 2026-10-01T00:00:00.000Z | 詳細を見る | |
| 10F | 67.6坪(223.6㎡) | 要問合せ | - | セットアップオフィス | 0円 | 2026-10-01T00:00:00.000Z | 詳細を見る |
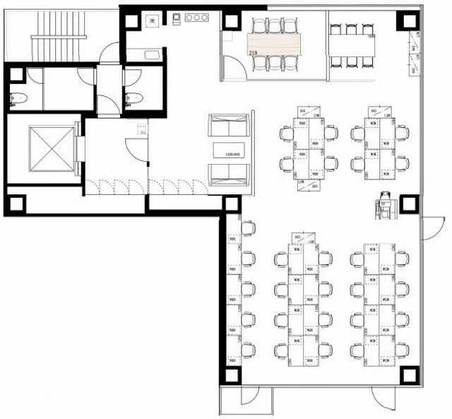
フロア図面ASOOM新橋
旭化成ホームズが手がける「Office as a Home」コンセプトの次世代型セットアップオフィス。御成門駅徒歩4分の14階建て新築ビルで、共用ラウンジ・屋上テラス・ABW対応区画を備えています。BELS四つ星、CASBEE Aランクを取得した高い環境・健康性能が特長。敷金0円で入居可能なため、オフィス移転の初期費用を抑えながら、居心地の良さと生産性を両立した内装付きオフィスで働けます。
| 階数 | 面積 | 賃料総額 | 坪単価 | 内装 | 敷金 | 入居日 | ||
|---|---|---|---|---|---|---|---|---|
| 2F | 45.4坪(150.1㎡) | 要問合せ | - | セットアップオフィス | 0円 | 相談 | 詳細を見る |
オフィスビル外観
































Mayapada Shiodome Plaza
新橋駅徒歩8分の東新橋2丁目に位置する地上11階建てオフィスビル。エレベーター1基を完備。約48坪のフロアは中規模オフィスに適した広さ。汐留エリアに近い好立地です。
| 階数 | 面積 | 賃料総額 | 坪単価 | 内装 | 敷金 | 入居日 | ||
|---|---|---|---|---|---|---|---|---|
| 9F | 48.3坪(159.5㎡) | 要問合せ | - | 事務所仕様 | 0円 | 相談 | 詳細を見る | |
| 10F | 48.3坪(159.5㎡) | 要問合せ | - | 事務所仕様 | 0円 | 相談 | 詳細を見る |
オフィスビル外観




千葉ウエストビル
| 階数 | 面積 | 賃料総額 | 坪単価 | 内装 | 敷金 | 入居日 | ||
|---|---|---|---|---|---|---|---|---|
| 9F | 22.8坪(75.3㎡) | 要問合せ | - | 事務所仕様 | 0円 | 2026-08-01T00:00:00.000Z | 詳細を見る |
オフィスビル外観



















こゆるぎビル
銀座駅から徒歩3分、新橋駅も徒歩6分の銀座6丁目に立地。2025年竣工のS造(一部RC造)制振構造を採用した地上10階・地下2階の新築ビルです。NTTファシリティーズが設計・監理を手がけ、高効率機器やLED照明など省エネ設備を導入。天井高3000mm、EV4基、敷金0円という好条件。銀座中央通りや外堀通りへのアクセスも良く、飲食店やコンビニも充実しています。ブランド力のある立地を求める企業に適した物件。
| 階数 | 面積 | 賃料総額 | 坪単価 | 内装 | 敷金 | 入居日 | ||
|---|---|---|---|---|---|---|---|---|
| 7F | 63.8坪(210.9㎡) | 要問合せ | - | 事務所仕様 | 0円 | 相談 | 詳細を見る | |
| 10F | 63.8坪(210.9㎡) | 要問合せ | - | 事務所仕様 | 0円 | 相談 | 詳細を見る |
オフィスビル外観




















西新橋小川ビル
新橋駅駅徒歩5分、虎ノ門駅駅徒歩5分に位置するの地上6階建てオフィスビル。エレベーター1基を完備。約19.43坪のフロアは少人数から中規模オフィスに対応可能。
| 階数 | 面積 | 賃料総額 | 坪単価 | 内装 | 敷金 | 入居日 | ||
|---|---|---|---|---|---|---|---|---|
| 2F | 19.4坪(64.2㎡) | 要問合せ | - | 事務所仕様 | 0円 | 相談 | 詳細を見る |
オフィスビル外観







WORK VILLA YAESU
宝町駅徒歩3分、東京駅徒歩8分の京橋1丁目交差点角地に立地。地上13階・地下2階建てで、2026年5月竣工予定の新築オフィスビルです。基準階約263坪の大型フロアにエレベーター4基、個別空調・男女別トイレを完備。天井高最大3.7mのスケルトン天井や自然換気窓を採用した先進的な設計。1階にはオープンラウンジ、屋上にはテラスも整備。大規模な本社移転を検討する企業に最適な一棟。
| 階数 | 面積 | 賃料総額 | 坪単価 | 内装 | 敷金 | 入居日 | ||
|---|---|---|---|---|---|---|---|---|
| 2F | 253.8坪(838.9㎡) | 要問合せ | - | セットアップオフィス | 6ヶ月 | 2026/05/22 | 詳細を見る | |
| 3階・4階セット | 525.9坪(1738.5㎡) | 要問合せ | - | セットアップオフィス | 6ヶ月 | 2026/05/22 | 詳細を見る | |
| 5F | 263.3坪(869.4㎡) | 13,300,000円 | 50,513円 | セットアップオフィス | 6ヶ月 | 2026-02-01T00:00:00.000Z | 詳細を見る | |
| 7階・8階セット | 525.9坪(1738.5㎡) | 要問合せ | - | セットアップオフィス | 6ヶ月 | 2026/05/22 | 詳細を見る | |
| 11F | 263.3坪(866.1㎡) | 要問合せ | - | セットアップオフィス | 6ヶ月 | 2026/05/22 | 詳細を見る | |
| 12F | 263.3坪(866.1㎡) | 要問合せ | - | セットアップオフィス | 6ヶ月 | 2026/05/22 | 詳細を見る | |
| 2026-03-04T00:00:00.000Z | 525.9坪(1738.8㎡) | 27,800,000円 | 52,854円 | セットアップオフィス | 6ヶ月 | 2026-05-21T00:00:00.000Z | 詳細を見る |
オフィスビル外観




T-PLUS八丁堀
東京メトロ日比谷線・八丁堀駅から徒歩5分。東京駅も徒歩圏の好立地。2026年竣工予定のS造8階建て新築ビルで、EV2基・新耐震基準適合。基準階約89坪の大型フロアにセットアップオフィス区画あり。什器付きで入居後すぐに業務開始が可能です。1階に専用会議室、屋上にオープンテラスを設置。OAフロア・個別空調・男女別トイレ完備。スピード重視の成長企業に最適な即戦力オフィスです。
| 階数 | 面積 | 賃料総額 | 坪単価 | 内装 | 敷金 | 入居日 | ||
|---|---|---|---|---|---|---|---|---|
| 3F | 39.2坪(129.5㎡) | 要問合せ | - | セットアップオフィス | 12ヶ月 | 2026-04-01T00:00:00.000Z | 詳細を見る | |
| 3F | 43.5坪(143.7㎡) | 要問合せ | - | セットアップオフィス | 12ヶ月 | 2026-04-01T00:00:00.000Z | 詳細を見る | |
| 4F | 89.8坪(296.7㎡) | 要問合せ | - | セットアップオフィス | 12ヶ月 | 2026-04-01T00:00:00.000Z | 詳細を見る | |
| 6F | 89.8坪(296.7㎡) | 要問合せ | - | セットアップオフィス | 12ヶ月 | 2026-04-01T00:00:00.000Z | 詳細を見る | |
| 7F | 89.8坪(296.7㎡) | 要問合せ | - | セットアップオフィス | 12ヶ月 | 2026-04-01T00:00:00.000Z | 詳細を見る | |
| 8F | 89.8坪(296.7㎡) | 要問合せ | - | セットアップオフィス | 12ヶ月 | 2026-04-01T00:00:00.000Z | 詳細を見る |
オフィスビル外観



























合人社江戸日本橋ビル
日本橋駅徒歩2分、東京駅徒歩9分の日本橋2丁目エリア。2025年竣工の地上13階建て新築ビルで、天井高3,265mmの開放的な空間が魅力。EV2基・個別空調・男女別トイレを完備。各フロアにテラスを設け、1階カフェや屋上テラスなど交流スペースも充実。伝統素材と現代デザインが融合した意匠。感度の高い企業に最適な新世代オフィス。
| 階数 | 面積 | 賃料総額 | 坪単価 | 内装 | 敷金 | 入居日 | ||
|---|---|---|---|---|---|---|---|---|
| 3F | 4.8坪(16.0㎡) | 要問合せ | - | セットアップオフィス | 4ヶ月 | 相談 | 詳細を見る | |
| 4F | 64.7坪(213.9㎡) | 要問合せ | - | セットアップオフィス | 4ヶ月 | 相談 | 詳細を見る | |
| 5F | 64.7坪(213.9㎡) | 要問合せ | - | セットアップオフィス | 4ヶ月 | 相談 | 詳細を見る | |
| 11F | 64.7坪(213.9㎡) | 要問合せ | - | セットアップオフィス | 4ヶ月 | 相談 | 詳細を見る |
オフィスビル外観













CIRCLES+新橋(サークルズプラス新橋)
御成門駅駅徒歩3分、新橋駅駅徒歩10分に位置するの地上13階建てオフィスビル。エレベーター3基を完備。基準階約99.99坪の大型フロアが特徴。
| 階数 | 面積 | 賃料総額 | 坪単価 | 内装 | 敷金 | 入居日 | ||
|---|---|---|---|---|---|---|---|---|
| 2F | 100.0坪(330.6㎡) | 要問合せ | - | セットアップオフィス | 3ヶ月 | 相談 | 詳細を見る | |
| 3F | 100.0坪(330.6㎡) | 要問合せ | - | セットアップオフィス | 3ヶ月 | 相談 | 詳細を見る | |
| 9F | 100.0坪(330.6㎡) | 要問合せ | - | セットアップオフィス | 3ヶ月 | 相談 | 詳細を見る | |
| 10F | 100.0坪(330.6㎡) | 要問合せ | - | セットアップオフィス | 3ヶ月 | 相談 | 詳細を見る |
オフィスビル外観



BIZCORE日本橋
日本橋駅徒歩4分、東京駅徒歩7分の日本橋3丁目に立地。2026年1月竣工の最新オフィスビルです。地上10階建てでエレベーター2基を完備。ZEB Ready認証取得の高い環境性能が特長。個別空調・男女別トイレ・OAフロアを備えたハイグレード仕様。日鉄興和不動産が手掛けるBIZCOREシリーズの一棟。先進的なオフィス環境を求める企業に最適です。
| 階数 | 面積 | 賃料総額 | 坪単価 | 内装 | 敷金 | 入居日 | ||
|---|---|---|---|---|---|---|---|---|
| 2F | 49.1坪(162.5㎡) | 要問合せ | - | セットアップオフィス | 12ヶ月 | 相談 | 詳細を見る | |
| 7F | 75.6坪(250.0㎡) | 要問合せ | - | セットアップオフィス | 12ヶ月 | 相談 | 詳細を見る | |
| 8F | 75.6坪(250.0㎡) | 要問合せ | - | セットアップオフィス | 12ヶ月 | 相談 | 詳細を見る |
オフィスビル外観







ACN虎ノ門イースト
新橋駅徒歩13分、虎ノ門駅徒歩9分の西新橋3丁目に位置する地上9階建てオフィスビル。エレベーター1基を完備。約12坪のコンパクトな区画は少人数事務所に最適。ACNシリーズの物件です。
| 階数 | 面積 | 賃料総額 | 坪単価 | 内装 | 敷金 | 入居日 | ||
|---|---|---|---|---|---|---|---|---|
| 9F | 11.8坪(39.0㎡) | 要問合せ | - | セットアップオフィス | 8ヶ月 | 相談 | 詳細を見る |
オフィスビル外観





































































BIZCORE西新橋
御成門駅駅徒歩5分、神谷町駅駅徒歩6分に位置するの地上13階建てオフィスビル。エレベーター2基を完備。基準階約110.59坪の大型フロアが特徴。
| 階数 | 面積 | 賃料総額 | 坪単価 | 内装 | 敷金 | 入居日 | ||
|---|---|---|---|---|---|---|---|---|
| 2F | 110.6坪(365.6㎡) | 要問合せ | - | セットアップオフィス | 相談 | 相談 | 詳細を見る | |
| 3F | 110.6坪(365.6㎡) | 要問合せ | - | セットアップオフィス | 相談 | 相談 | 詳細を見る | |
| 7F | 110.6坪(365.6㎡) | 要問合せ | - | セットアップオフィス | 相談 | 相談 | 詳細を見る | |
| 8F | 110.6坪(365.6㎡) | 要問合せ | - | セットアップオフィス | 相談 | 相談 | 詳細を見る | |
| 9F | 110.6坪(365.6㎡) | 要問合せ | - | セットアップオフィス | 相談 | 相談 | 詳細を見る | |
| 10F | 110.6坪(365.6㎡) | 要問合せ | - | セットアップオフィス | 相談 | 相談 | 詳細を見る |
オフィスビル外観































owns新橋
新橋駅駅徒歩2分、虎ノ門駅駅徒歩7分に位置するの地上14階建てオフィスビル。エレベーター1基を完備。約40.84坪のフロアは中規模オフィスに適した広さ。
| 階数 | 面積 | 賃料総額 | 坪単価 | 内装 | 敷金 | 入居日 | ||
|---|---|---|---|---|---|---|---|---|
| 3F | 40.8坪(135.0㎡) | 1,042,080円 | 26,000円 | セットアップオフィス | 相談 | 相談 | 詳細を見る | |
| 7F | 40.8坪(135.0㎡) | 要問合せ | - | セットアップオフィス | 相談 | 相談 | 詳細を見る | |
| 8F | 40.8坪(135.0㎡) | 1,082,160円 | 27,000円 | セットアップオフィス | 相談 | 相談 | 詳細を見る | |
| 12F | 40.8坪(135.0㎡) | 1,082,160円 | 27,000円 | セットアップオフィス | 相談 | 相談 | 詳細を見る |
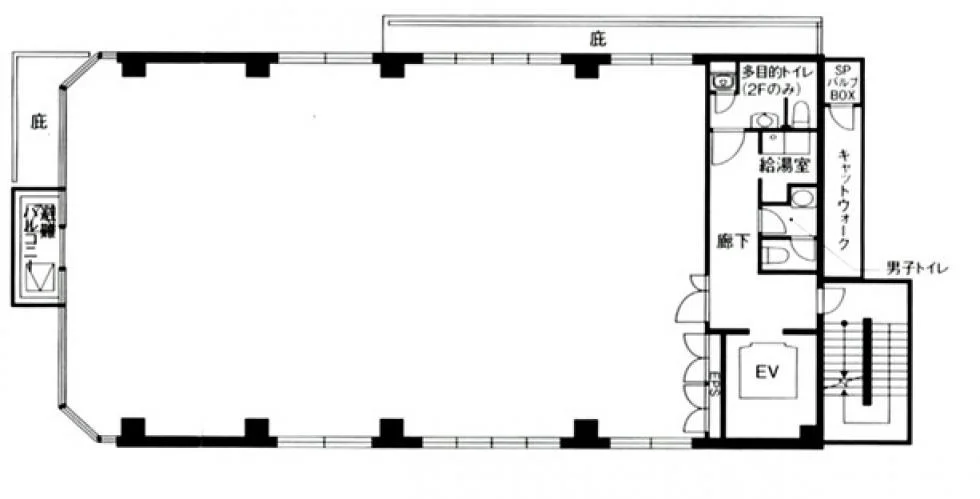
フロア図面



ASOOM新橋ビル
新橋駅駅徒歩7分、汐留駅駅徒歩7分に位置するの地上14階 / 地下1階建てオフィスビル。エレベーター2基を完備。約45.4坪のフロアは中規模オフィスに適した広さ。
| 階数 | 面積 | 賃料総額 | 坪単価 | 内装 | 敷金 | 入居日 | ||
|---|---|---|---|---|---|---|---|---|
| 5F | 45.4坪(150.1㎡) | 要問合せ | - | セットアップオフィス | 相談 | 相談 | 詳細を見る | |
| 6F | 45.4坪(150.1㎡) | 要問合せ | - | セットアップオフィス | 相談 | 相談 | 詳細を見る | |
| 7F | 45.4坪(150.1㎡) | 要問合せ | - | セットアップオフィス | 相談 | 相談 | 詳細を見る | |
| 9F | 43.0坪(142.3㎡) | 要問合せ | - | セットアップオフィス | 相談 | 相談 | 詳細を見る |
オフィスビル外観








PMO新橋
御成門駅駅徒歩3分、大門駅駅徒歩8分に位置するの地上9階建てオフィスビル。エレベーター2基を完備。約75.16坪のフロアは中規模オフィスに適した広さ。
| 階数 | 面積 | 賃料総額 | 坪単価 | 内装 | 敷金 | 入居日 | ||
|---|---|---|---|---|---|---|---|---|
| 7F | 75.2坪(248.5㎡) | 要問合せ | - | セットアップオフィス | 相談 | 相談 | 詳細を見る |
オフィスビル外観






























































CIRCLES+新橋
汐留駅徒歩7分、新橋駅徒歩8分の新橋6丁目に位置する地上13階建てオフィスビル。OAフロア・個別空調・男女別トイレ・エレベーター3基を完備。基準階約100坪のフロアは中規模オフィスに最適。三菱地所CIRCLESシリーズの物件です。
| 階数 | 面積 | 賃料総額 | 坪単価 | 内装 | 敷金 | 入居日 | ||
|---|---|---|---|---|---|---|---|---|
| 3F | 100.0坪(330.5㎡) | 要問合せ | - | セットアップオフィス | 6ヶ月 | 即日 | 詳細を見る |
ビルエントランス




































ATRIUM東新橋
新橋駅駅徒歩3分、築地市場駅駅徒歩8分に位置するの地上12階建てオフィスビル。エレベーター1基を完備。約34.5坪のフロアは少人数から中規模オフィスに対応可能。
| 階数 | 面積 | 賃料総額 | 坪単価 | 内装 | 敷金 | 入居日 | ||
|---|---|---|---|---|---|---|---|---|
| 11F | 34.5坪(114.0㎡) | 要問合せ | - | セットアップオフィス | 相談 | 相談 | 詳細を見る |
オフィスビル外観





























BUREX FIVE
新橋駅徒歩4分・内幸町駅徒歩2分、HULIC & New SHINBASHI内に入居するサービスオフィス型のセットアップオフィス。「五感を潤す都会のオアシス」をコンセプトに、鳥のさえずりやアロマが広がる癒しの空間を実現しています。5.31坪の小規模な個室から利用可能で、バイリンガル受付・来客対応・荷物預かりサービスも充実。士業やコンサルタントなど、お客様との接点が多い方のオフィス移転先として最適な、敷金0円の内装付きオフィスです。
| 階数 | 面積 | 賃料総額 | 坪単価 | 内装 | 敷金 | 入居日 | ||
|---|---|---|---|---|---|---|---|---|
| 904F | 5.3坪(17.6㎡) | 要問合せ | - | セットアップオフィス | 1ヶ月 | 相談 | 詳細を見る |
オフィスビル外観

日土地千葉ビル
| 階数 | 面積 | 賃料総額 | 坪単価 | 内装 | 敷金 | 入居日 | ||
|---|---|---|---|---|---|---|---|---|
| 1F | 59.1坪(195.5㎡) | 要問合せ | - | スケルトン | 12ヶ月 | 即日 | 詳細を見る |
297物件中 1〜20物件を表示