新橋駅の敷金減額オフィス一覧
サイトに掲載できない非公開物件が多数ございます。
セットアップ・居抜き・敷金0円など、サイト未掲載の物件もご提案可能です。
検索結果 12 区画 募集中/登録374,683区画
敷金
10ヶ月0円
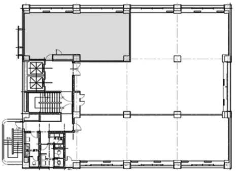
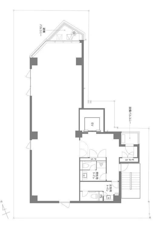
フロア図面敷金
10ヶ月0円
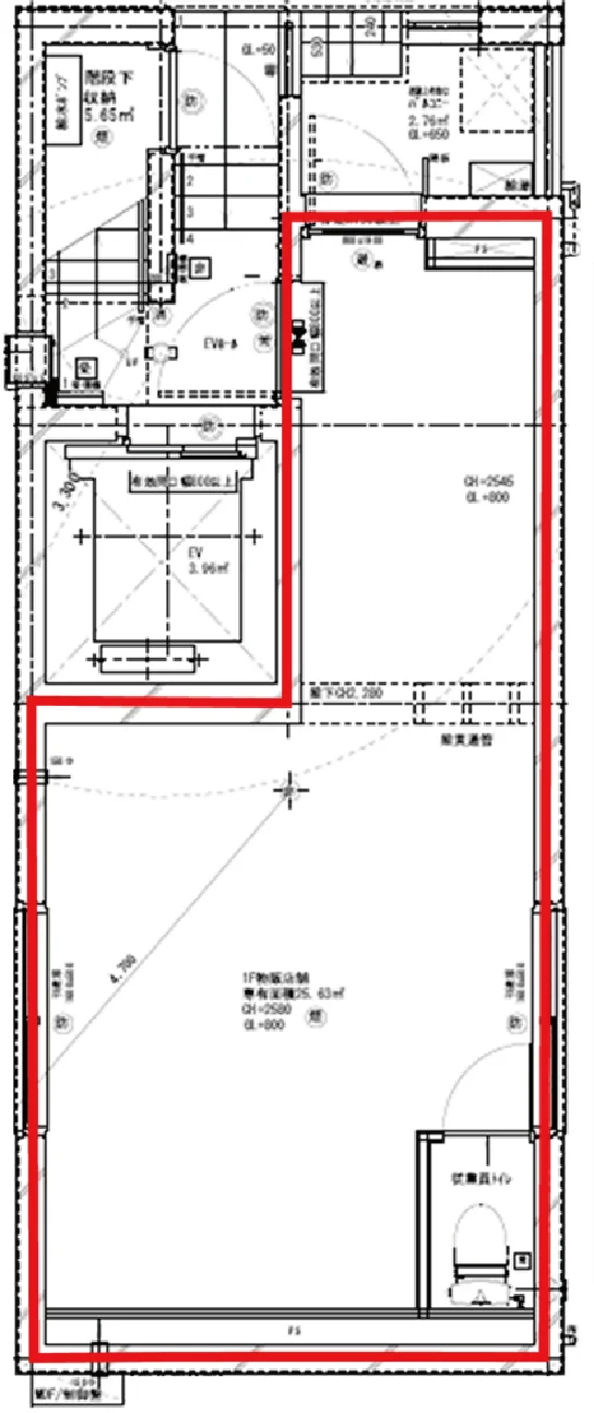
ASOOM新橋ビル
セットアップ有
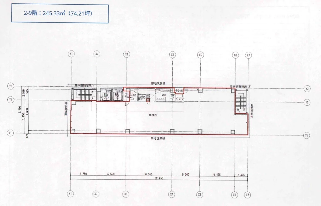
住所東京都港区新橋5-23-5エリア新橋・虎ノ門・神谷町最寄り駅新橋駅 徒歩7分、汐留駅 徒歩7分空き区画1区画
オフィス物件詳細を見る →旭化成ホームズが手がける「Office as a Home」コンセプトの次世代型セットアップオフィス。御成門駅徒歩4分の14階建て新築ビルで、共用ラウンジ・屋上テラス・ABW対応区画を備えています。BELS四つ星、CASBEE Aランクを取得した高い環境・健康性能が特長。敷金0円で入居可能なため、オフィス移転の初期費用を抑えながら、居心地の良さと生産性を両立した内装付きオフィスで働けます。
| 階数 | 面積 | 賃料総額 | 坪単価 | 内装 | 敷金 | 入居日 | ||
|---|---|---|---|---|---|---|---|---|
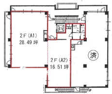
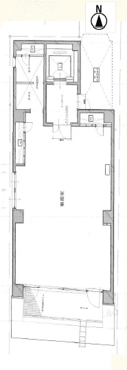
| 2F | 45.4坪(150.1㎡) | 要問合せ | - | セットアップオフィス | 0円 | 相談 | 詳細を見る |
敷金
12ヶ月0円
オフィスビル外観1 / 9









敷金
12ヶ月0円
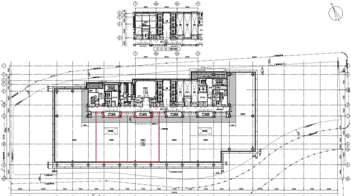
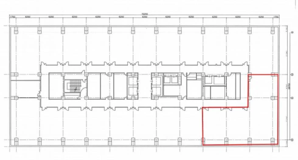
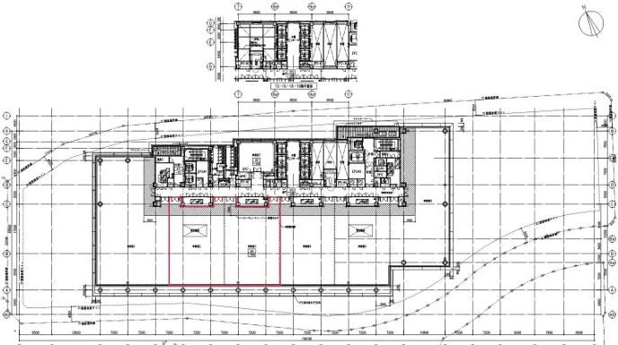
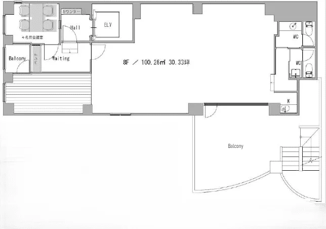
TORANOGATE(トラノゲート)
住所東京都港区虎ノ門1-4エリア新橋・虎ノ門・神谷町最寄り駅虎ノ門駅 徒歩1分、霞ケ関駅 徒歩4分空き区画9区画
オフィス物件詳細を見る →








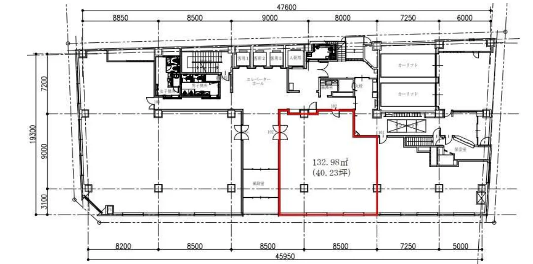
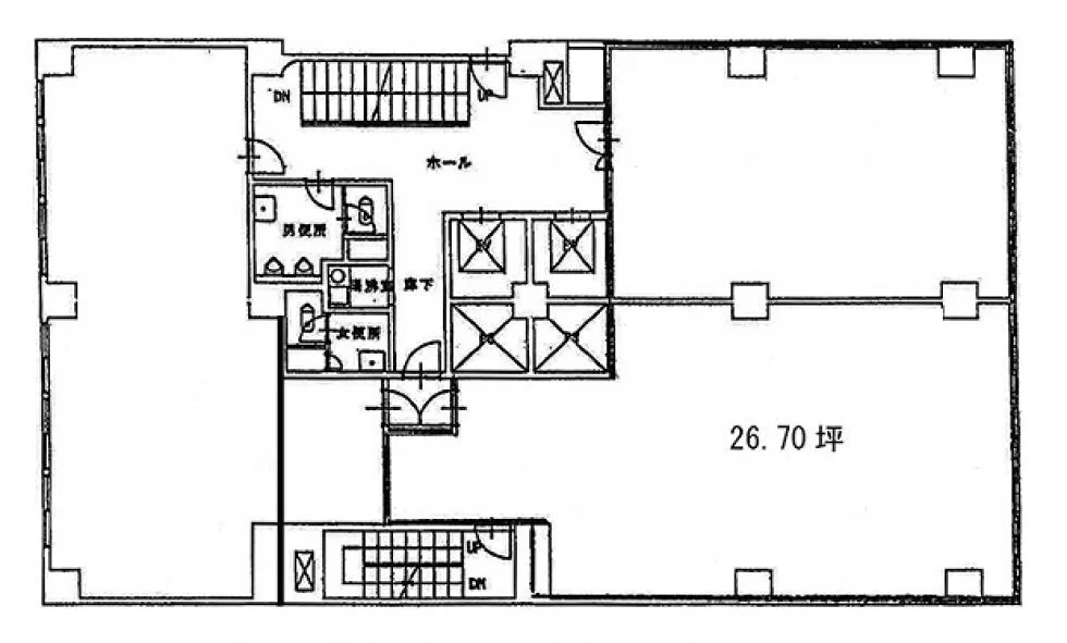
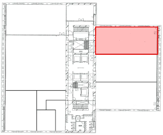
虎ノ門駅駅徒歩1分、霞ケ関駅駅徒歩4分に位置するの地上29階 / 地下4階建てオフィスビル。エレベーター21基を完備。基準階約896.12坪の超大型フロアが特徴。
| 階数 | 面積 | 賃料総額 | 坪単価 | 内装 | 敷金 | 入居日 | ||
|---|---|---|---|---|---|---|---|---|
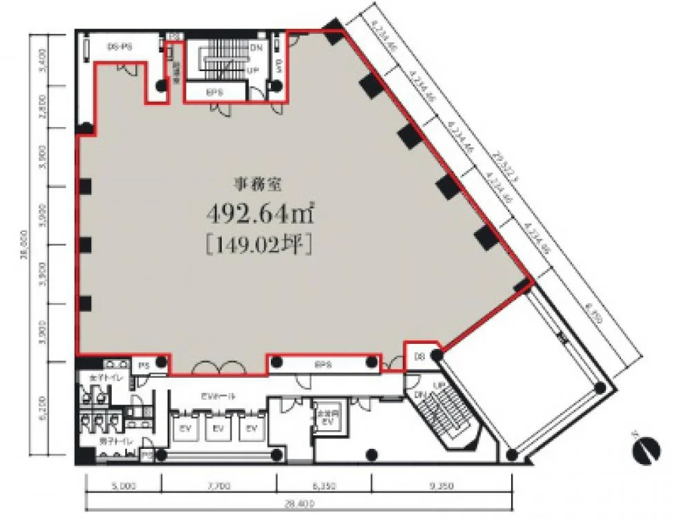
| 9F ① | 416.7坪(1377.4㎡) | 要問合せ | - | 事務所仕様 | 0円 | 2027/11/01 | 詳細を見る | |
| 10F | 204.7坪(676.6㎡) | 要問合せ | - | 事務所仕様 | 0円 | 2027/11/01 | 詳細を見る | |
| 22F | 854.6坪(2825.0㎡) | 要問合せ | - | 事務所仕様 | 0円 | 2027/11/01 | 詳細を見る | |
| 23F | 854.6坪(2825.0㎡) | 要問合せ | - | 事務所仕様 | 0円 | 2027/11/01 | 詳細を見る | |
| 24F | 854.6坪(2825.0㎡) | 要問合せ | - | 事務所仕様 | 0円 | 2027/11/01 | 詳細を見る | |
| 25F | 896.1坪(2962.4㎡) | 要問合せ | - | 事務所仕様 | 0円 | 2027/11/01 | 詳細を見る | |
| 26F | 894.2坪(2956.0㎡) | 要問合せ | - | 事務所仕様 | 0円 | 2027/11/01 | 詳細を見る | |
| 27F | 896.1坪(2962.4㎡) | 要問合せ | - | 事務所仕様 | 0円 | 2027/11/01 | 詳細を見る | |
| 28F | 894.2坪(2956.0㎡) | 要問合せ | - | 事務所仕様 | 0円 | 2027/11/01 | 詳細を見る |
敷金
12ヶ月4ヶ月
オフィスビル外観1 / 2


敷金
12ヶ月4ヶ月
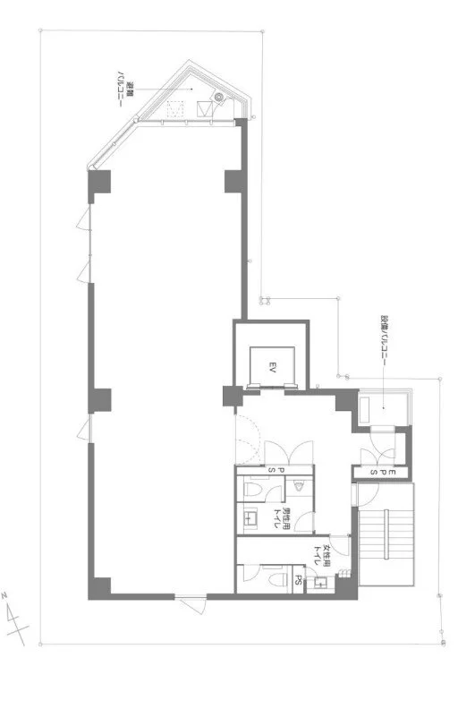
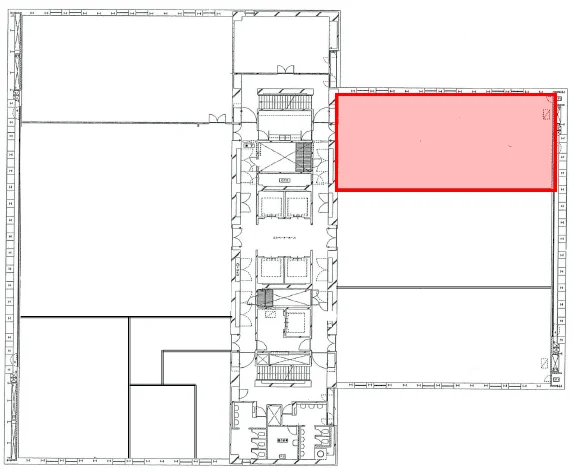
REVZO新橋
セットアップ有
住所東京都港区西新橋1-16-7エリア新橋・虎ノ門・神谷町最寄り駅内幸町駅 徒歩2分、新橋駅 徒歩5分空き区画2区画
オフィス物件詳細を見る →

中央日本土地建物グループが手がける木造・木質化オフィスブランド「REVZO」の第1弾。柱・天井・外壁・内壁に多摩産材を使用し、木の温もりを感じながら働ける次世代型セットアップオフィスです。内幸町駅徒歩2分・新橋駅徒歩5分の好アクセスに加え、各階バルコニーと屋上テラスを備えた開放的な設計が特長。敷金0円で入居可能なため、オフィス移転の初期負担を抑えつつ、環境に配慮した内装付きオフィスで新しい働き方を始められます。
| 階数 | 面積 | 賃料総額 | 坪単価 | 内装 | 敷金 | 入居日 | ||
|---|---|---|---|---|---|---|---|---|
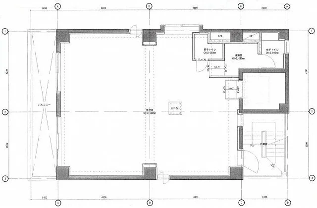
| 9F | 67.6坪(223.6㎡) | 要問合せ | - | セットアップオフィス | 4ヶ月 | 2026/09/01 | 詳細を見る | |
| 10F | 67.6坪(223.6㎡) | 要問合せ | - | セットアップオフィス | 4ヶ月 | 2026/09/01 | 詳細を見る |
3物件中 1〜3物件を表示