



































オフィスビル外観1 / 37
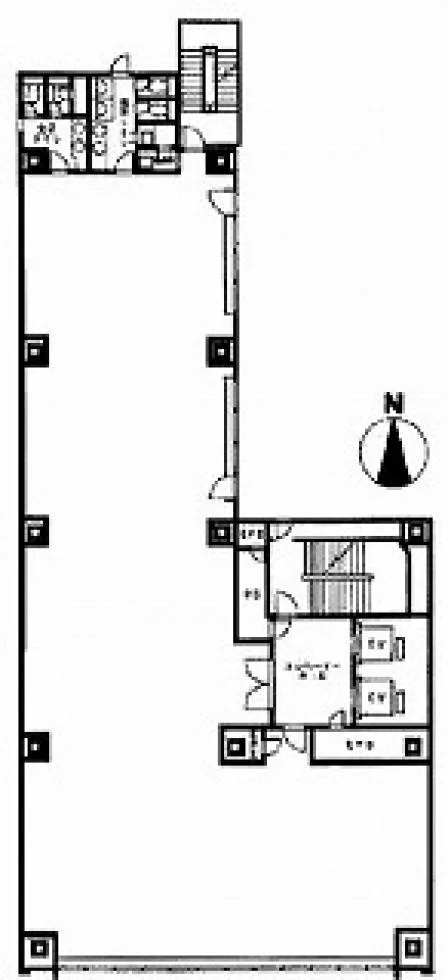
区画詳細情報
| 階数 | 8 | 内装 | 事務所仕様 |
|---|---|---|---|
| 面積(坪) | 103.87坪 | 面積(㎡) | 343.37㎡ |
| 賃料 | 要問い合わせ | 坪単価 | 要問い合わせ |
| 敷金/保証金 | 12ヶ月0円 | 礼金 | - |
| 入居可能日 | 2026/06/01 | 募集状況 | 空室 |
| 収容人数 | - | 会議室 | - |
| テレブース | - | 機械警備 | - |
| 天井高 | 2600 | 床仕様 | OAフロア |
| トイレ | 共用男女別 | 空調 | 個別 |
物件情報
| 物件名 | Daiwa神保町3丁目ビル | ||
|---|---|---|---|
| 所在地 | 東京都千代田区神田神保町3-2-3 | ||
| 最寄駅 | 神保町駅 徒歩2分 / 九段下駅 徒歩3分 / 水道橋駅 徒歩7分 | ||
| 構造 | 鉄骨造 | 規模 | 地上9階 |
| 竣工 | 2010 | リニューアル | - |