募集区画
最終更新日:2026年4月14日
| 階数 | 内装 | 面積 | 賃料 | 共益費 | 敷金 | 入居可能日 | ||
|---|---|---|---|---|---|---|---|---|
| 詳細を見る | 10階 | 内装事務所仕様 | 24.76坪 (81.84㎡) | 賃料要問合せ | 共益費相談 | 敷金10ヶ月 | 入居可能日相談 |
※敷金減額サービスをご利用時はサービス利用料として減額分の5%が年間で別途発生します。
物件紹介
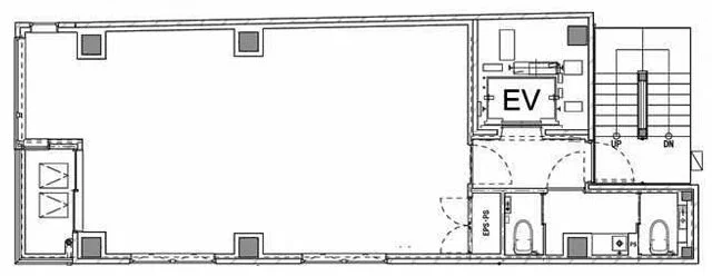
市ケ谷駅徒歩4分、半蔵門駅徒歩8分の九段南3丁目に位置する地上10階建てオフィスビル。個別空調・男女別トイレ・エレベーター1基を完備。約25坪のフロアは少人数オフィスに適した広さ。JR・有楽町線・南北線・都営新宿線が使える市ヶ谷エリアです。
物件所在地
エリア紹介
飯田橋・九段下・神保町エリアは、千代田区に位置する文教地区であり、同時にビジネスの中心地としての顔も持つエリアです。JR中央総武線、東京メトロ東西線、半蔵門線、都営新宿線など、複数の路線が乗り入れる交通の要衝であり、都内主要エリアへのアクセスは非常に便利です。オフィス移転をお考えの企業にとって、この優れた交通利便性は大きな魅力となるでしょう。 神保町は世界最大級の古書店街として名高く、出版関連企業が数多く集積しています。近年では、スタートアップ企業向けの小規模な賃貸オフィスや、すぐにビジネスを開始できるセットアップオフィスも豊富に展開されており、多様なニーズに対応可能です。周辺エリアと比較して、賃料水準はやや高めですが、その分、企業イメージの向上や優秀な人材の確保に繋がるというメリットも期待できます。 また、飯田橋・九段下エリアには、北の丸公園や靖国神社といった緑豊かなスポットが点在しており、都心でありながらも落ち着いた環境でビジネスに取り組める点が魅力です。これらの公園は、ランチタイムのリフレッシュや、アイデア出しの場としても活用でき、創造性を刺激する環境を提供します。古書店街の文化的な雰囲気と、緑豊かな自然環境が調和したこのエリアで、ぜひ貴社の貸事務所を見つけてください。オフィス環境を重視する企業にとって、飯田橋・九段下・神保町エリアは最適な選択肢となるでしょう。










