




























































オフィスビル外観1 / 62
区画詳細情報
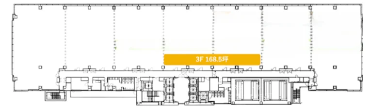
| 階数 | 3 | 内装 | 事務所仕様 |
|---|---|---|---|
| 面積(坪) | 168.50坪 | 面積(㎡) | 557.03㎡ |
| 賃料 | 要問い合わせ | 坪単価 | 要問い合わせ |
| 敷金/保証金 | 相談 | 礼金 | 0 |
| 入居可能日 | - | 募集状況 | 空室 |
| 収容人数 | - | 会議室 | - |
| テレブース | - | 機械警備 | - |
| 天井高 | 2800 | 床仕様 | OAフロア |
| トイレ | - | 空調 | 個別 |
物件情報
| 物件名 | 晴海センタービル | ||
|---|---|---|---|
| 所在地 | 東京都中央区晴海2-5-24 | ||
| 最寄駅 | 勝どき駅 徒歩7分 / 新豊洲駅 徒歩10分 / 月島駅 徒歩11分 | ||
| 構造 | - | 規模 | 地上10階 |
| 竣工 | 2006 | リニューアル | - |
