STATION SEARCH沿線・駅からオフィスを検索する
築地市場駅の賃貸オフィス・貸事務所一覧
サイトに掲載できない非公開物件が多数ございます。
セットアップ・居抜き・敷金0円など、サイト未掲載の物件もご提案可能です。
検索結果 57 区画 募集中/登録374,683区画
敷金6ヶ月
オフィスビル外観1 / 14














敷金6ヶ月
THE TERRACE TSUKIJI
セットアップ有
住所東京都中央区築地7-2ー1エリア新富町・築地最寄り駅新富町駅 徒歩5分、築地市場駅 徒歩8分空き区画6区画
オフィス物件詳細を見る →













東京メトロ日比谷線・築地駅から徒歩4分。新富町駅も徒歩圏です。2008年竣工・2019年リノベーション済みの地上7階建て。天井高2,960mmの開放的な執務空間が特徴で、EV2基・新耐震基準適合。顔認証入退館やAlexa連携など最新IoTシステムを導入しています。築地本願寺や場外市場が近く、飲食環境は抜群。先進的なオフィス環境を求めるIT・テック系企業におすすめの物件です。
| 階数 | 面積 | 賃料総額 | 坪単価 | 内装 | 敷金 | 入居日 | ||
|---|---|---|---|---|---|---|---|---|
| 1F | 25.9坪(85.6㎡) | 要問合せ | - | セットアップオフィス | 6ヶ月 | 即入居 | 詳細を見る | |
| 1F | 27.9坪(92.4㎡) | 要問合せ | - | 居抜き | 6ヶ月 | 相談 | 詳細を見る | |
| 2F | 55.4坪(183.2㎡) | 要問合せ | - | セットアップオフィス | 6ヶ月 | 相談 | 詳細を見る | |
| 2F | 49.7坪(164.4㎡) | 要問合せ | - | セットアップオフィス | 6ヶ月 | 相談 | 詳細を見る | |
| 4F EAST | 49.7坪(164.4㎡) | 要問合せ | - | セットアップオフィス | 6ヶ月 | 相談 | 詳細を見る | |
| 5F | 55.4坪(183.2㎡) | 要問合せ | - | セットアップオフィス | 6ヶ月 | 相談 | 詳細を見る |
敷金6ヶ月
オフィスビル外観1 / 9









敷金6ヶ月
築地センタービル
セットアップ有
住所東京都中央区築地6-25-10エリア-最寄り駅築地 徒歩5分、築地市場 徒歩7分空き区画3区画
オフィス物件詳細を見る →








| 階数 | 面積 | 賃料総額 | 坪単価 | 内装 | 敷金 | 入居日 | ||
|---|---|---|---|---|---|---|---|---|
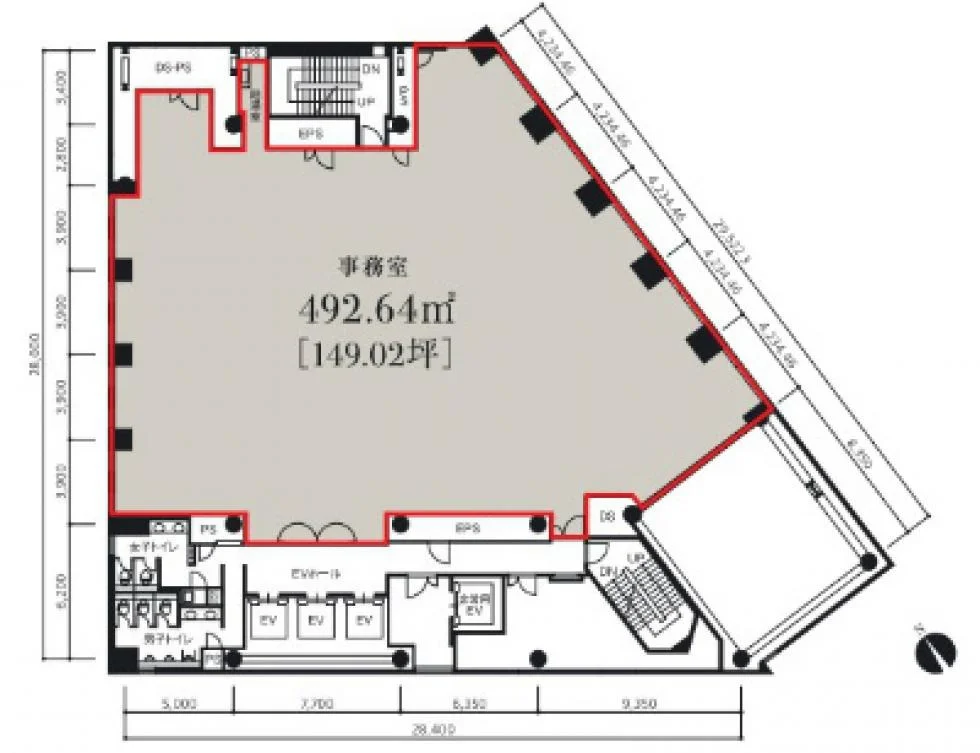
| 1F | 150.4坪(497.2㎡) | 2,556,460円 | 17,000円 | 事務所仕様 | 6ヶ月 | 相談 | 詳細を見る | |
| 9階~11階 | 215.1坪(711.0㎡) | 要問合せ | - | 事務所仕様 | 6ヶ月 | 相談 | 詳細を見る | |
| 10F | 71.0坪(234.6㎡) | 1,278,230円 | 17,000円 | セットアップオフィス | 6ヶ月 | 相談 | 詳細を見る |
敷金12ヶ月
オフィスビル外観1 / 5





敷金12ヶ月
PMO銀座Ⅱ
セットアップ有
住所東京都中央区銀座8-17-1エリア銀座最寄り駅築地市場駅 徒歩4分、汐留駅 徒歩5分空き区画1区画
オフィス物件詳細を見る →




| 階数 | 面積 | 賃料総額 | 坪単価 | 内装 | 敷金 | 入居日 | ||
|---|---|---|---|---|---|---|---|---|
| 4F | 75.7坪(250.2㎡) | 要問合せ | - | セットアップオフィス | 12ヶ月 | 相談 | 詳細を見る |
敷金12ヶ月
オフィスビル外観1 / 17

















敷金12ヶ月
野村不動産銀座ビル
住所東京都中央区銀座6-18-2エリア銀座最寄り駅銀座駅 徒歩7分、東銀座駅 徒歩3分空き区画2区画
オフィス物件詳細を見る →
















東銀座駅徒歩3分、銀座駅徒歩7分の銀座6丁目に位置する地上17階・地下5階建ての大型オフィスビル。1982年竣工・2010年リニューアル済みで、基準階約294坪の整形無柱フロアが特徴です。エレベーター7基・OAフロア・個別空調・男女別トイレ・駐車場73台を完備。低層階には新橋演舞場が入る文化的なビルで、オフィス専用エントランスは2層吹き抜けの格調高い意匠。銀座エリアでまとまった面積を確保したい企業に最適です。
| 階数 | 面積 | 賃料総額 | 坪単価 | 内装 | 敷金 | 入居日 | ||
|---|---|---|---|---|---|---|---|---|
| 4F | 32.4坪(106.9㎡) | 要問合せ | - | 事務所仕様 | 12ヶ月 | 2026/04/01 | 詳細を見る | |
| 14F | 271.2坪(896.6㎡) | 要問合せ | - | 事務所仕様 | 12ヶ月 | 2026/04/01 | 詳細を見る |
敷金10ヶ月
オフィスビル外観1 / 10










敷金10ヶ月
銀座KMビル
住所東京都中央区銀座8-14-5エリア銀座最寄り駅東銀座駅 徒歩6分、築地市場駅 徒歩3分空き区画1区画
オフィス物件詳細を見る →









東銀座駅徒歩6分、築地市場駅徒歩3分の銀座8丁目に位置する地上9階・地下1階建てオフィスビル。OAフロア・個別空調・男女別トイレ・エレベーター1基を完備。約49坪のフロアは中規模オフィスに適した広さ。銀座の南端に位置し、築地方面の豊富な飲食環境も魅力です。
| 階数 | 面積 | 賃料総額 | 坪単価 | 内装 | 敷金 | 入居日 | ||
|---|---|---|---|---|---|---|---|---|
| 6F | 48.8坪(161.2㎡) | 要問合せ | - | 事務所仕様 | 10ヶ月 | 相談 | 詳細を見る |
39物件中 1〜20物件を表示