







1 / 8
竹田ビル
| 住所 | 福岡県直方市須崎町3-37 |
|---|---|
| 最寄駅 | 直方駅 徒歩1分 筑豊直方駅 徒歩5分 南直方御殿口駅 徒歩12分 |
| 竣工年 | 1988年年 |
募集区画
最終更新日:2026年4月14日
| 階数 | 内装 | 面積 | 賃料 | 共益費 | 敷金 | 入居可能日 | ||
|---|---|---|---|---|---|---|---|---|
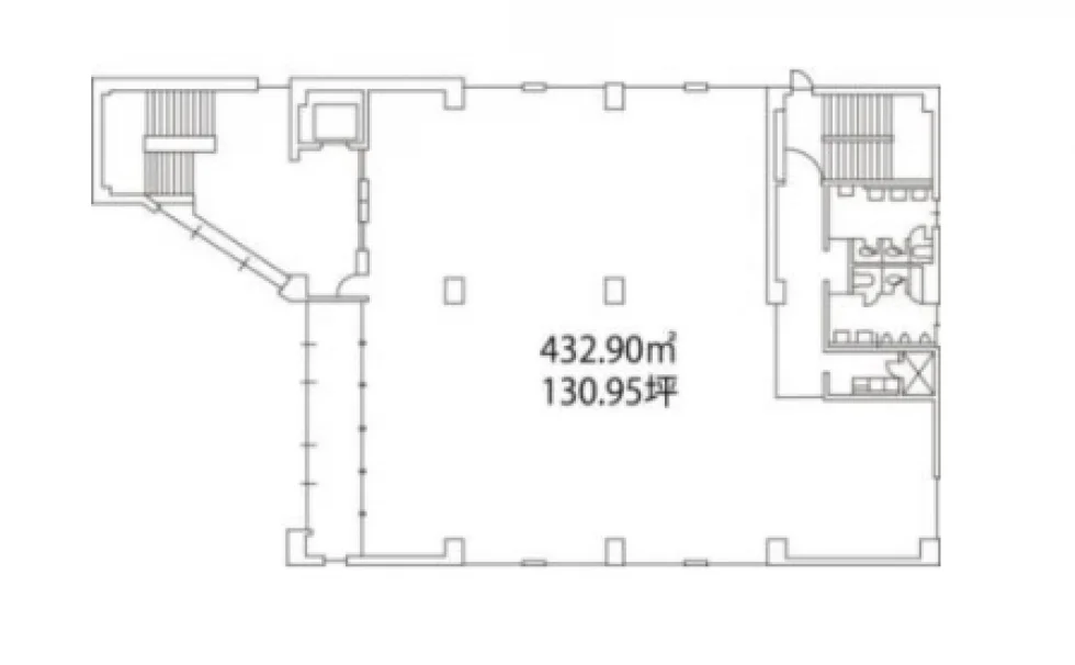
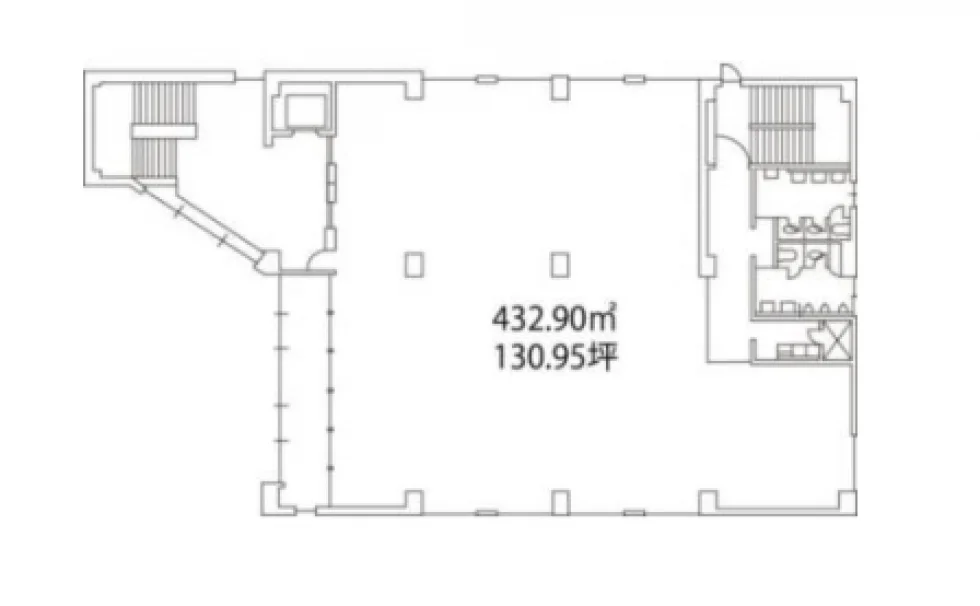
| 詳細を見る | 2階 | 内装事務所仕様 | 131.1坪 (433.39㎡) | 賃料要問合せ | 共益費相談 | 敷金相談 | 入居可能日相談 | |
| 詳細を見る | 3階 | 内装事務所仕様 | 35.39坪 (116.99㎡) | 賃料要問合せ | 共益費相談 | 敷金相談 | 入居可能日相談 | |
| 詳細を見る | 4階 | 内装事務所仕様 | 31.3坪 (103.47㎡) | 賃料要問合せ | 共益費相談 | 敷金相談 | 入居可能日相談 |
※敷金減額サービスをご利用時はサービス利用料として減額分の5%が年間で別途発生します。