








interior1 / 10
区画詳細情報
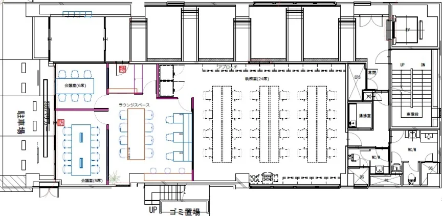
| 階数 | 1 | 内装 | セットアップオフィス |
|---|---|---|---|
| 面積(坪) | 50.93坪 | 面積(㎡) | 168.38㎡ |
| 賃料 | 要問い合わせ | 坪単価 | 要問い合わせ |
| 敷金/保証金 | 6ヶ月 | 礼金 | 0 |
| 入居可能日 | 2026年6月 | 募集状況 | 空室 |
| 収容人数 | - | 会議室 | 2室 |
| テレブース | - | 機械警備 | - |
| 天井高 | - | 床仕様 | OAフロア |
| トイレ | 男女トイレ別 | 空調 | 個別 |
物件情報
| 物件名 | THE PORTAL IWAMOTOCHO | ||
|---|---|---|---|
| 所在地 | 東京都千代田区岩本町2-8-8 | ||
| 最寄駅 | 小伝馬町駅 徒歩4分 / 岩本町駅 徒歩5分 / 秋葉原駅 徒歩7分 | ||
| 構造 | 鉄骨鉄筋コンクリート造 | 規模 | 地上9階 / 地下1階 |
| 竣工 | 1991 | リニューアル | - |