






オフィスビル外観1 / 8
区画詳細情報
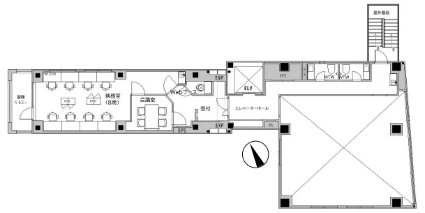
| 階数 | 2 | 内装 | セットアップオフィス |
|---|---|---|---|
| 面積(坪) | 25.39坪 | 面積(㎡) | 83.93㎡ |
| 賃料 | 要問い合わせ | 坪単価 | 要問い合わせ |
| 敷金/保証金 | 4ヶ月 | 礼金 | 0 |
| 入居可能日 | - | 募集状況 | 空室 |
| 収容人数 | - | 会議室 | - |
| テレブース | - | 機械警備 | - |
| 天井高 | - | 床仕様 | OAフロア |
| トイレ | 男女トイレ別 | 空調 | - |
物件情報
| 物件名 | アソルティ小伝馬町Liensビル | ||
|---|---|---|---|
| 所在地 | 東京都中央区日本橋小伝馬町14-10 | ||
| 最寄駅 | 小伝馬町駅 徒歩3分 / 馬喰横山駅 徒歩3分 / 馬喰町駅 徒歩3分 | ||
| 構造 | 鉄骨造 鉄骨造・鉄筋コンクリート造 | 規模 | 地上12階 / 地下1階 |
| 竣工 | 2009 | リニューアル | - |
