




























オフィスビル外観1 / 30
区画詳細情報
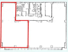
| 階数 | 6 | 内装 | 事務所仕様 |
|---|---|---|---|
| 面積(坪) | 69.28坪 | 面積(㎡) | 229.03㎡ |
| 賃料 | 要問い合わせ | 坪単価 | 要問い合わせ |
| 敷金/保証金 | 相談 | 礼金 | - |
| 入居可能日 | - | 募集状況 | 空室 |
| 収容人数 | - | 会議室 | - |
| テレブース | - | 機械警備 | - |
| 天井高 | 2600 | 床仕様 | - |
| トイレ | - | 空調 | 併用 |
物件情報
| 物件名 | 渋谷第一生命ビル | ||
|---|---|---|---|
| 所在地 | 東京都渋谷区渋谷3-8-12 | ||
| 最寄駅 | 渋谷駅 徒歩4分 / 神泉駅 徒歩11分 / 代官山駅 徒歩11分 | ||
| 構造 | 鉄骨鉄筋コンクリート造 | 規模 | 地上10階 / 地下1階 |
| 竣工 | 1979 | リニューアル | - |
