



exterior1 / 5
区画詳細情報
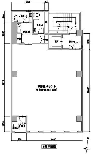
| 階数 | 6 | 内装 | 事務所仕様 |
|---|---|---|---|
| 面積(坪) | 31.20坪 | 面積(㎡) | 103.14㎡ |
| 賃料 | 要問い合わせ | 坪単価 | 要問い合わせ |
| 敷金/保証金 | 4ヶ月 | 礼金 | 0 |
| 入居可能日 | - | 募集状況 | 空室 |
| 収容人数 | - | 会議室 | - |
| テレブース | - | 機械警備 | - |
| 天井高 | - | 床仕様 | - |
| トイレ | - | 空調 | - |
物件情報
| 物件名 | 昭和第一ビル(昭和第1ビル) | ||
|---|---|---|---|
| 所在地 | 東京都墨田区江東橋1-11-8 | ||
| 最寄駅 | 錦糸町駅 徒歩5分 / 菊川駅 徒歩10分 / 住吉駅 徒歩11分 | ||
| 構造 | - | 規模 | 地上7階 |
| 竣工 | - | リニューアル | - |