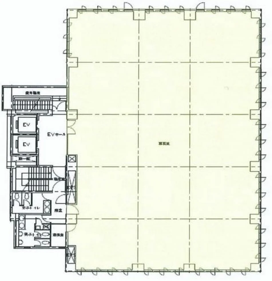
フロア図面1 / 1
区画詳細情報
| 階数 | 1 | 内装 | 事務所仕様 |
|---|---|---|---|
| 面積(坪) | 101.50坪 | 面積(㎡) | 335.54㎡ |
| 賃料 | 要問い合わせ | 坪単価 | 要問い合わせ |
| 敷金/保証金 | 相談 | 礼金 | なし |
| 入居可能日 | - | 募集状況 | 空室 |
| 収容人数 | - | 会議室 | - |
| テレブース | - | 機械警備 | - |
| 天井高 | - | 床仕様 | OAフロア |
| トイレ | 男女トイレ別 | 空調 | - |
物件情報
| 物件名 | 住友不動産飯田橋ビル4号館ビル | ||
|---|---|---|---|
| 所在地 | 東京都文京区後楽2-3-19 | ||
| 最寄駅 | 飯田橋駅 徒歩5分 / 後楽園駅 徒歩10分 | ||
| 構造 | - | 規模 | 地上8階 / 地下1階 |
| 竣工 | 1988年 | リニューアル | - |
同じ物件の他の区画15件
Growth Office
1事務所仕様101.5坪要問合せ
Growth Office
2事務所仕様143.5坪要問合せ

2事務所仕様143.5坪要問合せ
Growth Office
3事務所仕様162.8坪要問合せ

3事務所仕様162.8坪要問合せ

4事務所仕様162.8坪要問合せ
Growth Office
4事務所仕様162.8坪要問合せ
Growth Office
5事務所仕様162.8坪要問合せ

5事務所仕様162.8坪要問合せ
Growth Office
6事務所仕様147.4坪要問合せ
Growth Office
6事務所仕様147.4坪要問合せ

7事務所仕様132.1坪要問合せ
Growth Office
7事務所仕様132.1坪要問合せ
Growth Office
8事務所仕様116.7坪要問合せ

8事務所仕様116.7坪要問合せ