間取り図1 / 1
区画詳細情報
| 階数 | 10 | 内装 | 事務所仕様 |
|---|---|---|---|
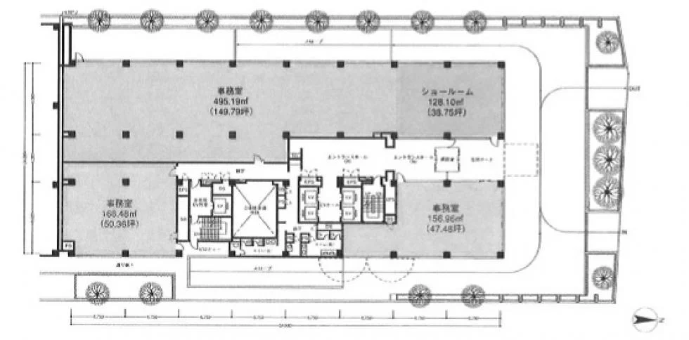
| 面積(坪) | 308.92坪 | 面積(㎡) | 1021.22㎡ |
| 賃料 | 要問い合わせ | 坪単価 | 要問い合わせ |
| 敷金/保証金 | 12ヶ月 | 礼金 | 0 |
| 入居可能日 | - | 募集状況 | 空室 |
| 収容人数 | - | 会議室 | - |
| テレブース | - | 機械警備 | - |
| 天井高 | 2630 | 床仕様 | OAフロア |
| トイレ | 男女トイレ別 | 空調 | - |
物件情報
| 物件名 | 東陽MKビル | ||
|---|---|---|---|
| 所在地 | 東京都江東区東陽7-2-14 | ||
| 最寄駅 | 東陽町駅 徒歩10分 / 木場駅 徒歩4分 / 門前仲町駅 徒歩13分 | ||
| 構造 | 鉄筋コンクリート造 | 規模 | 地上10階 / 地下1階 |
| 竣工 | - | リニューアル | - |












