募集区画
最終更新日:2026年4月17日
| 階数 | 内装 | 面積 | 賃料 | 共益費 | 敷金 | 入居可能日 | ||
|---|---|---|---|---|---|---|---|---|
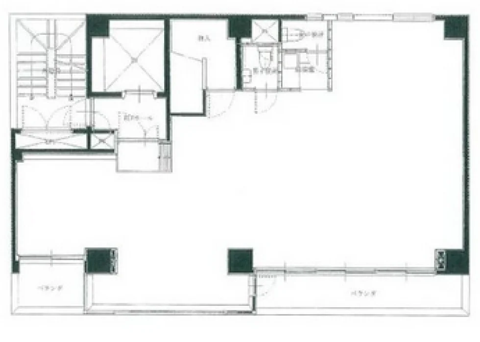
| 詳細を見る | 5階 | 内装事務所仕様 | 28.7坪 (94.87㎡) | 賃料要問合せ | 共益費相談 | 敷金8ヶ月 | 入居可能日2026/04 上旬 | |
| 詳細を見る | 5階 | 内装事務所仕様 | 28.7坪 (94.88㎡) | 賃料要問合せ | 共益費相談 | 敷金8ヶ月 | 入居可能日相談 |
※敷金減額サービスをご利用時はサービス利用料として減額分の5%が年間で別途発生します。
物件所在地
似た条件のオフィス
Growth Office
SKビル
上野駅 徒歩7分
20.9坪
事務所仕様
MARK SQUARE 御徒町
仲御徒町駅 徒歩2分
31.6坪
居抜き
THE GATE UENO
仲御徒町駅 徒歩2分
51.6坪
セットアップオフィス
URE御徒町ビル
上野広小路駅 徒歩3分
39.4坪
セットアップオフィスGrowth Office
スズキビル
御徒町駅 徒歩3分
20.0坪
事務所仕様Growth Office
コーポ今戸
浅草駅 徒歩15分
19.5坪
事務所仕様Growth Office
MITA上野松が谷PARK
入谷駅 徒歩6分
15.1坪
事務所仕様Growth Office
フロンティア北上野ビル
上野駅 徒歩7分
18.9坪
事務所仕様



