




































































オフィスビル外観1 / 70
区画詳細情報
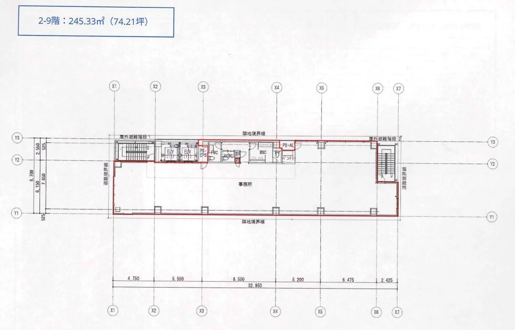
| 階数 | 6 | 内装 | 事務所仕様 |
|---|---|---|---|
| 面積(坪) | 73.71坪 | 面積(㎡) | 243.67㎡ |
| 賃料 | 要問い合わせ | 坪単価 | 要問い合わせ |
| 敷金/保証金 | 5ヶ月 | 礼金 | - |
| 入居可能日 | - | 募集状況 | 空室 |
| 収容人数 | - | 会議室 | - |
| テレブース | - | 機械警備 | - |
| 天井高 | - | 床仕様 | OAフロア |
| トイレ | 共用男女別 | 空調 | 個別 |
物件情報
| 物件名 | VORT浜松町IV | ||
|---|---|---|---|
| 所在地 | 東京都港区浜松町1-27-13 | ||
| 最寄駅 | 大門駅 徒歩1分 / 汐留駅 徒歩9分 / 新橋駅 徒歩11分 | ||
| 構造 | 鉄骨造 | 規模 | 地上10階 |
| 竣工 | 2023 | リニューアル | - |
