敷金
6ヶ月

La Grande Hongo

住所東京都文京区本郷5-23-14
最寄駅本郷三丁目駅 徒歩4

募集区画

最終更新日:2026年4月9日

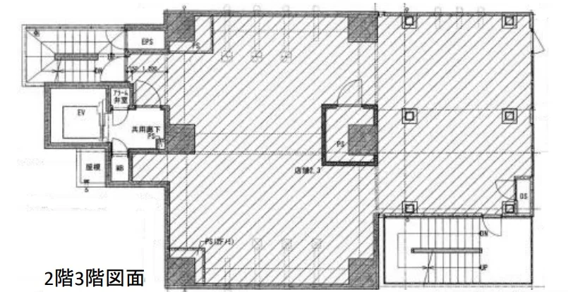
階数内装面積賃料共益費敷金入居可能日
詳細を見る2階内装事務所仕様30.92
(102.21㎡)
賃料要問合せ共益費相談敷金6ヶ月入居可能日相談
詳細を見る3階内装事務所仕様30.92
(102.21㎡)
賃料要問合せ共益費相談敷金6ヶ月入居可能日相談

※敷金減額サービスをご利用時はサービス利用料として減額分の5%が年間で別途発生します。

物件所在地

似た条件のオフィス