
















オフィスビル外観the ARGYLE aoyama
| 住所 | 東京都港区北青山2-14-4 |
|---|---|
| 最寄駅 | 外苑前駅 徒歩4分 青山一丁目駅 徒歩5分 国立競技場駅 徒歩9分 |
| 竣工年 | 2020年 |
| 構造・規模 | 鉄骨造(一部鉄骨鉄筋コンクリート造) / 地上20階 / 地下2階 |
募集区画
最終更新日:2026年4月14日
| 階数 | 内装 | 面積 | 賃料 | 共益費 | 敷金 | 入居可能日 | ||
|---|---|---|---|---|---|---|---|---|
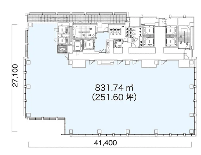
| 詳細を見る | 10階 | 内装事務所仕様 | 251.6坪 (831.74㎡) | 賃料要問合せ | 共益費相談 | 敷金相談 | 入居可能日相談 |
※敷金減額サービスをご利用時はサービス利用料として減額分の5%が年間で別途発生します。
物件紹介
外苑前駅駅徒歩4分、青山一丁目駅駅徒歩5分に位置するの地上20階 / 地下2階建てオフィスビル。エレベーター8基を完備。基準階約251.6坪の超大型フロアが特徴。
物件所在地
エリア紹介
青山・表参道エリアは、常に時代の最先端を走るファッション・クリエイティブ産業の震源地として、国内外から注目を集めています。アパレル、デザイン、建築、広告など、高度な感性と創造性が求められる業種の企業が数多く集積しており、他に類を見ない独特のビジネスシーンが形成されています。 交通利便性も非常に高く、東京メトロ銀座線・半蔵門線・千代田線が乗り入れる表参道駅、銀座線・半蔵門線・大江戸線が利用可能な青山一丁目駅を中心に、都内各所へのスムーズなアクセスが可能です。駅から徒歩数分の場所に、デザイン性の高い賃貸オフィスや貸事務所が点在していることも魅力の一つです。 青山・表参道エリアの賃料相場は都内でも高水準ですが、その分、企業イメージ向上に繋がる洗練されたオフィス環境が手に入ります。有名建築家が手掛けた意匠を凝らしたビルが多く、創造性を刺激する空間で働くことができるでしょう。近年ニーズが高まっているセットアップオフィスも増加傾向にあり、オフィス移転の際の選択肢も広がっています。 また、青山・表参道エリアはビジネス街としての側面だけでなく、緑豊かな環境も魅力です。明治神宮外苑が近く、都会の喧騒を忘れ、自然を感じながらリフレッシュできる時間を持つことも可能です。創造性と快適性を両立させたオフィス環境は、従業員のモチベーション向上にも貢献します。時代の変化に対応しながら、新たなビジネスチャンスを掴むための拠点として、青山・表参道エリアは最適なロケーションと言えるでしょう。







