






















オフィスビル外観1 / 24
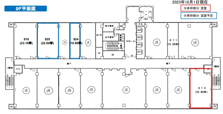
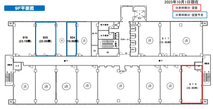
区画詳細情報
| 階数 | 9 | 内装 | 事務所仕様 |
|---|---|---|---|
| 面積(坪) | 22.00坪 | 面積(㎡) | 72.73㎡ |
| 賃料 | ¥187,000 | 坪単価 | ¥8,500/坪 |
| 敷金/保証金 | 相談 | 礼金 | - |
| 入居可能日 | - | 募集状況 | 空室 |
| 収容人数 | - | 会議室 | - |
| テレブース | - | 機械警備 | - |
| 天井高 | - | 床仕様 | - |
| トイレ | 共用男女別 | 空調 | 個別 |
物件情報
| 物件名 | FRC(エフアールシー)ビル | ||
|---|---|---|---|
| 所在地 | 福岡県福岡市東区多の津1-14-1 | ||
| 最寄駅 | 柚須駅 徒歩24分 / 箱崎駅 徒歩35分 | ||
| 構造 | 鉄骨鉄筋コンクリート造 | 規模 | 地上9階 / 地下1階 |
| 竣工 | 1975 | リニューアル | - |


