

















オフィスビル外観1 / 19
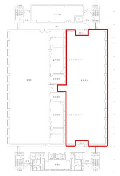
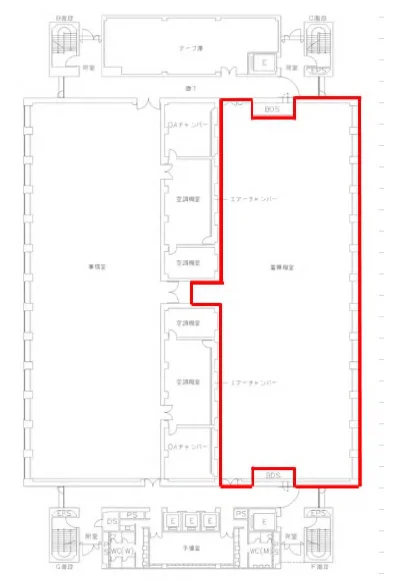
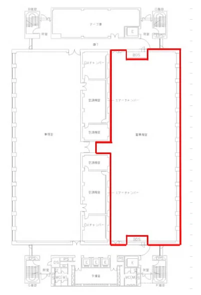
区画詳細情報
| 階数 | 5 | 内装 | 事務所仕様 |
|---|---|---|---|
| 面積(坪) | 234.25坪 | 面積(㎡) | 774.38㎡ |
| 賃料 | 要問い合わせ | 坪単価 | 要問い合わせ |
| 敷金/保証金 | 12ヶ月6ヶ月 | 礼金 | - |
| 入居可能日 | - | 募集状況 | 空室 |
| 収容人数 | - | 会議室 | - |
| テレブース | - | 機械警備 | - |
| 天井高 | 2600 | 床仕様 | OAフロア |
| トイレ | 共用男女別 | 空調 | セントラル |
物件情報
| 物件名 | 住友商事千里ビル北館 | ||
|---|---|---|---|
| 所在地 | 大阪府豊中市新千里西町1-2-2 | ||
| 最寄駅 | 千里中央駅 徒歩3分 | ||
| 構造 | - | 規模 | - |
| 竣工 | 1993 | リニューアル | - |
