



間取り図1 / 5
区画詳細情報
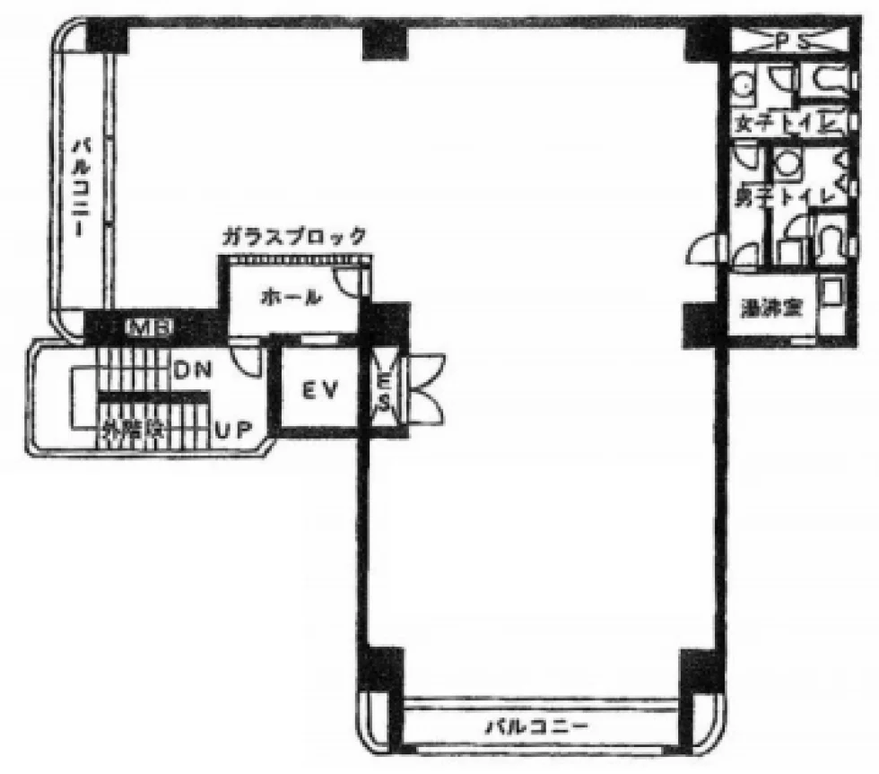
| 階数 | 4 | 内装 | セットアップオフィス |
|---|---|---|---|
| 面積(坪) | 51.63坪 | 面積(㎡) | 170.68㎡ |
| 賃料 | 要問い合わせ | 坪単価 | 要問い合わせ |
| 敷金/保証金 | 相談 | 礼金 | 0 |
| 入居可能日 | 2026/02 上旬 | 募集状況 | 空室 |
| 収容人数 | - | 会議室 | - |
| テレブース | - | 機械警備 | - |
| 天井高 | - | 床仕様 | OAフロア |
| トイレ | 男女トイレ別 | 空調 | - |
物件情報
| 物件名 | THE GATE UENO | ||
|---|---|---|---|
| 所在地 | 東京都台東区東上野1-12-2 | ||
| 最寄駅 | 仲御徒町駅 徒歩2分 / 上野御徒町駅 徒歩2分 / 御徒町駅 徒歩4分 | ||
| 構造 | - | 規模 | 地上9階 / 地下1階 |
| 竣工 | - | リニューアル | - |

