募集区画
最終更新日:2026年4月17日
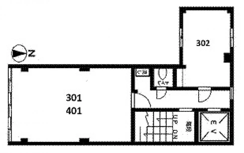
| 階数 | 内装 | 面積 | 賃料 | 共益費 | 敷金 | 入居可能日 | ||
|---|---|---|---|---|---|---|---|---|
| 詳細を見る | 3階 | 内装事務所仕様 | 13.5坪 (44.63㎡) | 賃料要問合せ | 共益費相談 | 敷金5ヶ月 | 入居可能日2026/04 中旬 | |
| 詳細を見る | 3階 | 内装事務所仕様 | 13.5坪 (44.63㎡) | 賃料要問合せ | 共益費相談 | 敷金5ヶ月 | 入居可能日相談 |
※敷金減額サービスをご利用時はサービス利用料として減額分の5%が年間で別途発生します。
物件所在地
似た条件のオフィス
Growth Office
後閑ビル
新御徒町駅 徒歩4分
13.2坪
事務所仕様Growth Office
SKビル
上野駅 徒歩7分
20.9坪
事務所仕様Growth Office
スズキビル
御徒町駅 徒歩3分
20.0坪
事務所仕様Growth Office
イースタンクロスアキバビル
秋葉原駅 徒歩7分
10.5坪
事務所仕様Growth Office
コーポ今戸
浅草駅 徒歩15分
19.5坪
事務所仕様Growth Office
MITA上野松が谷PARK
入谷駅 徒歩6分
15.1坪
事務所仕様Growth Office
フロンティア北上野ビル
上野駅 徒歩7分
18.9坪
事務所仕様Growth Office
竜泉ビル
入谷駅 徒歩3分
12.2坪
事務所仕様