





























1 / 30
区画詳細情報
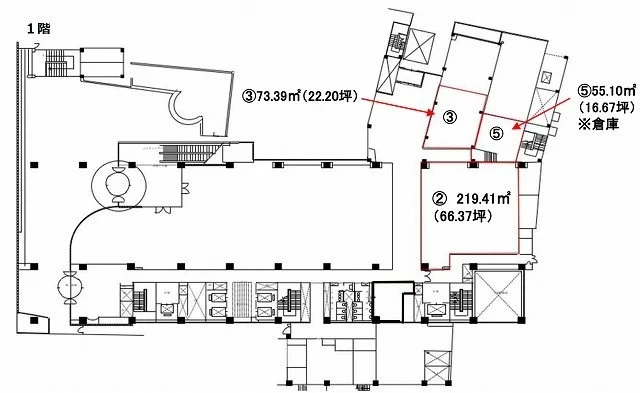
| 階数 | 1 | 内装 | 事務所仕様 |
|---|---|---|---|
| 面積(坪) | 22.20坪 | 面積(㎡) | 73.39㎡ |
| 賃料 | 要問い合わせ | 坪単価 | 要問い合わせ |
| 敷金/保証金 | 4ヶ月 | 礼金 | - |
| 入居可能日 | - | 募集状況 | 空室 |
| 収容人数 | - | 会議室 | - |
| テレブース | - | 機械警備 | - |
| 天井高 | 2550 | 床仕様 | OAフロア |
| トイレ | 共用男女別 | 空調 | セントラル |
物件情報
| 物件名 | 宇都宮TDビル | ||
|---|---|---|---|
| 所在地 | 栃木県宇都宮市馬場通り1-1-11 | ||
| 最寄駅 | 東武宇都宮駅 徒歩6分 | ||
| 構造 | 鉄筋コンクリート造 | 規模 | 地下2階地上10階建 |
| 竣工 | 1991 | リニューアル | - |
