


オフィスビル外観1 / 4
区画詳細情報
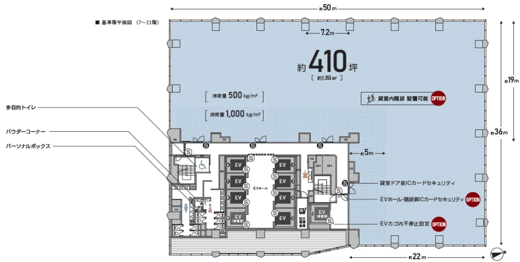
| 階数 | 19 | 内装 | 事務所仕様 |
|---|---|---|---|
| 面積(坪) | 411.41坪 | 面積(㎡) | 1360.00㎡ |
| 賃料 | 要問い合わせ | 坪単価 | 要問い合わせ |
| 敷金/保証金 | 相談 | 礼金 | なし |
| 入居可能日 | - | 募集状況 | 空室 |
| 収容人数 | - | 会議室 | - |
| テレブース | - | 機械警備 | - |
| 天井高 | - | 床仕様 | OAフロア |
| トイレ | - | 空調 | - |
物件情報
| 物件名 | 住友芝公園ビル | ||
|---|---|---|---|
| 所在地 | 東京都港区芝2-7-17 | ||
| 最寄駅 | 芝公園駅 徒歩1分 / 三田駅 徒歩5分 / 赤羽橋駅 徒歩8分 | ||
| 構造 | - | 規模 | 地上21階 / 地下2階 |
| 竣工 | 2026年 | リニューアル | - |




