




















オフィスビル外観1 / 22
区画詳細情報
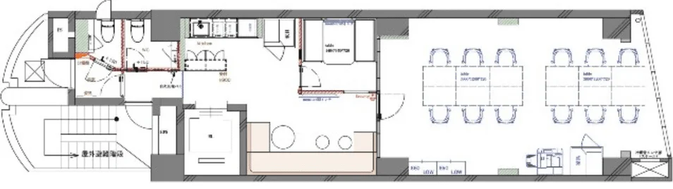
| 階数 | 7 | 内装 | セットアップオフィス |
|---|---|---|---|
| 面積(坪) | 23.81坪 | 面積(㎡) | 78.71㎡ |
| 賃料 | ¥571,440 | 坪単価 | ¥24,000/坪 |
| 敷金/保証金 | 相談 | 礼金 | 0 |
| 入居可能日 | - | 募集状況 | 空室 |
| 収容人数 | 12人 | 会議室 | 1室 |
| テレブース | - | 機械警備 | - |
| 天井高 | 3010 | 床仕様 | OAフロア |
| トイレ | 男女トイレ別 | 空調 | - |
物件情報
| 物件名 | NOVEL WORK Sangenjaya | ||
|---|---|---|---|
| 所在地 | 東京都世田谷区太子堂1-4-33 | ||
| 最寄駅 | 三軒茶屋駅 徒歩8分 / 池尻大橋駅 徒歩9分 | ||
| 構造 | 鉄筋コンクリート造 | 規模 | 地上8階 |
| 竣工 | 1992 | リニューアル | - |






