AREA SEARCHエリアからオフィスを検索する
東京都は、日本経済の中心地として、多種多様な企業が集積するオフィスエリアが広がっています。都内全域に貸事務所が存在し、企業の規模や業種、働き方に合わせたオフィス選びが可能です。千代田区や中央区は、大手…
検索結果 2 件 募集中/登録138,648件























京王八王子駅駅徒歩1分、八王子駅駅徒歩4分に位置するの地上12階 / 地下1階建てオフィスビル。エレベーター4基を完備。約22.01坪のフロアは少人数から中規模オフィスに対応可能。
| 階数 | 面積 | 賃料総額 | 坪単価 | 内装 | 敷金 | 入居日 | ||
|---|---|---|---|---|---|---|---|---|
| 2F | 22.0坪(72.8㎡) | 要問合せ | - | 事務所仕様 | 相談 | 相談 | 詳細を見る |



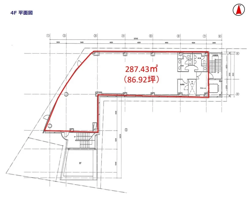
京王八王子駅徒歩1分、JR八王子駅徒歩4分の明神町に位置するオフィスビル。1990年竣工の地上8階・地下1階建てで、基準階約87坪のフロアに天井高2,500mm・OAフロア・エレベーター1基を完備。八王子エリアで最もアクセスの良い駅前立地で、多摩地区に拠点を構えたい企業に最適です。
| 階数 | 面積 | 賃料総額 | 坪単価 | 内装 | 敷金 | 入居日 | ||
|---|---|---|---|---|---|---|---|---|
| 4F | 86.9坪(287.3㎡) | 要問合せ | - | 事務所仕様 | 12ヶ月 | 相談 | 詳細を見る |
2物件中 1〜2物件を表示
A. 八王子駅周辺の賃貸オフィスの平均坪単価は約14,000円です(14,000円〜14,000円)。
A. 現在八王子駅周辺エリアにはセットアップオフィスの募集はありませんが、随時更新されますのでご確認ください。
A. 現在八王子駅周辺エリアには敷金0円の物件はありませんが、随時更新されますのでご確認ください。
A. 八王子駅周辺エリアは京王八王子駅・八王子駅などの駅が利用可能で、都心各方面へのアクセスに優れています。