






オフィスビル外観1 / 8
TOMIKE TAKASAGO
| 住所 | 福岡県福岡市中央区高砂2-14-3 |
|---|---|
| 最寄駅 | 西鉄平尾駅 徒歩5分 薬院駅 徒歩8分 渡辺通駅 徒歩9分 |
| 竣工年 | 2024年 |
| 構造・規模 | 鉄筋コンクリート造 / 地上3階 |
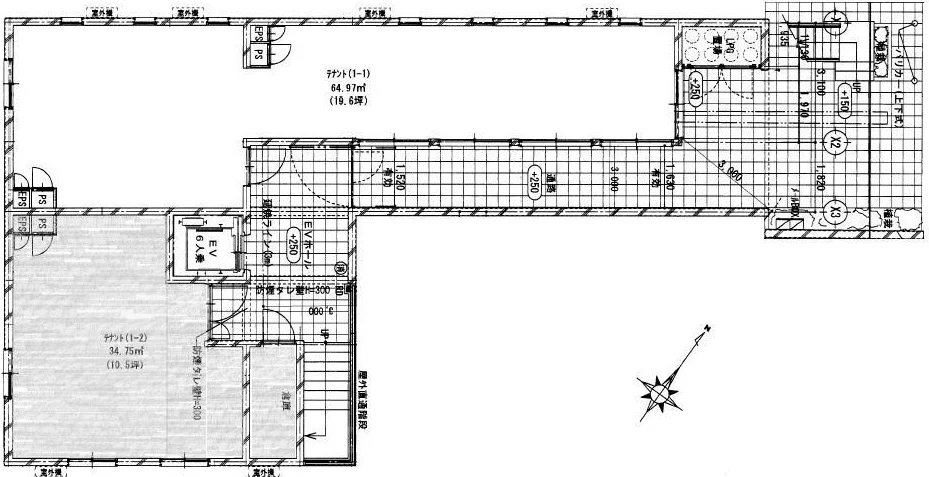
募集区画
最終更新日:2026年4月14日
| 階数 | 内装 | 面積 | 賃料 | 共益費 | 敷金 | 入居可能日 | ||
|---|---|---|---|---|---|---|---|---|
| 詳細を見る | 1階 | 内装事務所仕様 | 19.65坪 (64.96㎡) | 賃料¥319,400 (坪16,254円) | 共益費相談 | 敷金相談 | 入居可能日相談 | |
| 詳細を見る | 2階 | 内装事務所仕様 | 10.51坪 (34.74㎡) | 賃料要問合せ | 共益費相談 | 敷金相談 | 入居可能日相談 | |
| 詳細を見る | 2階 | 内装事務所仕様 | 26.14坪 (86.41㎡) | 賃料¥410,170 (坪15,691円) | 共益費相談 | 敷金相談 | 入居可能日相談 | |
| 詳細を見る | 3階 | 内装事務所仕様 | 9.15坪 (30.25㎡) | 賃料要問合せ | 共益費相談 | 敷金相談 | 入居可能日相談 | |
| 詳細を見る | 3階 | 内装事務所仕様 | 10.51坪 (34.74㎡) | 賃料要問合せ | 共益費相談 | 敷金相談 | 入居可能日相談 |
※敷金減額サービスをご利用時はサービス利用料として減額分の5%が年間で別途発生します。







