




オフィスビル外観1 / 6
区画詳細情報
| 階数 | 4 | 内装 | 事務所仕様 |
|---|---|---|---|
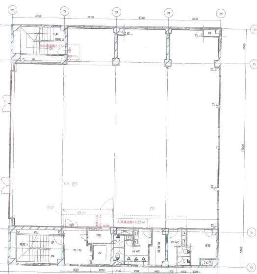
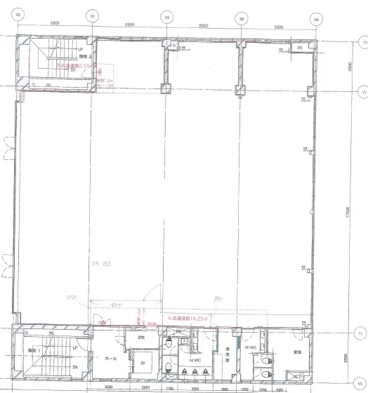
| 面積(坪) | 126.00坪 | 面積(㎡) | 416.53㎡ |
| 賃料 | 要問い合わせ | 坪単価 | 要問い合わせ |
| 敷金/保証金 | 6ヶ月 | 礼金 | - |
| 入居可能日 | - | 募集状況 | 空室 |
| 収容人数 | - | 会議室 | - |
| テレブース | - | 機械警備 | - |
| 天井高 | - | 床仕様 | - |
| トイレ | - | 空調 | - |
物件情報
| 物件名 | アクシオンBiz博多駅南ビル(アクシオンビズ博多駅南ビル) | ||
|---|---|---|---|
| 所在地 | 福岡県福岡市博多区博多駅南3-3-34 | ||
| 最寄駅 | 博多駅 徒歩9分 / 東比恵駅 徒歩9分 | ||
| 構造 | 鉄骨鉄筋コンクリート造 | 規模 | 地上5階 |
| 竣工 | 1990 | リニューアル | - |