募集区画
最終更新日:2026年4月14日
| 階数 | 内装 | 面積 | 賃料 | 共益費 | 敷金 | 入居可能日 | ||
|---|---|---|---|---|---|---|---|---|
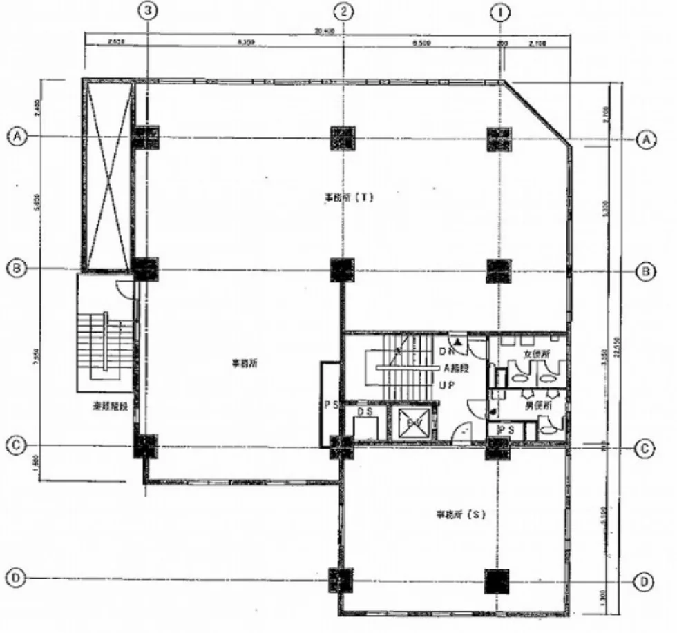
| 詳細を見る | 4階 | 内装事務所仕様 | 82.95坪 (274.22㎡) | 賃料要問合せ | 共益費相談 | 敷金相談 | 入居可能日相談 |
※敷金減額サービスをご利用時はサービス利用料として減額分の5%が年間で別途発生します。
物件所在地
エリア紹介
東京駅に隣接する八重洲・日本橋・京橋エリアは、まさにビジネスの中心地と呼ぶにふさわしい存在感を誇ります。新幹線をはじめ、JR各線、東京メトロなど、多岐にわたる路線が利用可能で、全国各地、そして海外へのアクセスもスムーズです。この交通利便性の高さは、出張の多い企業にとって大きなメリットとなり、ビジネスチャンスを広げる上で重要な役割を担います。 特に日本橋エリアは、東京証券取引所を中心に、金融機関が集積する日本経済の中枢を担っています。伝統と革新が共存する街並みは、企業の信頼性を高める効果も期待できるでしょう。一方、京橋エリアでは、近年リノベーションされた個性的な賃貸オフィスが増加しており、創造性を重視するスタートアップ企業やクリエイティブ系企業から熱い視線を集めています。通常の貸事務所だけでなく、内装や家具付きのセットアップオフィスも充実しており、オフィス移転に伴う初期費用を抑えたい企業にも最適です。 現在、このエリアでは大規模な再開発プロジェクトが進行中で、東京駅周辺を中心に新しいランドマークとなる大型ビルが次々と誕生しています。これらのビルには、最新の設備を備えたオフィス空間が提供されており、従業員の生産性向上に貢献します。気になる賃料相場は、都心の一等地ということもあり、比較的高めに設定されていますが、その分、得られるビジネス上のメリットは計り知れません。八重洲・日本橋・京橋エリアは、企業の成長を力強く後押しする、ポテンシャルの高いオフィスエリアと言えるでしょう。


















