














オフィスビル外観1 / 16
UEKIビル
| 住所 | 福岡県福岡市中央区白金1-5-22 |
|---|---|
| 最寄駅 | 薬院駅 徒歩3分 渡辺通駅 徒歩5分 西鉄平尾駅 徒歩9分 |
| 竣工年 | 2023年 |
| 構造・規模 | 鉄筋コンクリート造 / 地上3階 |
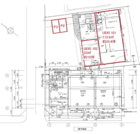
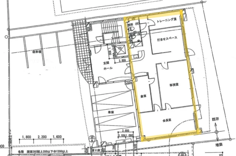
募集区画
最終更新日:2026年4月14日
| 階数 | 内装 | 面積 | 賃料 | 共益費 | 敷金 | 入居可能日 | ||
|---|---|---|---|---|---|---|---|---|
| 詳細を見る | 1階 | 内装事務所仕様 | 34.42坪 (113.79㎡) | 賃料要問合せ | 共益費相談 | 敷金相談 | 入居可能日相談 |
※敷金減額サービスをご利用時はサービス利用料として減額分の5%が年間で別途発生します。







