






























































オフィスビル外観1 / 64
区画詳細情報
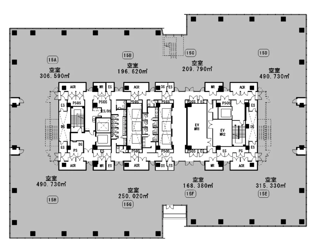
| 階数 | 15 | 内装 | 事務所仕様 |
|---|---|---|---|
| 面積(坪) | 734.52坪 | 面積(㎡) | 2428.17㎡ |
| 賃料 | 要問い合わせ | 坪単価 | 要問い合わせ |
| 敷金/保証金 | 12ヶ月0円 | 礼金 | 0 |
| 入居可能日 | - | 募集状況 | 空室 |
| 収容人数 | - | 会議室 | - |
| テレブース | - | 機械警備 | - |
| 天井高 | - | 床仕様 | OAフロア |
| トイレ | 共用男女別 | 空調 | 個別 |
物件情報
| 物件名 | 福岡大名ガーデンシティ | ||
|---|---|---|---|
| 所在地 | 福岡県福岡市中央区大名2-6-50 | ||
| 最寄駅 | 天神駅 徒歩4分 / 赤坂駅 徒歩4分 / 天神南駅 徒歩8分 | ||
| 構造 | - | 規模 | 地下1階地上25階建 |
| 竣工 | 2022 | リニューアル | - |





