






オフィスビル外観1 / 8
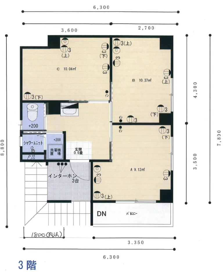
区画詳細情報
| 階数 | 3 | 内装 | 事務所仕様 |
|---|---|---|---|
| 面積(坪) | 14.20坪 | 面積(㎡) | 46.95㎡ |
| 賃料 | 要問い合わせ | 坪単価 | 要問い合わせ |
| 敷金/保証金 | 5ヶ月 | 礼金 | 2 |
| 入居可能日 | - | 募集状況 | 空室 |
| 収容人数 | - | 会議室 | - |
| テレブース | - | 機械警備 | - |
| 天井高 | - | 床仕様 | - |
| トイレ | - | 空調 | - |
物件情報
| 物件名 | MAフラットビル高田馬場 | ||
|---|---|---|---|
| 所在地 | 東京都新宿区高田馬場2-7-13 | ||
| 最寄駅 | 高田馬場駅 徒歩7分 | ||
| 構造 | - | 規模 | 地上 - 階 |
| 竣工 | - | リニューアル | - |

