募集区画
最終更新日:2026年4月14日
| 階数 | 内装 | 面積 | 賃料 | 共益費 | 敷金 | 入居可能日 | ||
|---|---|---|---|---|---|---|---|---|
| 詳細を見る | 2階 | 内装事務所仕様 | 70.99坪 (233.95㎡) | 賃料要問合せ | 共益費相談 | 敷金相談 | 入居可能日相談 | |
| 詳細を見る | 3階 | 内装事務所仕様 | 278.79坪 (917.32㎡) | 賃料要問合せ | 共益費相談 | 敷金相談 | 入居可能日相談 | |
| 詳細を見る | 4階 | 内装事務所仕様 | 278.79坪 (917.32㎡) | 賃料要問合せ | 共益費相談 | 敷金相談 | 入居可能日相談 | |
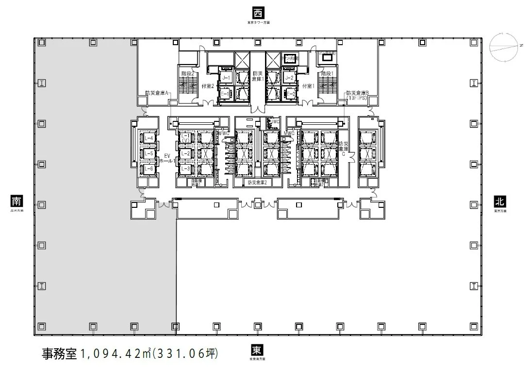
| 詳細を見る | 9階 | 内装事務所仕様 | 277.49坪 (917.32㎡) | 賃料要問合せ | 共益費相談 | 敷金相談 | 入居可能日相談 |
※敷金減額サービスをご利用時はサービス利用料として減額分の5%が年間で別途発生します。
物件紹介
品川駅駅徒歩3分に位置するの地上10階建てオフィスビル。エレベーター6基を完備。基準階約278.79坪の超大型フロアが特徴。
物件所在地
エリア紹介
品川駅・高輪・港南エリアは、都内屈指のビジネス拠点として、企業のオフィス移転先として高い人気を誇っています。新幹線の停車駅である品川駅は、JR山手線、京浜東北線、東海道線、横須賀線に加え東海道新幹線が利用可能であり、名古屋・大阪方面へはもちろん、横浜方面へのアクセスも抜群です。出張の多い企業にとって、この利便性は大きな魅力となるでしょう。 港南口には品川インターシティをはじめとする大規模オフィスビルが林立しており、近年、大手企業の本社移転が相次ぐ成長エリアです。活気あふれる街並みは、ビジネスを加速させる力強さを感じさせます。このエリアでは、様々な規模の賃貸オフィスや貸事務所が見つかり、企業のニーズに合わせたオフィス選びが可能です。 また、高輪ゲートウェイ駅周辺では大規模な再開発が進んでおり、今後の発展にも目が離せません。新しい商業施設やホテルなども建設予定で、ビジネス環境はさらに向上することが期待されます。 品川エリアの賃料相場は、都心部と比較するとやや落ち着いており、コストパフォーマンスに優れたオフィス環境を求める企業にとって魅力的な選択肢となります。また、近年注目を集めているセットアップオフィスも増えており、初期費用を抑えながらすぐに業務を開始できる点もメリットです。複数の路線が乗り入れる品川駅から、主要ビジネスエリアへのアクセスもスムーズであり、交通利便性とコストパフォーマンスを両立できる、魅力的なオフィスエリアと言えるでしょう。








