


フロア図面1 / 4
区画詳細情報
| 階数 | 3 | 内装 | 事務所仕様 |
|---|---|---|---|
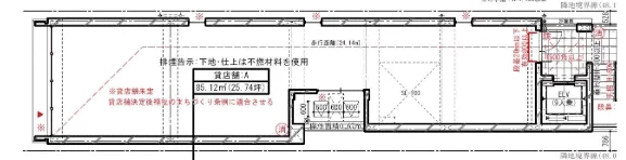
| 面積(坪) | 25.74坪 | 面積(㎡) | 85.09㎡ |
| 賃料 | 要問い合わせ | 坪単価 | 要問い合わせ |
| 敷金/保証金 | 相談 | 礼金 | - |
| 入居可能日 | - | 募集状況 | 空室 |
| 収容人数 | - | 会議室 | - |
| テレブース | - | 機械警備 | - |
| 天井高 | - | 床仕様 | - |
| トイレ | - | 空調 | - |
物件情報
| 物件名 | MODERN BUREAU呉服町 | ||
|---|---|---|---|
| 所在地 | 福岡県福岡市博多区上呉服町10-6 | ||
| 最寄駅 | 呉服町駅 徒歩2分 / 祇園駅 徒歩5分 / 千代県庁口駅 徒歩6分 | ||
| 構造 | 鉄筋コンクリート造 | 規模 | 地上6階 |
| 竣工 | 2025 | リニューアル | - |



