

















































執務室1 / 51
区画詳細情報
| 階数 | 8 | 内装 | セットアップオフィス |
|---|---|---|---|
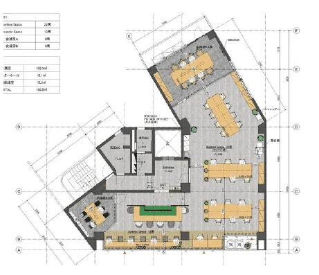
| 面積(坪) | 56.11坪 | 面積(㎡) | 185.49㎡ |
| 賃料 | 要問い合わせ | 坪単価 | 要問い合わせ |
| 敷金/保証金 | 6ヶ月0円 | 礼金 | 0 |
| 入居可能日 | - | 募集状況 | 空室 |
| 収容人数 | - | 会議室 | 1室 |
| テレブース | - | 機械警備 | - |
| 天井高 | - | 床仕様 | OAフロア |
| トイレ | 専用男女別 | 空調 | - |
物件情報
| 物件名 | S-Glanz KUDAN BLD. | ||
|---|---|---|---|
| 所在地 | 東京都千代田区飯田橋2-1-5 | ||
| 最寄駅 | 九段下駅 徒歩4分 / 神保町駅 徒歩7分 / 飯田橋駅 徒歩6分 | ||
| 構造 | 鉄骨鉄筋コンクリート造 | 規模 | 地上9階 |
| 竣工 | 1986 | リニューアル | - |
