番町・麹町・永田町エリアは、皇居と赤坂御用地に囲まれた、都心でありながら落ち着いた雰囲気の漂うビジネスエリアです。最高裁判所や各国大使館などが立地し、高度な専門性を必要とする弁護士や会計士などの士業、…
検索結果 110 件 募集中/登録138,648件











































麹町駅徒歩4分、半蔵門駅徒歩7分の麹町4丁目に位置する地上12階・地下1階建てオフィスビル。エレベーター2基を完備。約45坪のフロアは中規模オフィスに適した広さ。敷金4ヶ月で入居可能。ACNシリーズの物件です。
| 階数 | 面積 | 賃料総額 | 坪単価 | 内装 | 敷金 | 入居日 | ||
|---|---|---|---|---|---|---|---|---|
| 8F | 45.3坪(149.7㎡) | 要問合せ | - | セットアップオフィス | 0円 | 相談 | 詳細を見る | |
| 12F | 45.3坪(149.7㎡) | 要問合せ | - | セットアップオフィス | 0円 | 相談 | 詳細を見る |





























サンフロンティア不動産が展開する「NOVEL WORK」シリーズ。半蔵門駅からわずか徒歩2分、麹町駅・永田町駅も徒歩圏内で3駅3路線が利用可能です。フルセットアップ仕様の貸室にはカウンターキッチンやテレカンブースを完備し、Wi-Fi引込済みですぐに業務を開始可能。無柱設計で柔軟なレイアウトにも対応します。平河天満宮にほど近く、都心でありながら緑を感じる落ち着いた環境。半蔵門周辺の個性的なカフェやレストランも楽しめます。敷金0円のセットアップオフィスで、スムーズなオフィス移転を実現します。
| 階数 | 面積 | 賃料総額 | 坪単価 | 内装 | 敷金 | 入居日 | ||
|---|---|---|---|---|---|---|---|---|
| 2F A | 23.8坪(78.7㎡) | 690,490円 | 29,000円/坪 | セットアップオフィス | 0円 | 2026年5月上旬予定 | 詳細を見る | |
| 3F A | 23.7坪(78.3㎡) | 686,430円 | 29,000円/坪 | セットアップオフィス | 0円 | 2026年5月上旬予定 | 詳細を見る | |
| 4F A | 23.7坪(78.3㎡) | 686,430円 | 28,999円/坪 | セットアップオフィス | 0円 | 即日 | 詳細を見る | |
| 5F B | 24.2坪(80.0㎡) | 701,800円 | 29,000円/坪 | セットアップオフィス | 0円 | 2026年5月上旬予定 | 詳細を見る | |
| 6F B | 24.2坪(80.0㎡) | 701,800円 | 29,000円/坪 | セットアップオフィス | 0円 | 2026年5月上旬予定 | 詳細を見る | |
| 7F | 47.8坪(158.2㎡) | 1,435,200円 | 30,000円/坪 | セットアップオフィス | 0円 | 即日 | 詳細を見る |


























































赤坂見附駅駅徒歩1分、永田町駅駅徒歩4分に位置するの地上9階 / 地下2階建てオフィスビル。エレベーター7基を完備。基準階約81.04坪の大型フロアが特徴。
| 階数 | 面積 | 賃料総額 | 坪単価 | 内装 | 敷金 | 入居日 | ||
|---|---|---|---|---|---|---|---|---|
| B1 | 46.2坪(152.7㎡) | 要問合せ | - | 事務所仕様 | 相談 | 相談 | 詳細を見る | |
| 2F | 46.3坪(153.0㎡) | 要問合せ | - | 事務所仕様 | 相談 | 相談 | 詳細を見る | |
| 3F | 81.0坪(267.9㎡) | 要問合せ | - | 事務所仕様 | 相談 | 相談 | 詳細を見る |























































永田町駅徒歩2分、赤坂見附駅徒歩5分の平河町2丁目に位置する地上24階・地下2階建ての超高層オフィスタワー。エレベーター8基を完備。基準階約133坪のフロアが特徴。森ビルが手がける平河町エリアのランドマークです。
| 階数 | 面積 | 賃料総額 | 坪単価 | 内装 | 敷金 | 入居日 | ||
|---|---|---|---|---|---|---|---|---|
| 8F | 132.7坪(438.7㎡) | 要問合せ | - | 事務所仕様 | 相談 | 相談 | 詳細を見る |











































麹町駅徒歩4分、半蔵門駅徒歩4分の平河町1丁目に位置する地上6階・地下1階建てオフィスビル。OAフロア・個別空調・男女別トイレ・エレベーター1基を完備。約101坪の大型フロアはワンフロア利用に最適。永田町エリアにも近い麹町の好立地です。
| 階数 | 面積 | 賃料総額 | 坪単価 | 内装 | 敷金 | 入居日 | ||
|---|---|---|---|---|---|---|---|---|
| 3F | 100.7坪(332.8㎡) | 要問合せ | - | セットアップオフィス | 6ヶ月 | 相談 | 詳細を見る | |
| 4F | 93.5坪(309.2㎡) | 要問合せ | - | セットアップオフィス | 6ヶ月 | 相談 | 詳細を見る | |
| 6F | 49.4坪(163.2㎡) | 要問合せ | - | セットアップオフィス | 6ヶ月 | 2026/05/01 | 詳細を見る |

























永田町駅徒歩3分、青山通りに面したセットアップオフィス。2018年に共用部と室内の大規模リニューアルを実施し、受付・会議室を備えた内装付きオフィスに生まれ変わりました。個別空調・機械警備を完備し、24時間利用可能。屋上にはルーフガーデンがあり、リフレッシュスペースとして活用できます。赤坂見附駅・半蔵門駅も徒歩圏内で、官公庁エリアへのアクセスも良好。周辺にはコンビニやカフェも揃い、オフィス移転先として信頼感のある千代田区平河町の立地です。
| 階数 | 面積 | 賃料総額 | 坪単価 | 内装 | 敷金 | 入居日 | ||
|---|---|---|---|---|---|---|---|---|
| 2F | 59.5坪(196.6㎡) | 要問合せ | - | セットアップオフィス | 6ヶ月 | 相談 | 詳細を見る | |
| 7F | 59.5坪(196.6㎡) | 要問合せ | - | セットアップオフィス | 6ヶ月 | 相談 | 詳細を見る |































市ヶ谷駅駅徒歩8分、四谷三丁目駅駅徒歩10分に位置するの地上9階 / 地下1階建てオフィスビル。エレベーター2基を完備。基準階約157.09坪の大型フロアが特徴。
| 階数 | 面積 | 賃料総額 | 坪単価 | 内装 | 敷金 | 入居日 | ||
|---|---|---|---|---|---|---|---|---|
| 8F | 157.1坪(519.3㎡) | 要問合せ | - | 事務所仕様 | 相談 | 2026-01-01T00:00:00.000Z | 詳細を見る |





























半蔵門駅徒歩1分、麹町駅徒歩5分の麹町1丁目に位置する1990年竣工のSRC造オフィスビル。地上7階・地下1階建てで、基準階約67坪のフロアに天井高2,600mm・OAフロア・男女別トイレ・エレベーター2基を完備。半蔵門駅直上の抜群のアクセスで、皇居にも面した番町・麹町エリアの好立地です。
| 階数 | 面積 | 賃料総額 | 坪単価 | 内装 | 敷金 | 入居日 | ||
|---|---|---|---|---|---|---|---|---|
| 6F | 66.5坪(220.0㎡) | 要問合せ | - | 事務所仕様 | 12ヶ月 | 2026-01-01T00:00:00.000Z | 詳細を見る |



















半蔵門駅徒歩3分、麹町駅徒歩4分の千代田区平河町に位置するセットアップオフィス。天井高2,690mmとゆとりある空間設計で、個別空調・OAフロア・機械警備・エレベーター2基を完備しています。永田町駅も徒歩7分と近く、半蔵門線・有楽町線・南北線の3路線が利用可能。官公庁エリアに近い落ち着いたビジネス環境で、自走式駐車場も備えた内装付きオフィスです。オフィス移転先として、信頼感のある立地を求める企業に適しています。
| 階数 | 面積 | 賃料総額 | 坪単価 | 内装 | 敷金 | 入居日 | ||
|---|---|---|---|---|---|---|---|---|
| 4F | 57.6坪(190.3㎡) | 要問合せ | - | セットアップオフィス | 6ヶ月 | 相談 | 詳細を見る | |
| 4F | 49.6坪(163.9㎡) | 要問合せ | - | セットアップオフィス | 6ヶ月 | 相談 | 詳細を見る |













近鉄半蔵門SQUAREは、半蔵門駅徒歩1分に2023年竣工した新築セットアップオフィスです。各フロアに屋外テラスを設け、外気を感じられる開放的な設計が特長。共用ラウンジにはキッチン設備や会議室を完備し、入居者同士のコミュニケーションを促す仕掛けが随所に施されています。家具付きの内装付きオフィスで原状回復義務もなく、敷金0円で手軽にオフィス移転が可能。スタートアップやテック系企業の拠点として注目の物件です。
| 階数 | 面積 | 賃料総額 | 坪単価 | 内装 | 敷金 | 入居日 | ||
|---|---|---|---|---|---|---|---|---|
| 8F | 18.2坪(60.0㎡) | 要問合せ | - | セットアップオフィス | 1ヶ月 | 相談 | 詳細を見る |












麹町駅駅徒歩1分、半蔵門駅駅徒歩5分に位置するの地上8階 / 地下2階建てオフィスビル。エレベーター1基を完備。約39.54坪のフロアは中規模オフィスに適した広さ。
| 階数 | 面積 | 賃料総額 | 坪単価 | 内装 | 敷金 | 入居日 | ||
|---|---|---|---|---|---|---|---|---|
| 7F | 39.5坪(130.7㎡) | 要問合せ | - | セットアップオフィス | 6ヶ月 | 相談 | 詳細を見る |











半蔵門駅駅徒歩3分、麹町駅駅徒歩7分に位置するの地上9階建てオフィスビル。エレベーター2基を完備。約5.8坪のコンパクトな区画は少人数事務所に最適。
| 階数 | 面積 | 賃料総額 | 坪単価 | 内装 | 敷金 | 入居日 | ||
|---|---|---|---|---|---|---|---|---|
| 1F | 5.8坪(19.2㎡) | 要問合せ | - | 事務所仕様 | 4ヶ月 | 相談 | 詳細を見る | |
| 2F | 54.8坪(188.9㎡) | 要問合せ | - | セットアップオフィス | 4ヶ月 | 相談 | 詳細を見る | |
| 3F | 54.8坪(188.9㎡) | 要問合せ | - | セットアップオフィス | 4ヶ月 | 相談 | 詳細を見る | |
| 4F | 54.8坪(188.9㎡) | 要問合せ | - | セットアップオフィス | 4ヶ月 | 相談 | 詳細を見る | |
| 5F | 57.1坪(188.9㎡) | 要問合せ | - | セットアップオフィス | 4ヶ月 | 相談 | 詳細を見る | |
| 6F | 57.1坪(188.9㎡) | 要問合せ | - | セットアップオフィス | 4ヶ月 | 相談 | 詳細を見る | |
| 7F | 57.1坪(188.9㎡) | 要問合せ | - | セットアップオフィス | 4ヶ月 | 相談 | 詳細を見る | |
| 8F | 57.1坪(188.9㎡) | 要問合せ | - | セットアップオフィス | 4ヶ月 | 相談 | 詳細を見る |





















半蔵門駅徒歩5分、永田町駅徒歩6分の平河町1丁目に位置する地上6階建てオフィスビル。OAフロア・男女別トイレ・エレベーター1基を完備。約43坪のフロアは中規模オフィスに適した広さ。国会議事堂にも近い永田町・麹町エリアの落ち着いた環境です。
| 階数 | 面積 | 賃料総額 | 坪単価 | 内装 | 敷金 | 入居日 | ||
|---|---|---|---|---|---|---|---|---|
| 3F | 43.2坪(142.9㎡) | 要問合せ | - | 事務所仕様 | 6ヶ月 | 相談 | 詳細を見る |




















麹町駅駅徒歩3分、四ツ谷駅駅徒歩6分に位置するの地上12階 / 地下1階建てオフィスビル。エレベーター1基を完備。約42.24坪のフロアは中規模オフィスに適した広さ。
| 階数 | 面積 | 賃料総額 | 坪単価 | 内装 | 敷金 | 入居日 | ||
|---|---|---|---|---|---|---|---|---|
| 4F | 42.2坪(139.6㎡) | 要問合せ | - | 事務所仕様 | 12ヶ月 | 相談 | 詳細を見る | |
| 7F | 42.2坪(139.6㎡) | 要問合せ | - | 事務所仕様 | 12ヶ月 | 相談 | 詳細を見る |
building-exterior

















半蔵門駅駅徒歩1分、麹町駅駅徒歩4分に位置するの地上11階 / 地下2階建てオフィスビル。エレベーター3基を完備。基準階約171.33坪の大型フロアが特徴。
| 階数 | 面積 | 賃料総額 | 坪単価 | 内装 | 敷金 | 入居日 | ||
|---|---|---|---|---|---|---|---|---|
| 5F | 171.3坪(566.4㎡) | 要問合せ | - | 事務所仕様 | 12ヶ月 | 2026/06/01 | 詳細を見る |
building-exterior







市ケ谷駅駅徒歩4分、麹町駅駅徒歩4分に位置するの地上10階建てオフィスビル。エレベーター2基を完備。基準階約114.8坪の大型フロアが特徴。
| 階数 | 面積 | 賃料総額 | 坪単価 | 内装 | 敷金 | 入居日 | ||
|---|---|---|---|---|---|---|---|---|
| 4F | 114.8坪(379.5㎡) | 要問合せ | - | セットアップオフィス | 12ヶ月 | 相談 | 詳細を見る | |
| 4F | 114.8坪(379.5㎡) | 0円 | 0円/坪 | セットアップオフィス | 12ヶ月 | 即日 | 詳細を見る |
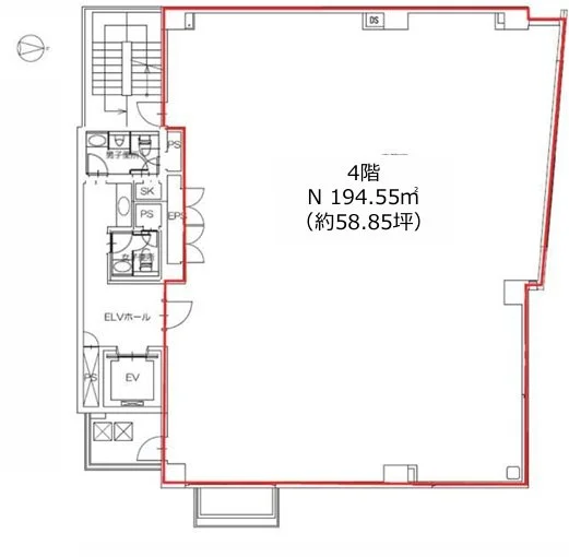
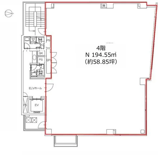
floor-plan
















半蔵門駅駅徒歩1分、麹町駅駅徒歩5分に位置するの地上6階 / 地下1階建てオフィスビル。エレベーター1基を完備。約64.57坪のフロアは中規模オフィスに適した広さ。
| 階数 | 面積 | 賃料総額 | 坪単価 | 内装 | 敷金 | 入居日 | ||
|---|---|---|---|---|---|---|---|---|
| 1F | 54.1坪(178.7㎡) | 要問合せ | - | 事務所仕様 | 12ヶ月 | 相談 | 詳細を見る | |
| 4F | 64.6坪(213.4㎡) | 要問合せ | - | 事務所仕様 | 12ヶ月 | 相談 | 詳細を見る |
building-exterior













四ツ谷駅徒歩3分、麹町駅徒歩6分の麹町6丁目に位置する地上5階建てオフィスビル。エレベーター1基を完備。約21坪のフロアは少人数事務所に適した広さ。JR中央線・丸ノ内線・南北線が使える四ツ谷駅至近で、上智大学にも近い番町エリアの好立地です。
| 階数 | 面積 | 賃料総額 | 坪単価 | 内装 | 敷金 | 入居日 | ||
|---|---|---|---|---|---|---|---|---|
| 4F | 20.7坪(68.4㎡) | 要問合せ | - | 事務所仕様 | 10ヶ月 | 相談 | 詳細を見る |
building-exterior











麹町駅徒歩1分の麹町3丁目に位置する地上9階・地下2階建てオフィスビル。個別空調・男女別トイレ・エレベーター2基を完備。約62坪のフロアは中規模オフィスに適した広さ。有楽町線の麹町駅直上の好アクセスです。
| 階数 | 面積 | 賃料総額 | 坪単価 | 内装 | 敷金 | 入居日 | ||
|---|---|---|---|---|---|---|---|---|
| 1F | 62.1坪(205.2㎡) | 要問合せ | - | 事務所仕様 | 9ヶ月 | 相談 | 詳細を見る |
building-exterior











半蔵門駅徒歩2分、麹町駅徒歩9分の一番町に位置する地上8階建てオフィスビル。個別空調・男女別トイレ・エレベーター1基を完備。約38坪のフロアは中小規模オフィスに適した広さ。番町エリアの閑静な環境で、皇居にも近い好立地です。
| 階数 | 面積 | 賃料総額 | 坪単価 | 内装 | 敷金 | 入居日 | ||
|---|---|---|---|---|---|---|---|---|
| 4F | 38.0坪(125.7㎡) | 要問合せ | - | 事務所仕様 | 6ヶ月 | 相談 | 詳細を見る |
110物件中 1〜20物件を表示
A. 番町・麹町・永田町の賃貸オフィスの平均坪単価は約22,180円です(10,541円〜42,544円)。内装付きセットアップオフィスの場合、平均坪単価は約31,691円です。
A. はい、番町・麹町・永田町エリアには現在13件のセットアップオフィス(内装付き・家具付きオフィス)の募集があります。平均坪単価は約31,691円です。
A. はい、番町・麹町・永田町エリアには現在6件の敷金0円で入居可能なオフィスがあります。初期費用を抑えたい方におすすめです。
A. 番町・麹町・永田町エリアは麹町駅・半蔵門駅・永田町駅・四ツ谷駅・赤坂見附駅などの駅が利用可能で、都心各方面へのアクセスに優れています。