浜松町・田町・芝公園エリアは、羽田空港へ東京モノレールで約20分と直結し、国内外へのアクセスに優れたビジネスエリアです。JR山手線・京浜東北線に加え、都営浅草線・三田線も利用可能で、複数路線が乗り入れ…
検索結果 150 件 募集中/登録138,648件
building-exterior




御成門駅駅徒歩3分、大門駅駅徒歩6分に位置するの地上9階 / 地下1階建てオフィスビル。エレベーター1基を完備。約26.54坪のフロアは少人数から中規模オフィスに対応可能。
| 階数 | 面積 | 賃料総額 | 坪単価 | 内装 | 敷金 | 入居日 | ||
|---|---|---|---|---|---|---|---|---|
| 3F | 26.5坪(87.7㎡) | 要問合せ | - | 事務所仕様 | 6ヶ月 | 相談 | 詳細を見る |
building-exterior




浜松町駅駅徒歩4分、大門駅駅徒歩3分に位置するの地上7階建てオフィスビル。エレベーター1基を完備。約32坪のフロアは少人数から中規模オフィスに対応可能。
| 階数 | 面積 | 賃料総額 | 坪単価 | 内装 | 敷金 | 入居日 | ||
|---|---|---|---|---|---|---|---|---|
| 4F | 32.0坪(105.8㎡) | 要問合せ | - | 事務所仕様 | 6ヶ月 | 相談 | 詳細を見る |
building-exterior




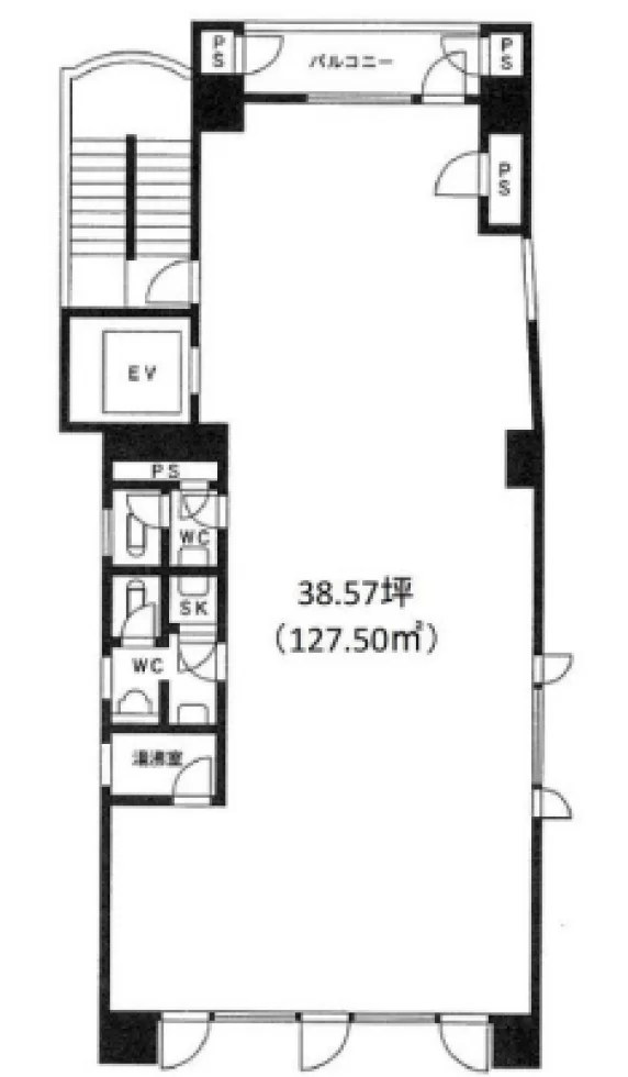
大門駅駅徒歩3分、浜松町駅駅徒歩6分に位置するの地上9階建てオフィスビル。エレベーター1基を完備。約38.57坪のフロアは中規模オフィスに適した広さ。
| 階数 | 面積 | 賃料総額 | 坪単価 | 内装 | 敷金 | 入居日 | ||
|---|---|---|---|---|---|---|---|---|
| 2F | 38.6坪(127.5㎡) | 要問合せ | - | 事務所仕様 | 8ヶ月 | 相談 | 詳細を見る |
building-exterior




浜松町駅徒歩6分、大門駅徒歩2分の芝公園1丁目に位置する地上4階建てのコンパクトオフィスビル。個別空調を完備。約22坪のフロアは少人数事務所に適した広さ。敷金3ヶ月で入居可能。大門駅至近です。
| 階数 | 面積 | 賃料総額 | 坪単価 | 内装 | 敷金 | 入居日 | ||
|---|---|---|---|---|---|---|---|---|
| 3F | 22.1坪(73.0㎡) | 要問合せ | - | 事務所仕様 | 3ヶ月 | 相談 | 詳細を見る |
building-exterior




芝公園駅徒歩3分、大門駅徒歩7分の芝2丁目に位置する地上9階建てオフィスビル。約19坪のフロアは少人数事務所に適した広さ。三田線の芝公園駅至近です。
| 階数 | 面積 | 賃料総額 | 坪単価 | 内装 | 敷金 | 入居日 | ||
|---|---|---|---|---|---|---|---|---|
| 2F | 19.4坪(64.0㎡) | 要問合せ | - | 事務所仕様 | 6ヶ月 | 相談 | 詳細を見る |
building-exterior




浜松町駅徒歩3分、大門駅徒歩3分の浜松町2丁目に位置する地上9階建てオフィスビル。OAフロア・個別空調・男女別トイレ・エレベーター2基を完備。基準階約102坪のフロアは中規模オフィスに最適。KDXシリーズの管理体制です。
| 階数 | 面積 | 賃料総額 | 坪単価 | 内装 | 敷金 | 入居日 | ||
|---|---|---|---|---|---|---|---|---|
| 2F | 101.6坪(335.9㎡) | 要問合せ | - | 事務所仕様 | 12ヶ月 | 相談 | 詳細を見る |
building-exterior



浜松町駅徒歩6分、大門駅徒歩7分の芝1丁目に位置する地上6階建てのコンパクトオフィスビル。約12坪の区画は少人数事務所やSOHOに最適。敷金4ヶ月で入居可能。JR浜松町駅にも近い芝エリアです。
| 階数 | 面積 | 賃料総額 | 坪単価 | 内装 | 敷金 | 入居日 | ||
|---|---|---|---|---|---|---|---|---|
| 2F | 12.0坪(39.7㎡) | 要問合せ | - | 事務所仕様 | 4ヶ月 | 相談 | 詳細を見る |
building-exterior



赤羽橋駅徒歩5分、田町駅徒歩11分の芝3丁目に位置する地上5階・地下1階建てオフィスビル。エレベーター1基を完備。約49坪のフロアは中規模オフィスに適した広さ。敷金5ヶ月で入居可能。芝エリアです。
| 階数 | 面積 | 賃料総額 | 坪単価 | 内装 | 敷金 | 入居日 | ||
|---|---|---|---|---|---|---|---|---|
| B1 | 49.4坪(163.4㎡) | 要問合せ | - | 事務所仕様 | 5ヶ月 | 相談 | 詳細を見る |
building-exterior



浜松町駅駅徒歩3分に位置するの地上5階建てオフィスビル。約13坪のコンパクトな区画は少人数事務所に最適。
| 階数 | 面積 | 賃料総額 | 坪単価 | 内装 | 敷金 | 入居日 | ||
|---|---|---|---|---|---|---|---|---|
| 2F | 13.0坪(43.0㎡) | 要問合せ | - | 事務所仕様 | 6ヶ月 | 相談 | 詳細を見る |
floor-plan

白金高輪駅徒歩6分、三田駅徒歩11分の三田5丁目に位置する地上7階建てマンションタイプオフィス。エレベーター1基を完備。約18坪のフロアは少人数事務所に適した広さ。敷金3ヶ月で入居可能。南北線と三田線が使える白金高輪エリアです。
| 階数 | 面積 | 賃料総額 | 坪単価 | 内装 | 敷金 | 入居日 | ||
|---|---|---|---|---|---|---|---|---|
| 4F | 17.7坪(58.5㎡) | 要問合せ | - | 事務所仕様 | 3ヶ月 | 2026/03 下旬 | 詳細を見る |
floor-plan

大門駅駅徒歩3分、浜松町駅駅徒歩5分に位置するの地上9階 / 地下1階建てオフィスビル。エレベーター2基を完備。約72坪のフロアは中規模オフィスに適した広さ。
| 階数 | 面積 | 賃料総額 | 坪単価 | 内装 | 敷金 | 入居日 | ||
|---|---|---|---|---|---|---|---|---|
| 3F | 72.0坪(238.0㎡) | 要問合せ | - | 事務所仕様 | 相談 | /00 | 詳細を見る | |
| 6F | 72.0坪(238.0㎡) | 要問合せ | - | 事務所仕様 | 相談 | /00 | 詳細を見る |
floor-plan

三田駅駅徒歩2分、田町駅駅徒歩4分に位置するの地上13階建てオフィスビル。エレベーター2基を完備。基準階約98.31坪の大型フロアが特徴。
| 階数 | 面積 | 賃料総額 | 坪単価 | 内装 | 敷金 | 入居日 | ||
|---|---|---|---|---|---|---|---|---|
| 5F | 97.4坪(322.0㎡) | 要問合せ | - | 事務所仕様 | 相談 | 2027/00 | 詳細を見る | |
| 11F | 97.4坪(322.0㎡) | 要問合せ | - | 事務所仕様 | 相談 | 2027/00 | 詳細を見る |
floor-plan浜松町駅徒歩2分の浜松町1丁目に位置する地上3階建てのコンパクトオフィスビル。個別空調を完備。約13坪の区画は少人数事務所やSOHOに最適。敷金7ヶ月。JR浜松町駅至近で、モノレールによる羽田空港へのアクセスにも便利な立地です。
| 階数 | 面積 | 賃料総額 | 坪単価 | 内装 | 敷金 | 入居日 | ||
|---|---|---|---|---|---|---|---|---|
| 3F | 13.0坪(43.0㎡) | 要問合せ | - | 事務所仕様 | 7ヶ月 | 相談 | 詳細を見る |

三田駅徒歩3分、田町駅徒歩5分の芝4丁目に位置する1984年竣工のSRC造オフィスビル。地上10階・地下1階建てで、2007年に大規模リニューアルを実施済みです。基準階約72坪のフロアに天井高2,500mm・OAフロア・男女別トイレ・エレベーター1基を完備。角地に立地しているため2面採光で明るい執務空間が特徴。機械式駐車場26台分も備えた充実の仕様です。
| 階数 | 面積 | 賃料総額 | 坪単価 | 内装 | 敷金 | 入居日 | ||
|---|---|---|---|---|---|---|---|---|
| 2F | 71.9坪(237.7㎡) | 要問合せ | - | 事務所仕様 | 相談 | 相談 | 詳細を見る |
150物件中 1〜20物件を表示
A. 浜松町・田町・芝公園の賃貸オフィスの平均坪単価は約21,192円です(8,500円〜50,000円)。内装付きセットアップオフィスの場合、平均坪単価は約32,004円です。
A. はい、浜松町・田町・芝公園エリアには現在21件のセットアップオフィス(内装付き・家具付きオフィス)の募集があります。平均坪単価は約32,004円です。
A. はい、浜松町・田町・芝公園エリアには現在3件の敷金0円で入居可能なオフィスがあります。初期費用を抑えたい方におすすめです。
A. 浜松町・田町・芝公園エリアは大門駅・浜松町駅・三田駅・田町駅・芝公園駅などの駅が利用可能で、都心各方面へのアクセスに優れています。