新橋・虎ノ門・神谷町エリアは、日本のビジネスシーンを牽引する主要エリアです。長年サラリーマンの街として親しまれてきた新橋と、大規模な再開発によって国際的なビジネス拠点へと進化を続ける虎ノ門が共存してい…
検索結果 150 件 募集中/登録138,648件
building-exterior










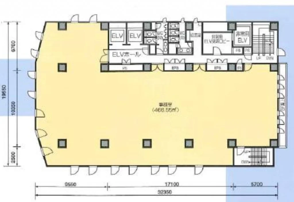
御成門駅駅徒歩6分、神谷町駅駅徒歩6分に位置するの地上14階 / 地下2階建てオフィスビル。エレベーター3基を完備。基準階約163.43坪の大型フロアが特徴。
| 階数 | 面積 | 賃料総額 | 坪単価 | 内装 | 敷金 | 入居日 | ||
|---|---|---|---|---|---|---|---|---|
| 6F | 141.1坪(466.5㎡) | 要問合せ | - | 事務所仕様 | 12ヶ月 | 相談 | 詳細を見る |
building-exterior









内幸町駅徒歩2分、虎ノ門駅徒歩4分の西新橋1丁目に位置する地上10階・地下1階建てオフィスビル。個別空調・エレベーター1基を完備。約15坪のフロアは少人数事務所に適した広さ。敷金5ヶ月で入居可能。三田線の内幸町駅至近です。
| 階数 | 面積 | 賃料総額 | 坪単価 | 内装 | 敷金 | 入居日 | ||
|---|---|---|---|---|---|---|---|---|
| 7F | 14.7坪(48.5㎡) | 要問合せ | - | 事務所仕様 | 5ヶ月 | 相談 | 詳細を見る |
building-exterior









御成門駅徒歩1分、神谷町駅徒歩8分の西新橋3丁目に位置する地上9階建てオフィスビル。個別空調・エレベーター1基を完備。約17坪のフロアは少人数事務所に使いやすいサイズ。三田線の御成門駅直上の好アクセスです。
| 階数 | 面積 | 賃料総額 | 坪単価 | 内装 | 敷金 | 入居日 | ||
|---|---|---|---|---|---|---|---|---|
| 4F | 17.4坪(57.5㎡) | 要問合せ | - | 事務所仕様 | 6ヶ月 | 相談 | 詳細を見る |
building-exterior









新橋駅徒歩9分の東新橋2丁目に位置する地上7階建てオフィスビル。OAフロア・個別空調・男女別トイレ・エレベーター1基を完備。約17坪のフロアは少人数事務所に適した広さ。汐留エリアに近い立地です。
| 階数 | 面積 | 賃料総額 | 坪単価 | 内装 | 敷金 | 入居日 | ||
|---|---|---|---|---|---|---|---|---|
| 2F | 16.6坪(54.7㎡) | 要問合せ | - | 事務所仕様 | 12ヶ月 | 相談 | 詳細を見る |
building-exterior









神谷町駅徒歩1分、御成門駅徒歩10分の虎ノ門5丁目に位置する地上24階・地下2階建ての高層タワー。エレベーター11基を完備。日比谷線の神谷町駅直上で、オランダヒルズの一角を成す虎ノ門エリアのタワーです。
| 階数 | 面積 | 賃料総額 | 坪単価 | 内装 | 敷金 | 入居日 | ||
|---|---|---|---|---|---|---|---|---|
| 7F | 17.7坪(58.5㎡) | 要問合せ | - | 事務所仕様 | 4ヶ月 | 相談 | 詳細を見る |
building-exterior









新橋駅駅徒歩5分、新橋駅駅徒歩4分に位置するの地上9階 / 地下2階建てオフィスビル。エレベーター2基を完備。約50.21坪のフロアは中規模オフィスに適した広さ。
| 階数 | 面積 | 賃料総額 | 坪単価 | 内装 | 敷金 | 入居日 | ||
|---|---|---|---|---|---|---|---|---|
| 7F | 50.2坪(166.0㎡) | 要問合せ | - | 事務所仕様 | 10ヶ月 | 相談 | 詳細を見る |
building-exterior









新橋駅徒歩7分の新橋5丁目に位置する地上8階・地下1階建てオフィスビル。個別空調・男女別トイレ・エレベーター1基を完備。約29坪のフロアは少人数から中規模オフィスに対応可能。新橋・御成門エリアの好立地です。
| 階数 | 面積 | 賃料総額 | 坪単価 | 内装 | 敷金 | 入居日 | ||
|---|---|---|---|---|---|---|---|---|
| 5F | 29.3坪(97.0㎡) | 要問合せ | - | 事務所仕様 | 8ヶ月 | 相談 | 詳細を見る |
building-exterior









虎ノ門駅徒歩1分、霞ケ関駅徒歩3分の虎ノ門1丁目に位置する地上10階・地下1階建てオフィスビル。基準階約108坪の大型フロアに個別空調・男女別トイレ・エレベーター2基を完備。虎ノ門交差点至近で、銀座線と丸ノ内線・日比谷線・千代田線の複数路線が徒歩圏内。官公庁エリアに隣接する虎ノ門の一等地で、法律事務所やコンサルティング企業にも最適です。
| 階数 | 面積 | 賃料総額 | 坪単価 | 内装 | 敷金 | 入居日 | ||
|---|---|---|---|---|---|---|---|---|
| 9F | 108.3坪(358.1㎡) | 要問合せ | - | 事務所仕様 | 12ヶ月 | 2026/05/29 | 詳細を見る |
building-exterior









虎ノ門駅駅徒歩1分、霞ケ関駅駅徒歩3分に位置するの地上9階 / 地下3階建てオフィスビル。エレベーター2基を完備。基準階約100.69坪の大型フロアが特徴。
| 階数 | 面積 | 賃料総額 | 坪単価 | 内装 | 敷金 | 入居日 | ||
|---|---|---|---|---|---|---|---|---|
| 2F | 100.7坪(332.9㎡) | 要問合せ | - | 事務所仕様 | 12ヶ月 | 相談 | 詳細を見る |











神谷町駅駅徒歩1分、六本木一丁目駅駅徒歩8分に位置するの地上7階建てオフィスビル。エレベーター2基を完備。約74.63坪のフロアは中規模オフィスに適した広さ。
| 階数 | 面積 | 賃料総額 | 坪単価 | 内装 | 敷金 | 入居日 | ||
|---|---|---|---|---|---|---|---|---|
| 6F | 74.6坪(246.7㎡) | 要問合せ | - | 事務所仕様 | 10ヶ月 | 2026/04/01 | 詳細を見る |
building-exterior









新橋駅徒歩5分、内幸町駅徒歩4分の西新橋2丁目に位置する地上5階建てオフィスビル。エレベーター1基を完備。約15坪のフロアは少人数事務所に適した広さ。新橋・虎ノ門エリアです。
| 階数 | 面積 | 賃料総額 | 坪単価 | 内装 | 敷金 | 入居日 | ||
|---|---|---|---|---|---|---|---|---|
| 1F | 15.4坪(51.1㎡) | 要問合せ | - | 事務所仕様 | 6ヶ月 | 相談 | 詳細を見る |
building-exterior









新橋駅徒歩1分、汐留駅徒歩6分の新橋2丁目に位置する地上9階・地下5階建てオフィスビル。個別空調と集中空調併用・男女別トイレ・エレベーター5基を完備。約70坪のフロアは中規模オフィスに適した広さ。新橋駅前ビル群の一角で、JR各線・銀座線・都営浅草線が使える抜群のアクセスです。
| 階数 | 面積 | 賃料総額 | 坪単価 | 内装 | 敷金 | 入居日 | ||
|---|---|---|---|---|---|---|---|---|
| 2F | 18.6坪(61.6㎡) | 要問合せ | - | 事務所仕様 | 相談 | 相談 | 詳細を見る |
building-exterior









新橋駅徒歩3分の新橋3丁目に位置する地上9階・地下1階建てオフィスビル。エレベーター1基を完備。約35坪のフロアは中小規模オフィスに適した広さ。JR各線・銀座線が使える新橋駅至近です。
| 階数 | 面積 | 賃料総額 | 坪単価 | 内装 | 敷金 | 入居日 | ||
|---|---|---|---|---|---|---|---|---|
| 6F | 35.1坪(116.2㎡) | 要問合せ | - | 事務所仕様 | 10ヶ月 | 相談 | 詳細を見る |
building-exterior









内幸町駅駅徒歩3分、新橋駅駅徒歩5分に位置するの地上7階 / 地下1階建てオフィスビル。エレベーター1基を完備。約33.74坪のフロアは少人数から中規模オフィスに対応可能。
| 階数 | 面積 | 賃料総額 | 坪単価 | 内装 | 敷金 | 入居日 | ||
|---|---|---|---|---|---|---|---|---|
| 2F | 33.7坪(111.5㎡) | 要問合せ | - | 事務所仕様 | 8ヶ月 | 相談 | 詳細を見る |
building-exterior









神谷町駅徒歩1分、虎ノ門駅徒歩8分。森トラストが手がける地上38階・地下3階建ての超高層オフィスタワーです。基準階約485坪の大空間フロアにOAフロア・個別空調・男女別トイレ・エレベーター8基を完備。虎ノ門・神谷町エリアの再開発地区に位置するランドマークビルで、グローバル企業の拠点にふさわしいハイグレードオフィスです。
| 階数 | 面積 | 賃料総額 | 坪単価 | 内装 | 敷金 | 入居日 | ||
|---|---|---|---|---|---|---|---|---|
| 25F | 485.4坪(1604.6㎡) | 要問合せ | - | 事務所仕様 | 相談 | 2027/02/01 | 詳細を見る |
building-exterior









虎ノ門駅駅徒歩3分、霞ケ関駅駅徒歩7分に位置するの地上9階 / 地下1階建てオフィスビル。エレベーター1基を完備。基準階約107.58坪の大型フロアが特徴。
| 階数 | 面積 | 賃料総額 | 坪単価 | 内装 | 敷金 | 入居日 | ||
|---|---|---|---|---|---|---|---|---|
| 4F | 107.6坪(355.6㎡) | 要問合せ | - | 事務所仕様 | 12ヶ月 | 相談 | 詳細を見る |
building-exterior









汐留駅駅徒歩5分、新橋駅駅徒歩7分に位置するの地上9階建てオフィスビル。エレベーター1基を完備。約26.5坪のフロアは少人数から中規模オフィスに対応可能。
| 階数 | 面積 | 賃料総額 | 坪単価 | 内装 | 敷金 | 入居日 | ||
|---|---|---|---|---|---|---|---|---|
| 8F | 26.5坪(87.6㎡) | 要問合せ | - | 事務所仕様 | 12ヶ月 | 2026/09/01 | 詳細を見る |
building-exterior









新橋駅徒歩5分の新橋4丁目に位置するオフィスビル。個別空調・エレベーター1基を完備。約27坪のフロアは少人数オフィスに使いやすいサイズ。新橋エリアの飲食店が充実した環境で、JR各線と銀座線が使える新橋駅至近です。
| 階数 | 面積 | 賃料総額 | 坪単価 | 内装 | 敷金 | 入居日 | ||
|---|---|---|---|---|---|---|---|---|
| 4F | 26.9坪(88.8㎡) | 要問合せ | - | 事務所仕様 | 10ヶ月 | 相談 | 詳細を見る |
building-exterior









神谷町駅徒歩1分、六本木一丁目駅徒歩11分の虎ノ門5丁目に位置する地上10階建てオフィスビル。個別空調・エレベーター1基を完備。約18坪のフロアは少人数事務所に使いやすいサイズ。敷金3ヶ月で入居可能。日比谷線の神谷町駅直上です。
| 階数 | 面積 | 賃料総額 | 坪単価 | 内装 | 敷金 | 入居日 | ||
|---|---|---|---|---|---|---|---|---|
| 4F | 18.1坪(59.9㎡) | 要問合せ | - | 事務所仕様 | 3ヶ月 | 相談 | 詳細を見る | |
| 6F | 18.1坪(59.9㎡) | 要問合せ | - | 事務所仕様 | 3ヶ月 | 相談 | 詳細を見る | |
| 10F | 18.1坪(59.9㎡) | 要問合せ | - | 事務所仕様 | 3ヶ月 | 相談 | 詳細を見る |
building-exterior









内幸町駅駅徒歩3分、新橋駅駅徒歩7分に位置するの地上9階建てオフィスビル。エレベーター1基を完備。約26.01坪のフロアは少人数から中規模オフィスに対応可能。
| 階数 | 面積 | 賃料総額 | 坪単価 | 内装 | 敷金 | 入居日 | ||
|---|---|---|---|---|---|---|---|---|
| 3F | 26.0坪(86.0㎡) | 要問合せ | - | 事務所仕様 | 12ヶ月 | 2026/04/01 | 詳細を見る |
150物件中 1〜20物件を表示
A. 新橋・虎ノ門・神谷町の賃貸オフィスの平均坪単価は約23,363円です(9,150円〜45,000円)。内装付きセットアップオフィスの場合、平均坪単価は約27,000円です。
A. はい、新橋・虎ノ門・神谷町エリアには現在4件のセットアップオフィス(内装付き・家具付きオフィス)の募集があります。平均坪単価は約27,000円です。
A. はい、新橋・虎ノ門・神谷町エリアには現在3件の敷金0円で入居可能なオフィスがあります。初期費用を抑えたい方におすすめです。
A. 新橋・虎ノ門・神谷町エリアは新橋駅・虎ノ門駅・内幸町駅・神谷町駅・御成門駅などの駅が利用可能で、都心各方面へのアクセスに優れています。