募集区画
最終更新日:2026年4月14日
| 階数 | 内装 | 面積 | 賃料 | 共益費 | 敷金 | 入居可能日 | ||
|---|---|---|---|---|---|---|---|---|
| 詳細を見る | 2階 | 内装事務所仕様 | 14.3坪 (47.27㎡) | 賃料要問合せ | 共益費相談 | 敷金4ヶ月 | 入居可能日相談 | |
| 詳細を見る | 2階 | 内装事務所仕様 | 14.5坪 (47.93㎡) | 賃料要問合せ | 共益費相談 | 敷金相談 | 入居可能日相談 |
※敷金減額サービスをご利用時はサービス利用料として減額分の5%が年間で別途発生します。
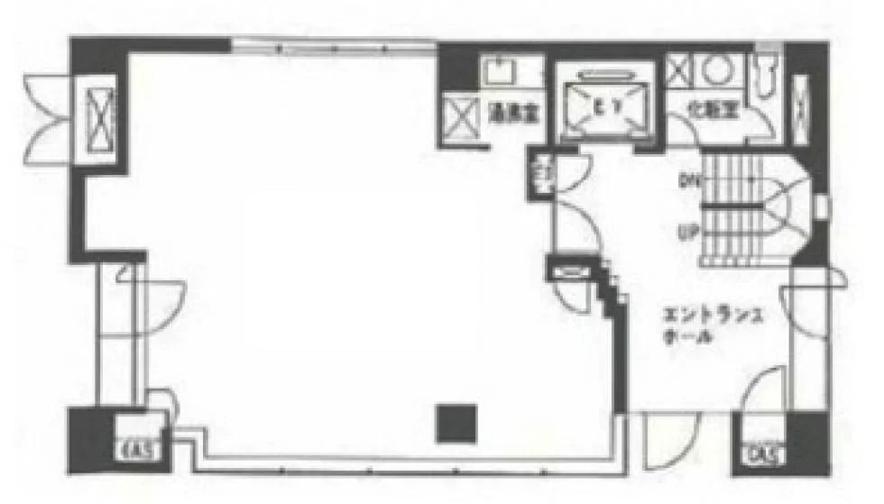
物件紹介
八丁堀駅徒歩1分、宝町駅徒歩5分の八丁堀3丁目に位置する地上4階建てオフィスビル。1971年竣工で天井高2,600mm・OAフロアを完備。約15坪のコンパクトな区画は少人数事務所に最適。日比谷線・京葉線が使える八丁堀駅直上の抜群のアクセスが魅力です。















