







1 / 8
区画詳細情報
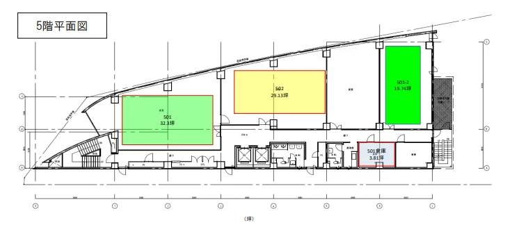
| 階数 | 5 | 内装 | 事務所仕様 |
|---|---|---|---|
| 面積(坪) | 29.13坪 | 面積(㎡) | 96.30㎡ |
| 賃料 | ¥139,824 | 坪単価 | ¥4,800/坪 |
| 敷金/保証金 | 8ヶ月 | 礼金 | - |
| 入居可能日 | - | 募集状況 | 空室 |
| 収容人数 | - | 会議室 | - |
| テレブース | - | 機械警備 | - |
| 天井高 | - | 床仕様 | OAフロア |
| トイレ | 共用男女別 | 空調 | 個別 |
物件情報
| 物件名 | 小倉興産20号館(KMMビル西館) | ||
|---|---|---|---|
| 所在地 | 福岡県北九州市小倉北区浅野2-8-4 | ||
| 最寄駅 | 小倉駅 徒歩5分 / 西小倉駅 徒歩9分 | ||
| 構造 | - | 規模 | - |
| 竣工 | - | リニューアル | - |


