







1 / 8
小倉興産20号館(KMMビル西館)
| 住所 | 福岡県北九州市小倉北区浅野2-8-4 |
|---|---|
| 最寄駅 | 小倉駅 徒歩5分 西小倉駅 徒歩9分 |
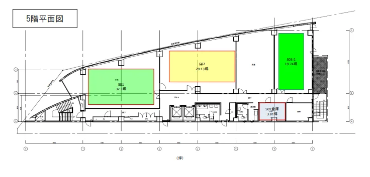
募集区画
最終更新日:2026年4月14日
| 階数 | 内装 | 面積 | 賃料 | 共益費 | 敷金 | 入居可能日 | ||
|---|---|---|---|---|---|---|---|---|
| 詳細を見る | 4階 | 内装事務所仕様 | 61.44坪 (203.11㎡) | 賃料¥479,154 (坪7,800円) | 共益費相談 | 敷金相談 | 入居可能日相談 | |
| 詳細を見る | 5階 | 内装事務所仕様 | 29.13坪 (96.3㎡) | 賃料¥227,214 (坪7,800円) | 共益費相談 | 敷金相談 | 入居可能日相談 | |
| 詳細を見る | 5階 | 内装事務所仕様 | 32.3坪 (106.78㎡) | 賃料¥251,940 (坪7,800円) | 共益費相談 | 敷金相談 | 入居可能日相談 |
※敷金減額サービスをご利用時はサービス利用料として減額分の5%が年間で別途発生します。







