募集区画
最終更新日:2026年4月30日
| 階数 | 内装 | 面積 | 賃料 | 共益費 | 敷金 | 入居可能日 | ||
|---|---|---|---|---|---|---|---|---|
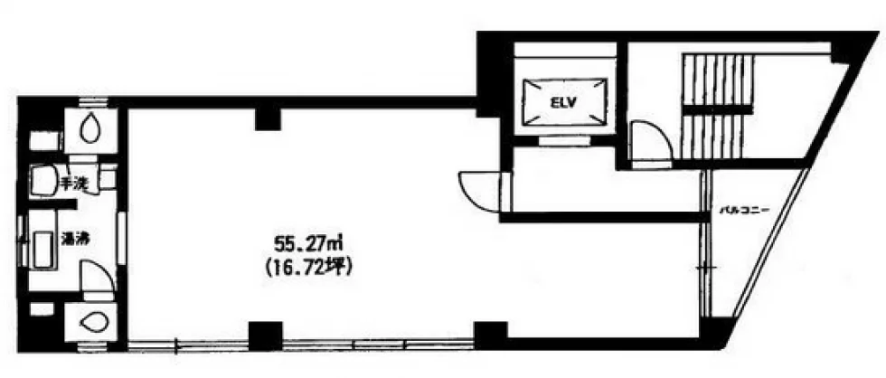
| 詳細を見る | 2階 | 内装事務所仕様 | 16.72坪 (55.27㎡) | 賃料要問合せ | 共益費相談 | 敷金5ヶ月 | 入居可能日相談 |
※敷金減額サービスをご利用時はサービス利用料として減額分の5%が年間で別途発生します。
物件所在地
エリア紹介
秋葉原・岩本町エリアは、日本を代表するIT企業の一大集積地として、常に進化を続けています。つくばエクスプレス開業を機に再開発が加速し、かつての電気街のイメージから、最先端のビジネスを創造する拠点へと見事に変貌を遂げました。 交通利便性は抜群です。JR山手線、総武線、京浜東北線に加え、東京メトロ日比谷線、都営新宿線など、多数の路線が利用可能です。例えば、秋葉原駅から東京駅まではJRでわずか数分、新宿駅へも乗り換えなしでアクセスできます。東西南北へのアクセスが容易なため、都内はもちろん、全国への出張にも大変便利です。 このエリアの特徴として、IT、データサイエンス、フィンテックといった先端技術に関わる企業が数多く集まっている点が挙げられます。近年では、スタートアップ企業の進出も目覚ましく、活気あふれるビジネスシーンが形成されています。オフィス移転を検討される企業様にとって、同じ分野の企業との交流や連携がしやすい環境は大きな魅力となるでしょう。 また、交通利便性に優れているにもかかわらず、都心エリアと比較して賃料水準が抑えられている点も、秋葉原・岩本町エリアの大きな魅力です。同じ広さの賃貸オフィスを借りる場合、渋谷や新宿といったエリアよりも比較的安価に貸事務所を見つけることが可能です。初期費用を抑えたい企業や、コストパフォーマンスを重視する企業にとって、非常に魅力的な選択肢となるでしょう。さらに、すぐに事業を開始できるセットアップオフィスも増えており、スピーディーなオフィス開設をサポートします。秋葉原・岩本町エリアは、コストを抑えつつ、ビジネスの成長を加速させたい企業にとって最適な場所と言えるでしょう。









