









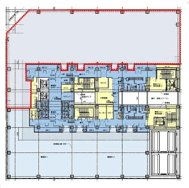
| 階数 | 7 | 内装 | 事務所仕様 |
|---|---|---|---|
| 面積(坪) | 255.44坪 | 面積(㎡) | 844.43㎡ |
| 賃料 | 要問い合わせ | 坪単価 | 要問い合わせ |
| 敷金/保証金 | 敷金6ヶ月(減額) | 礼金 | - |
| 入居可能日 | - | 募集状況 | 空室 |
| 収容人数 | - | 会議室 | - |
| テレブース | - | 機械警備 | - |
| 天井高 | 2800 | 床仕様 | OAフロア |
| トイレ | 共用男女別 | 空調 | セントラル |
| 物件名 | ヒューリックスクエア札幌(Ⅱ期) | ||
|---|---|---|---|
| 所在地 | 北海道札幌市中央区北三条西3-1-44 | ||
| 最寄駅 | 大通駅 徒歩5分 / バスセンター前駅 徒歩10分 | ||
| 構造 | 鉄骨造(一部鉄筋コンクリート造) | 規模 | 地下1階地上20階建 |
| 竣工 | 2025 | リニューアル | - |